Viewing Listing MLS# 2600444
Myrtle Beach, SC 29579
- 4Beds
- 3Full Baths
- N/AHalf Baths
- 2,411SqFt
- 2018Year Built
- 0.48Acres
- MLS# 2600444
- Residential
- Detached
- Active
- Approx Time on Market4 days
- AreaMyrtle Beach Area--Carolina Forest
- CountyHorry
- Subdivision Waterbridge
Overview
Welcome to this stunning custom-built home located in the highly desirable, gated community of Waterbridge in Myrtle Beach. Built in 2018, this 4-bedroom, 3-bath residence showcases exceptional craftsmanship and timeless design, truly showing like a model home from the moment you step inside, where soaring moulding details and high-end finishes set the tone throughout. The thoughtfully designed layout includes a versatile 400-square-foot flex room ideal for a media space, recreation area, or home office, along with an oversized walk-in storage area and a 2-car extended-length garage complete with a built-in storage system and epoxy flooring. The chefs kitchen serves as the heart of the home, featuring custom cabinetry, natural gas cooking, and granite countertops that extend through the kitchen, all three bathrooms, and the laundry room. Outdoor living is just as impressive, with a welcoming front porch and a screened rear lanai equipped with EZ-Breeze vinyl windows overlooking a beautifully landscaped yard. Built with durable cement board siding for low maintenance, this home is situated on a serene nature preserve lot, offering exceptional privacy and a rare sense of space in Myrtle Beach, with a manageable lawn for enjoyment and wooded views beyond. Living in Waterbridge means enjoying an unmatched lifestyle, highlighted by a 60+ acre freshwater lake with kayak and boat launch, a world-class amenity center featuring the largest residential pool in South Carolina, a full fitness center, club and game room, tennis, volleyball, pickleball and basketball courts, boat and RV storage, playground, and a fishing dock. Conveniently located just minutes from shopping, dining, grocery stores, golf courses, and all that Carolina Forest has to offer, this is more than a homeits a lifestyle opportunity not to be missed.
Agriculture / Farm
Association Fees / Info
Hoa Frequency: Monthly
Hoa Fees: 150
Hoa: Yes
Hoa Includes: AssociationManagement, CommonAreas, LegalAccounting, Pools, RecreationFacilities, Security
Community Features: Clubhouse, GolfCartsOk, Gated, RecreationArea, TennisCourts, LongTermRentalAllowed, Pool
Assoc Amenities: Clubhouse, Gated, OwnerAllowedGolfCart, OwnerAllowedMotorcycle, PetRestrictions, Security, TenantAllowedGolfCart, TennisCourts, TenantAllowedMotorcycle
Bathroom Info
Total Baths: 3.00
Fullbaths: 3
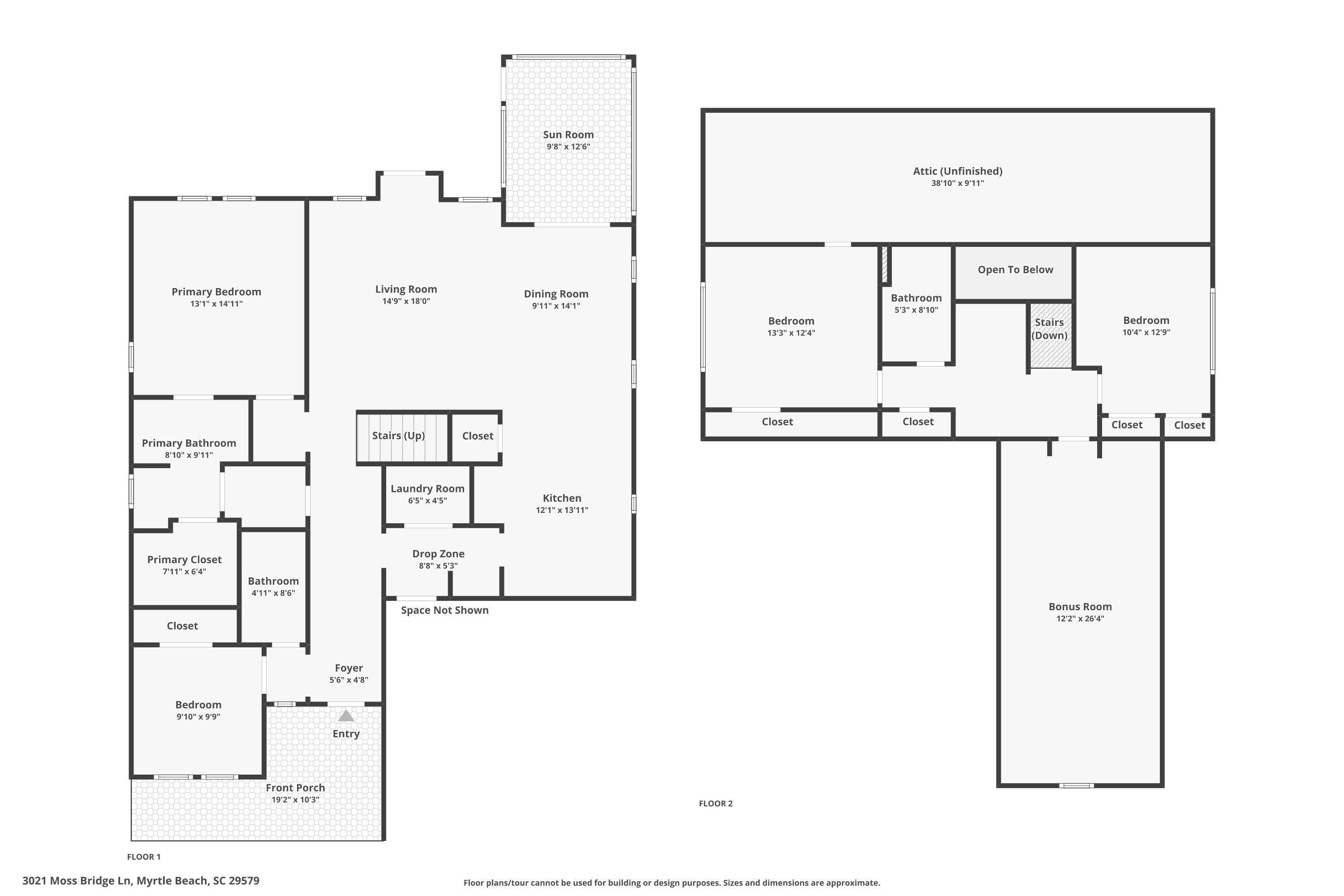
Room Dimensions
Bedroom1: 9'9x9'9
Bedroom2: 10x11'7
Bedroom3: 13'4x12'6
DiningRoom: 10'8x14'4
Kitchen: 12'6x14
LivingRoom: 14'8x18'8
PrimaryBedroom: 13'3x15'5
Room Level
Bedroom1: First
Bedroom2: Second
Bedroom3: Second
PrimaryBedroom: First
Room Features
DiningRoom: KitchenDiningCombo
FamilyRoom: CeilingFans
Kitchen: KitchenExhaustFan, Pantry, StainlessSteelAppliances, SolidSurfaceCounters
Other: BedroomOnMainLevel, EntranceFoyer, Loft, UtilityRoom, Workshop
PrimaryBathroom: DualSinks, SeparateShower
PrimaryBedroom: TrayCeilings, CeilingFans, MainLevelMaster, WalkInClosets
Bedroom Info
Beds: 4
Building Info
Levels: Two
Year Built: 2018
Zoning: res
Construction Materials: HardiplankType, Masonry
Builders Name: MJM Construction
Builder Model: Custom
Buyer Compensation
Exterior Features
Patio and Porch Features: FrontPorch, Patio
Pool Features: Community, OutdoorPool
Foundation: Slab
Exterior Features: Patio
Financial
Garage / Parking
Parking Capacity: 4
Garage: Yes
Parking Type: Attached, Garage, TwoCarGarage, GarageDoorOpener
Attached Garage: Yes
Garage Spaces: 2
Green / Env Info
Green Energy Efficient: Doors, Windows
Interior Features
Floor Cover: Carpet, Tile, Wood
Door Features: InsulatedDoors
Laundry Features: WasherHookup
Furnished: Unfurnished
Interior Features: BedroomOnMainLevel, EntranceFoyer, Loft, StainlessSteelAppliances, SolidSurfaceCounters, Workshop
Appliances: Cooktop, Dishwasher, Disposal, Microwave, Range, Refrigerator, RangeHood
Lot Info
Acres: 0.48
Lot Size: 60x347x60x353
Lot Description: Rectangular, RectangularLot
Misc
Pets Allowed: OwnerOnly, Yes
Offer Compensation
Other School Info
Property Info
County: Horry
Stipulation of Sale: None
Property Sub Type Additional: Detached
Security Features: GatedCommunity, SmokeDetectors, SecurityService
Disclosures: CovenantsRestrictionsDisclosure,SellerDisclosure
Construction: Resale
Room Info
Sold Info
Sqft Info
Building Sqft: 3276
Living Area Source: PublicRecords
Sqft: 2411
Tax Info
Unit Info
Utilities / Hvac
Heating: Central, Electric
Cooling: CentralAir
Cooling: Yes
Utilities Available: CableAvailable, ElectricityAvailable, NaturalGasAvailable, PhoneAvailable, SewerAvailable, UndergroundUtilities, WaterAvailable
Heating: Yes
Water Source: Public
Waterfront / Water
Courtesy of Innovate Real Estate





Recent Posts RSS
MLS# 2600714
Provided courtesy of © Copyright 2026 Coastal Carolinas Multiple Listing Service, Inc.®. Information Deemed Reliable but Not Guaranteed. © Copyright 2026 Coastal Carolinas Multiple Listing Service, Inc.® MLS. All rights reserved. Information is provided exclusively for consumers’ personal, non-commercial use, that it may not be used for any purpose other than to identify prospective properties consumers may be interested in purchasing.
Images related to data from the MLS is the sole property of the MLS and not the responsibility of the owner of this website. MLS IDX data last updated on 01-11-2026 11:48 PM EST.
Any images related to data from the MLS is the sole property of the MLS and not the responsibility of the owner of this website.