Viewing Listing MLS# 2526982
Pawleys Island, SC 29585
- 3Beds
- 2Full Baths
- N/AHalf Baths
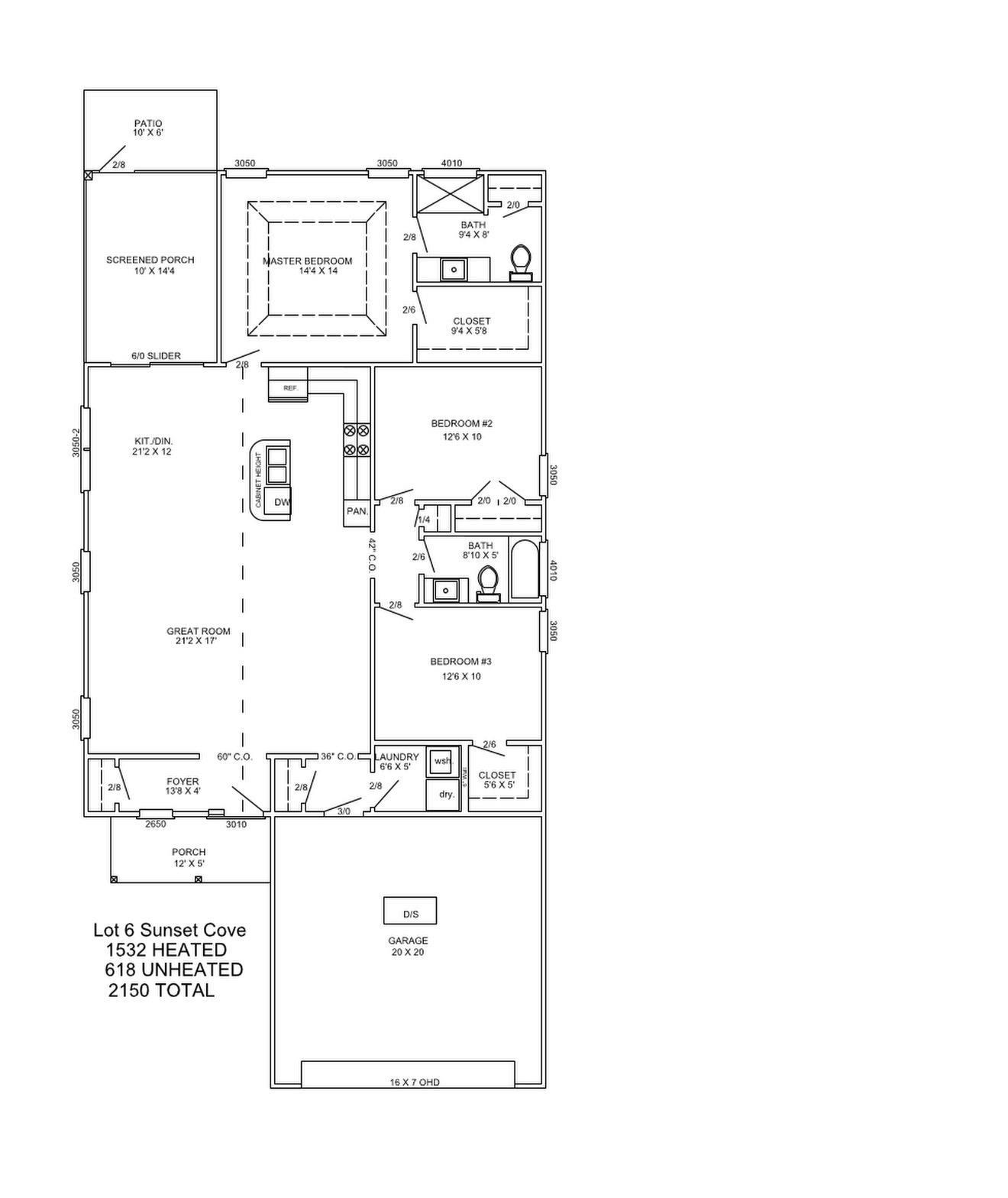
- 1,583SqFt
- 2026Year Built
- 0.17Acres
- MLS# 2526982
- Residential
- Detached
- Active
- Approx Time on Market18 days
- Area44a Pawleys Island Mainland
- CountyGeorgetown
- Subdivision Sunset Cove
Overview
This brand-new Low Country cottage-style home showcases timeless design and impressive features throughout. The kitchen features quartz countertops, stainless steel appliances, and a stylish tile backsplash. The master suite offers a tray ceiling, double sinks, a custom tile shower, and tile flooring, creating a true retreat. A covered rear porch extends your living space outdoors, perfect for relaxing or entertaining. This home features many upgrades that most builders don't include. Tucked away in Sunset Cove, a boutique community of just 7 homesites, this home presents a rare chance to enjoy coastal living in the heart of Pawleys Island. Only minutes from the beach, Sunset Cove combines charm and exclusivity with convenient access to shopping, dining, golf, and outdoor recreation. Dont miss this rare opportunity to own a move-in ready home in one of Pawleys Islands most charming new communities! Take comfort in one of our newly constructed homes that has a reputation for quality and value. Whether you are a first-time home buyer or looking for your forever home, let us help you through the buying process and welcome you to your newly built home. Building lifestyles for over 40 years, we remain the Premier Home builder of new residential communities and custom homes in the Grand Strand and surrounding areas. In 2023 and 2024, We received the Best Home Builder award from WMBF News Best of the Grand Strand. We began and remain in the Grand Strand, and we want you to experience the local pride we build today and every day in Horry and Georgetown Counties.
Agriculture / Farm
Association Fees / Info
Hoa Frequency: Monthly
Hoa Fees: 34
Hoa: Yes
Community Features: GolfCartsOk, LongTermRentalAllowed
Assoc Amenities: OwnerAllowedGolfCart, OwnerAllowedMotorcycle, TenantAllowedGolfCart, TenantAllowedMotorcycle
Bathroom Info
Total Baths: 2.00
Fullbaths: 2
Room Features
FamilyRoom: VaultedCeilings, Bar
Kitchen: KitchenIsland, Pantry, StainlessSteelAppliances, SolidSurfaceCounters
LivingRoom: CeilingFans, VaultedCeilings
Other: BedroomOnMainLevel, UtilityRoom
PrimaryBathroom: SeparateShower, Vanity
PrimaryBedroom: TrayCeilings, CeilingFans, MainLevelMaster, WalkInClosets
Bedroom Info
Beds: 3
Building Info
Levels: One
Year Built: 2026
Zoning: RES
Construction Materials: BrickVeneer, VinylSiding
Buyer Compensation
Exterior Features
Patio and Porch Features: RearPorch, FrontPorch, Patio
Foundation: Slab
Exterior Features: Porch, Patio
Financial
Garage / Parking
Parking Capacity: 3
Garage: Yes
Parking Type: Attached, Garage, TwoCarGarage
Attached Garage: Yes
Garage Spaces: 2
Green / Env Info
Interior Features
Floor Cover: Carpet, LuxuryVinyl, LuxuryVinylPlank, Tile
Laundry Features: WasherHookup
Furnished: Unfurnished
Interior Features: BedroomOnMainLevel, KitchenIsland, StainlessSteelAppliances, SolidSurfaceCounters
Appliances: Dishwasher, Disposal, Microwave, Range
Lot Info
Acres: 0.17
Lot Description: Rectangular, RectangularLot
Misc
Offer Compensation
Other School Info
Property Info
County: Georgetown
Stipulation of Sale: None
Property Sub Type Additional: Detached
Security Features: SmokeDetectors
Construction: UnderConstruction
Room Info
Sold Info
Sqft Info
Building Sqft: 2104
Living Area Source: Builder
Sqft: 1583
Tax Info
Unit Info
Utilities / Hvac
Heating: Central, Electric
Cooling: CentralAir
Cooling: Yes
Utilities Available: CableAvailable, ElectricityAvailable, PhoneAvailable, SewerAvailable, UndergroundUtilities, WaterAvailable
Heating: Yes
Water Source: Public
Waterfront / Water
Directions
Turn on MLK off HWY 17 then turn left on Petigru Dr. PLEASE PUT 661 MARTIN LUTHER KING RD IN YOUR GPS THIS WILL GET YOU TO THE ENTRANCE OF THE NEIGHBORHOOD.Courtesy of The Beverly Group





Recent Posts RSS
MLS# 2528042
Provided courtesy of © Copyright 2025 Coastal Carolinas Multiple Listing Service, Inc.®. Information Deemed Reliable but Not Guaranteed. © Copyright 2025 Coastal Carolinas Multiple Listing Service, Inc.® MLS. All rights reserved. Information is provided exclusively for consumers’ personal, non-commercial use, that it may not be used for any purpose other than to identify prospective properties consumers may be interested in purchasing.
Images related to data from the MLS is the sole property of the MLS and not the responsibility of the owner of this website. MLS IDX data last updated on 11-28-2025 6:25 AM EST.
Any images related to data from the MLS is the sole property of the MLS and not the responsibility of the owner of this website.