Viewing Listing MLS# 2522540
Myrtle Beach, SC 29579
- 4Beds
- 3Full Baths
- 1Half Baths
- 3,146SqFt
- 2012Year Built
- 0.43Acres
- MLS# 2522540
- Residential
- Detached
- Active
- Approx Time on Market8 months, 14 days
- AreaConway Area--South of Conway Between 501 & Wacc. River
- CountyHorry
- Subdivision Legends
Overview
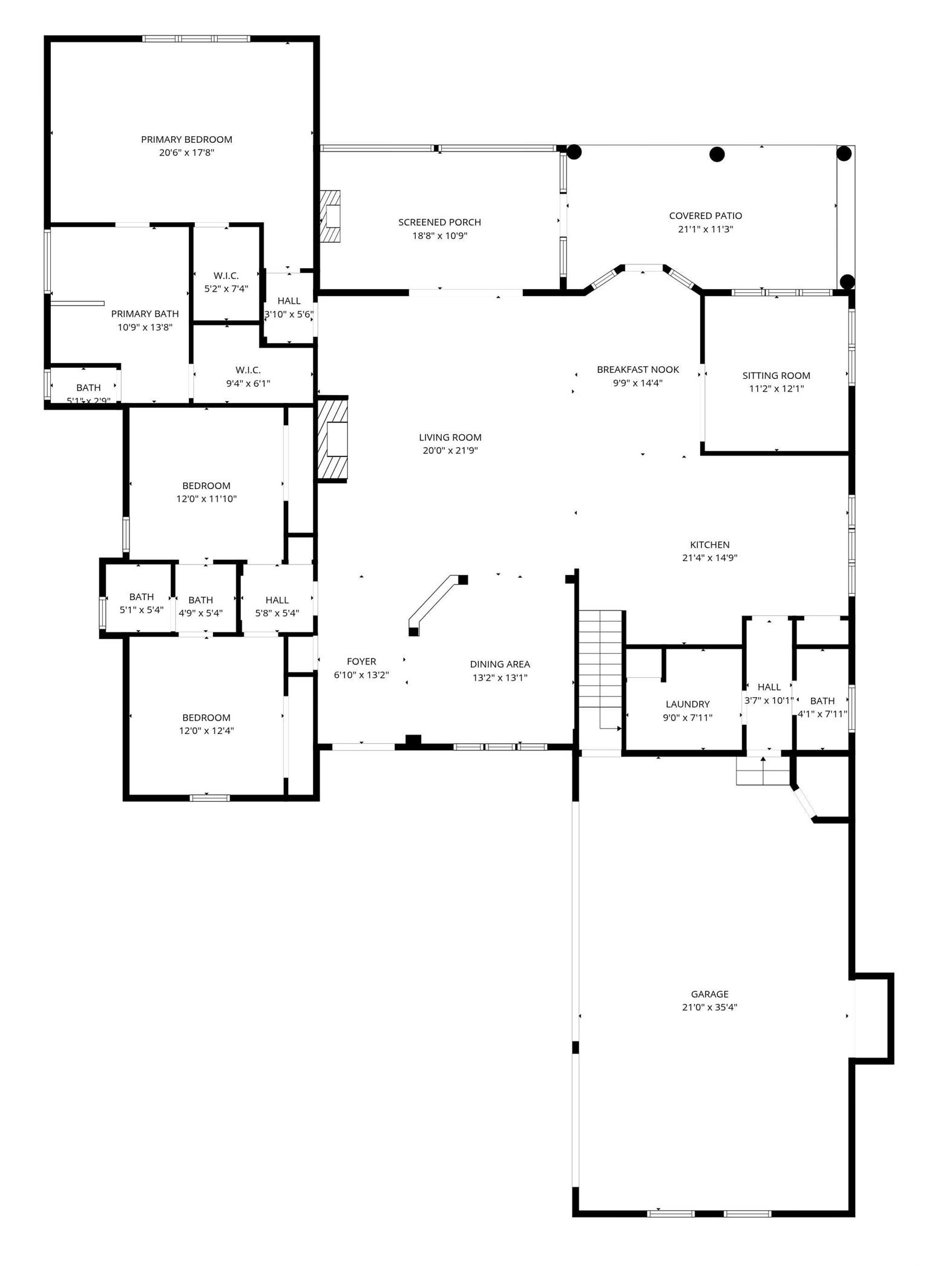
If you're searching for a STUNNING home that offers elegance, comfort, style and charm - with plenty of space, both inside and out - you don't want to miss this opportunity. This coastal Mediterranean-style GOLF COURSE home is located within the desirable and pristinely maintained Parkland neighborhood of The Legends Golf & Resort, just 15 minutes from the white sandy beaches of Myrtle Beach and central to all that the Grand Strand has to offer. This beautiful home is surrounded by a peaceful, park-like setting with a true sense of privacy as there is only one neighbor directly beside you. As you enter the home you are greeted with soaring ceilings and an open living space, creating a spacious, yet still cozy, atmosphere. Its many large windows connect you with nature and the outdoors with abundant views of lush landscape out every window. This semi-custom home's design features include 12-foot tray ceilings with 10-inch crown-molding and elegant trim details throughout. The current owners have spared no expense enhancing the home, including fresh neutral paint both inside and out, all new beautiful laminate flooring, and a newly designed kitchen with plenty of storage, new appliances, a farm-style stainless sink w/champagne gold touchless faucet, new quartzite countertops and marble tile backsplash. The kitchen and bathroom cabinets have also been professionally updated with paint, hardware and glass kitchen cabinet doors. Elegant chandeliers and pendant lighting on dimmer switches have been added to the kitchen, formal dining, informal dining spaces and bathrooms. Newer plush carpet was recently installed in both guest bedrooms and the huge upstairs bonus room which can serve as a 4th bedroom as it has a full bathroom and closet. The first level primary bedroom is more than generous in size with 2 walk-in closets with a barn door leading to an ensuite with soaking tub, separate shower, double vanities with new sinks & faucets, new quartzite countertops, a beautiful chandelier and vanity lighting. Two secondary downstairs bedrooms share a jack & jill bath, and there is also a guest powder bathroom with freshly painted cabinets, a new sink, faucet and countertops across from the large downstairs laundry room. Step through the sliding glass doors off the family room into the spacious screened-in Carolina room to enjoy the outdoors and nature comfortably, while the adjacent covered patio offers plenty of space to barbeque and watch the golfers tee-off from a fun par-3 hole (very few -if any- golf balls will ever hit your yard!). The long driveway can fit at least 4 cars comfortably for your guests while a spacious 3-car garage houses your vehicles. The front yard is landscaped with palm trees, a beautiful oak tree, flower beds and some of the most beautiful Crepe Myrtles that frame the long driveway leading to the ornate, leaded glass, double front doors! There is room for a swimming pool in the fenced-in backyard and 9 Nellie Holly trees have recently been planted along with many gorgeous gardenia bushes along the backyard property line allowing even more beauty and privacy as they mature. This home has TONS of storage inside the home, in the walk-in attic and the large garage! The Legends Golf Course offers 3 courses within the neighborhood, a huge clubhouse and pro shop, and a separate pub for casual dining. The Parkland community also has its own clubhouse, swimming pool, pickleball, gym and other shared amenities. Pride of ownership can be seen throughout the Parkland neighborhood. Live in your own quiet paradise but still be convenient to golf, the beach, the intracoastal waterway, Barefoot Landing, Murrels Inlet Marshwalk, the quaint town of Conway, hundreds of restaurants and tons of shopping - it doesn't get much better than this! The seashell chandelier in the foyer does not convey with the sale. Buyers to verify all measurements. Listing agent owns property.
Agriculture / Farm
Association Fees / Info
Hoa Frequency: Monthly
Hoa Fees: 150
Hoa: Yes
Hoa Includes: CommonAreas, Security
Community Features: Clubhouse, GolfCartsOk, Gated, RecreationArea, TennisCourts, Golf, Pool
Assoc Amenities: Clubhouse, Gated, OwnerAllowedGolfCart, OwnerAllowedMotorcycle, PetRestrictions, Security, TennisCourts
Bathroom Info
Total Baths: 4.00
Halfbaths: 1
Fullbaths: 3
Bedroom Info
Beds: 4
Building Info
Levels: Two
Year Built: 2012
Zoning: PUD
Style: Mediterranean
Construction Materials: Stucco
Builders Name: Nations Homes
Buyer Compensation
Exterior Features
Patio and Porch Features: RearPorch, FrontPorch, Patio, Porch, Screened
Window Features: WindowTreatments
Pool Features: Community, OutdoorPool
Foundation: Slab
Exterior Features: Fence, SprinklerIrrigation, Porch, Patio
Financial
Garage / Parking
Parking Capacity: 8
Garage: Yes
Parking Type: Attached, Garage, ThreeCarGarage, GarageDoorOpener
Attached Garage: Yes
Garage Spaces: 3
Green / Env Info
Interior Features
Floor Cover: Carpet, Laminate, Tile
Fireplace: Yes
Laundry Features: WasherHookup
Furnished: Unfurnished
Interior Features: Bathtub, TrayCeilings, CeilingFans, DualSinks, Fireplace, SeparateShower, Vanity, WalkInClosets, WindowTreatments, BreakfastBar, BedroomOnMainLevel, EntranceFoyer, KitchenIsland, StainlessSteelAppliances, SolidSurfaceCounters
Appliances: Cooktop, DoubleOven, Dishwasher, Disposal, Microwave, Range, Refrigerator, Dryer, Washer
Lot Info
Acres: 0.43
Lot Description: CornerLot, NearGolfCourse, OnGolfCourse, Rectangular, RectangularLot
Misc
Pets Allowed: OwnerOnly, Yes
Offer Compensation
Other School Info
Property Info
County: Horry
View: Yes
Stipulation of Sale: None
View: GolfCourse
Property Sub Type Additional: Detached
Security Features: GatedCommunity, SmokeDetectors, SecurityService
Disclosures: CovenantsRestrictionsDisclosure
Construction: Resale
Room Info
Sold Info
Sqft Info
Total Sqft: 3920
Living Area Source: PublicRecords
Sqft: 3146
Tax Info
Unit Info
Utilities / Hvac
Heating: Central, Electric, Propane
Cooling: CentralAir
Cooling: Yes
Utilities Available: CableAvailable, ElectricityAvailable, PhoneAvailable, SewerAvailable, UndergroundUtilities, WaterAvailable
Heating: Yes
Water Source: Public
Waterfront / Water
Directions
501 to Legends Drive, right on Parkland. On the corner of Parkland and Girvan Drive (not by the condos).Courtesy of Realty One Group Dockside





Recent Posts RSS
MLS# 2613187
Provided courtesy of © Copyright 2026 Coastal Carolinas Multiple Listing Service, Inc.®. Information Deemed Reliable but Not Guaranteed. © Copyright 2026 Coastal Carolinas Multiple Listing Service, Inc.® MLS. All rights reserved. Information is provided exclusively for consumers’ personal, non-commercial use, that it may not be used for any purpose other than to identify prospective properties consumers may be interested in purchasing.
Images related to data from the MLS is the sole property of the MLS and not the responsibility of the owner of this website. MLS IDX data last updated on 05-27-2026 4:01 PM EST.
Any images related to data from the MLS is the sole property of the MLS and not the responsibility of the owner of this website.