Viewing Listing MLS# 2521818
Little River, SC 29566
- 2Beds
- 2Full Baths
- N/AHalf Baths
- 1,324SqFt
- 2025Year Built
- 10Unit #
- MLS# 2521818
- Residential
- Condominium
- Active
- Approx Time on Market1 month, 24 days
- AreaLittle River Area--North of Hwy 9
- CountyHorry
- Subdivision Bridgewater Villas
Overview
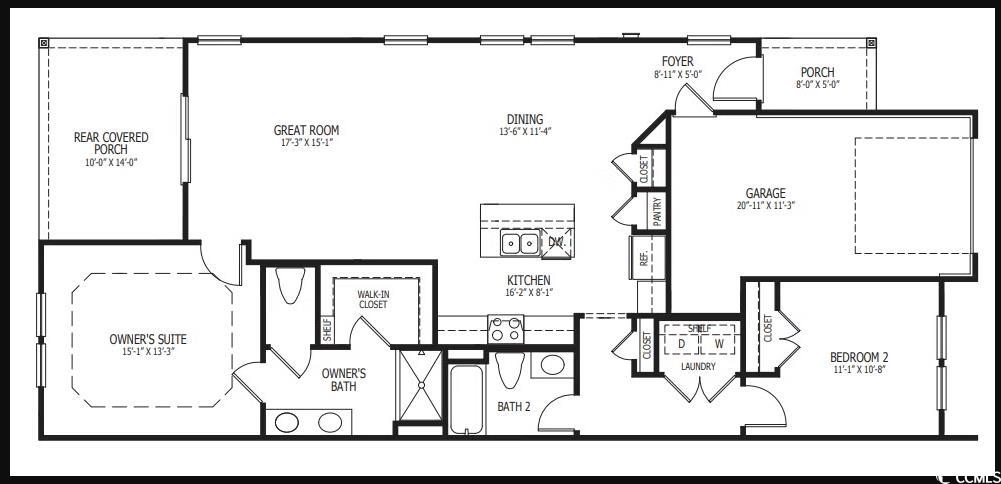
As you enter through the foyer, a door to the garage is conveniently located to your left. Continuing through the home, youll discover a spacious kitchen featuring a beautiful islandperfect for hosting holiday gatherings. The kitchen is equipped with a MOEN brushed nickel faucet and a built-in soap dispenser, adding both style and functionality. Prepare delicious meals on your natural gas stove and enjoy memorable family dinners. To the left of the kitchen, a hallway leads to a bedroom at the end, complete with a walk-in closet on your left. On the right, youll find a full bathroom with a tub, equipped with elegant MOEN brushed nickel bath accessories and faucets for a modern touch. Moving further into the home, the great room invites you to relax after a long day. Cozy up and enjoy your favorite shows in this welcoming space. But the comfort doesnt end there! At the rear of the house, the Owner's Suite awaitsa private retreat with an attached bathroom, walk-in closet, and an enclosed toilet room. The bathroom continues the theme of sophistication with MOEN brushed nickel bath accessories and faucets. Welcome to your new life in The Bayside!
Agriculture / Farm
Grazing Permits Blm: ,No,
Horse: No
Grazing Permits Forest Service: ,No,
Grazing Permits Private: ,No,
Irrigation Water Rights: ,No,
Farm Credit Service Incl: ,No,
Crops Included: ,No,
Association Fees / Info
Hoa Frequency: Monthly
Hoa Fees: 260
Hoa: Yes
Hoa Includes: AssociationManagement, CommonAreas, Internet, RecreationFacilities, Trash
Community Features: Clubhouse, GolfCartsOk, RecreationArea, LongTermRentalAllowed, ShortTermRentalAllowed
Assoc Amenities: Clubhouse, OwnerAllowedGolfCart, OwnerAllowedMotorcycle, PetRestrictions, PetsAllowed, TenantAllowedGolfCart, TenantAllowedMotorcycle
Bathroom Info
Total Baths: 2.00
Fullbaths: 2
Room Dimensions
Bedroom1: 11'8x10'8
DiningRoom: 13'6x11'4
GreatRoom: 17'3x15'1
Kitchen: 16'2x8'1
PrimaryBedroom: 15'1x13'3
Room Level
Bedroom1: First
PrimaryBedroom: First
Room Features
DiningRoom: FamilyDiningRoom, KitchenDiningCombo
Kitchen: KitchenIsland, Pantry, StainlessSteelAppliances, SolidSurfaceCounters
Other: BedroomOnMainLevel, EntranceFoyer, UtilityRoom
Bedroom Info
Beds: 2
Building Info
New Construction: No
Num Stories: 1
Levels: One
Year Built: 2025
Mobile Home Remains: ,No,
Zoning: res
Style: OneStory
Common Walls: EndUnit
Construction Materials: VinylSiding
Entry Level: 1
Building Name: Bayside
Buyer Compensation
Exterior Features
Spa: No
Patio and Porch Features: RearPorch, FrontPorch
Foundation: Slab
Exterior Features: Porch
Financial
Lease Renewal Option: ,No,
Garage / Parking
Garage: Yes
Carport: No
Parking Type: OneCarGarage, Private, GarageDoorOpener
Open Parking: No
Attached Garage: No
Garage Spaces: 1
Green / Env Info
Interior Features
Floor Cover: Carpet, LuxuryVinyl, LuxuryVinylPlank
Fireplace: No
Laundry Features: WasherHookup
Furnished: Unfurnished
Interior Features: SplitBedrooms, BedroomOnMainLevel, EntranceFoyer, KitchenIsland, StainlessSteelAppliances, SolidSurfaceCounters
Appliances: Dishwasher, Disposal, Microwave, Range
Lot Info
Lease Considered: ,No,
Lease Assignable: ,No,
Acres: 0.00
Lot Size: .14
Land Lease: No
Lot Description: Rectangular, RectangularLot
Misc
Pool Private: No
Pets Allowed: OwnerOnly, Yes
Offer Compensation
Other School Info
Property Info
County: Horry
View: No
Senior Community: No
Stipulation of Sale: None
Habitable Residence: ,No,
Property Sub Type Additional: Condominium
Property Attached: No
Disclosures: CovenantsRestrictionsDisclosure
Rent Control: No
Construction: UnderConstruction
Room Info
Basement: ,No,
Sold Info
Sqft Info
Building Sqft: 1761
Living Area Source: Builder
Sqft: 1324
Tax Info
Unit Info
Unit: 10
Utilities / Hvac
Heating: Central, Gas
Cooling: CentralAir
Electric On Property: No
Cooling: Yes
Utilities Available: ElectricityAvailable, NaturalGasAvailable, WaterAvailable
Heating: Yes
Water Source: Public
Waterfront / Water
Waterfront: No
Directions
Off HWY 9, across from Sea Coast Hospital, turn onto Water Grande Boulevard. Go down about 3/4 of a mile and turn right onto Reedgrass Drive and the Sales Center is located in the Model Court.Courtesy of Today Homes Realty Sc, Llc

 
		        	



 Recent Posts RSS
Recent Posts RSS MLS# 2526147
 MLS# 2526147   Provided courtesy of © Copyright 2025 Coastal Carolinas Multiple Listing Service, Inc.®. Information Deemed Reliable but Not Guaranteed. © Copyright 2025 Coastal Carolinas Multiple Listing Service, Inc.® MLS. All rights reserved. Information is provided exclusively for consumers’ personal, non-commercial use, that it may not be used for any purpose other than to identify prospective properties consumers may be interested in purchasing.
Images related to data from the MLS is the sole property of the MLS and not the responsibility of the owner of this website. MLS IDX data last updated on 10-30-2025 10:00 PM EST. 
Any images related to data from the MLS is the sole property of the MLS and not the responsibility of the owner of this website.
 
Provided courtesy of © Copyright 2025 Coastal Carolinas Multiple Listing Service, Inc.®. Information Deemed Reliable but Not Guaranteed. © Copyright 2025 Coastal Carolinas Multiple Listing Service, Inc.® MLS. All rights reserved. Information is provided exclusively for consumers’ personal, non-commercial use, that it may not be used for any purpose other than to identify prospective properties consumers may be interested in purchasing.
Images related to data from the MLS is the sole property of the MLS and not the responsibility of the owner of this website. MLS IDX data last updated on 10-30-2025 10:00 PM EST. 
Any images related to data from the MLS is the sole property of the MLS and not the responsibility of the owner of this website.