Rowe Ventures Realty
(843)602-5690

Viewing Listing MLS# 2521531

$446,990 | 3 beds | 2 full baths | 1 half baths | 2,203 sqft

$446,990 Reduced -$3,000
7028 Edgemoor Ct.
Myrtle Beach, SC 29579
  • 3Beds
  • 2Full Baths
  • 1Half Baths
  • 2,203SqFt
  • 2025Year Built
  • 0.33Acres
  • MLS# 2521531
  • Residential
  • Detached
  • Active


Overview

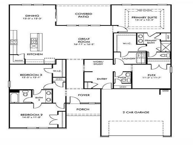
Brand new, energy-efficient home available by Sep 2025! Answer emails from the comfort of your home in the designated work/study area. The nearby flex space is perfect for a craft room or media room. The Kensingtons luxurious primary suite features an elegant tray ceiling, dual sinks, and a walk-in closet. Experience the ultimate in energy-efficiency living with a new home in Clear Pond. This master-planned community offers an array of amenities including swimming pools, fitness center, sports courts and more. The Coastline Series features one- and two-story homes on spacious homesites, some with pond views. Located just minutes away from restaurants, beachside attractions and highly-rated schools, Clear Pond is designed to fit your life. Each of our homes is built with innovative, energy-efficient features designed to help you enjoy more savings, better health, real comfort and peace of mind.



Agriculture / Farm

Grazing Permits Blm:  ,No,

Horse:  No

Grazing Permits Forest Service:  ,No,

Grazing Permits Private:  ,No,

Irrigation Water Rights:  ,No,

Farm Credit Service Incl:  ,No,

Crops Included:  ,No,

Association Fees / Info

Hoa Frequency:  Monthly

Hoa Fees:  105

Hoa:  Yes

Hoa Includes:  CommonAreas, RecreationFacilities, Trash

Community Features:  Clubhouse, RecreationArea, LongTermRentalAllowed, Pool

Assoc Amenities:  Clubhouse

Bathroom Info

Total Baths:  3.00

Halfbaths:  1

Fullbaths:  2

Room Dimensions

Bedroom1: 12X12

Bedroom2: 14X11

DiningRoom: 13X12

GreatRoom: 16X16

PrimaryBedroom: 15X13

Room Level

Bedroom1: First

Bedroom2: First

PrimaryBedroom: First

Room Features

Kitchen: KitchenExhaustFan, Pantry, SolidSurfaceCounters

Bedroom Info

Beds:  3

Building Info

New Construction:  Yes

Num Stories:  1

Levels:  One

Year Built:  2025

Mobile Home Remains:  ,No,

Zoning:  RES

Style:  Ranch

Development Status:  NewConstruction

Construction Materials:  BrickVeneer, VinylSiding

Builders Name:  Meritage Homes

Builder Model:  Kensington

Buyer Compensation

Exterior Features

Spa:  No

Pool Features:  Community, OutdoorPool

Foundation:  Slab

Financial

Lease Renewal Option:  ,No,

Garage / Parking

Parking Capacity:  4

Garage:  Yes

Carport:  No

Parking Type:  Attached, Garage, TwoCarGarage, GarageDoorOpener

Open Parking:  No

Attached Garage:  Yes

Garage Spaces:  2

Green / Env Info

Interior Features

Floor Cover:  Carpet, Tile, Vinyl

Fireplace:  No

Laundry Features:  WasherHookup

Furnished:  Unfurnished

Interior Features:  Attic, PullDownAtticStairs, PermanentAtticStairs, SolidSurfaceCounters

Appliances:  Dishwasher, Disposal, Microwave, RangeHood

Lot Info

Lease Considered:  ,No,

Lease Assignable:  ,No,

Acres:  0.33

Land Lease:  No

Lot Description:  CityLot, Rectangular, RectangularLot

Misc

Pool Private:  No

Offer Compensation

Other School Info

Property Info

County:  Horry

View:  No

Senior Community:  No

Stipulation of Sale:  None

Habitable Residence:  ,No,

Property Sub Type Additional:  Detached

Property Attached:  No

Security Features:  SecuritySystem, SmokeDetectors

Disclosures:  CovenantsRestrictionsDisclosure

Rent Control:  No

Construction:  NeverOccupied

Room Info

Basement:  ,No,

Sold Info

Sqft Info

Building Sqft:  2684

Living Area Source:  Plans

Sqft:  2203

Tax Info

Unit Info

Utilities / Hvac

Cooling:  CentralAir

Electric On Property:  No

Cooling:  Yes

Utilities Available:  ElectricityAvailable, NaturalGasAvailable, SewerAvailable, UndergroundUtilities, WaterAvailable

Heating:  No

Water Source:  Public

Waterfront / Water

Waterfront:  No

Directions

From Myrtle Beach: Take US-501 N to Gardner Lacy Rd in Carolina Forest. Turn right on Gardner Lacy Rd. and left onto Clear Pond Blvd. At the traffic circle, take the 1st exit onto Poplarwood Dr. and turn left.

Courtesy of Meritage Homes Of The Carolina 

Mortgage Calculator

%
$
%
Dollars per $1000
$
Approximate Monthly Payment 0.0
Price & Status History (on roweventures.com since Wed, Sep 3rd 2025)
  • Original Price: $453,490
  • Current Price: $446,990
  • Price Reduced: $6,500
Date ChangedFromTo
10/07/2025$449,990 $446,990 Reduced by $3,000
10/03/2025$453,490 $449,990 Reduced by $3,500

Broker Reciprocity Provided courtesy of © Copyright 2025 Coastal Carolinas Multiple Listing Service, Inc.®. Information Deemed Reliable but Not Guaranteed. © Copyright 2025 Coastal Carolinas Multiple Listing Service, Inc.® MLS. All rights reserved. Information is provided exclusively for consumers’ personal, non-commercial use, that it may not be used for any purpose other than to identify prospective properties consumers may be interested in purchasing. Images related to data from the MLS is the sole property of the MLS and not the responsibility of the owner of this website. MLS IDX data last updated on 10-21-2025 11:21 AM EST.
Any images related to data from the MLS is the sole property of the MLS and not the responsibility of the owner of this website.
This real estate website and IDX data is Powered & Hosted by Dynamic IDX, LLC Real Estate Web Solutions