Rowe Ventures Realty
(843)602-5690

Viewing Listing MLS# 2520488

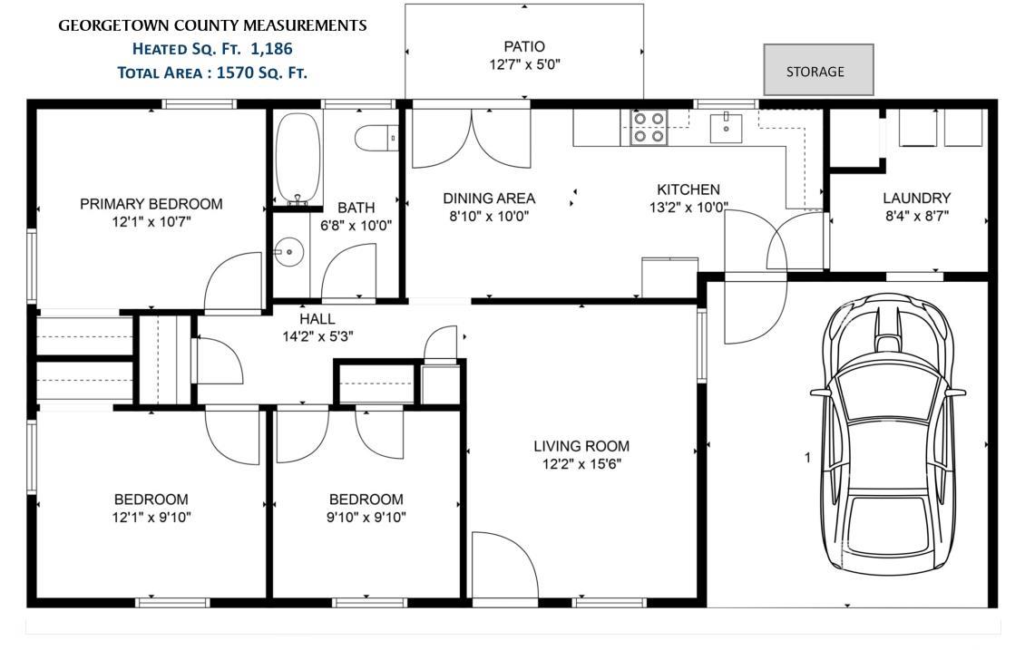
$219,000 | 3 beds | 1 full baths | N/A half baths | 1,186 sqft

$219,000 No Recent Price Change
1607 Oak St.
Georgetown, SC 29440
  • 3Beds
  • 1Full Baths
  • N/AHalf Baths
  • 1,186SqFt
  • 1973Year Built
  • 0.29Acres
  • MLS# 2520488
  • Residential
  • Detached
  • Active

  • Approx Time on Market1 month, 21 days
  • AreaGeorgetown Area--Maryville/south of Gtown & East of 17
  • CountyGeorgetown
  • Subdivision Maryville Farms

Overview

Great Opportunity Low Country Georgetown Home -No HOA This charming single-level brick home in Georgetown, SC, offers relaxed Low Country living just minutes from the rivers and the ocean. Newly painted throughout, smooth ceilings and durable metal roof, this 3-bedroom, 1-bath home sits on a .3-acre lot with 1,100 heated square feet, a carport, and a dedicated laundry room. With no HOA, youll enjoy the freedom to make this property your own. Youll be able to keep your boat or camper right on your property. This is the fisherman and boaters ultimate location. This home is less than a mile from the public boat ramp. Youll have easy access to Winyah Bay, Mud Bay, The Waccamaw, Pee Dee, Black, and Sampit Rivers, Inter-Coastal Waterway and Ocean. For the Beach lover, Pawleys Island Beaches are just miles away. Located just outside the heart of Historic Georgetown, youre also close to waterfront shopping, dining, and all the charm this coastal town has to offer. Whether youre looking for a full-time residence, weekend getaway, or investment property, this home is a great opportunity in a peaceful and convenient location. Located 14 miles South of Pawleys Island, 50 miles North of Charleston, and 35 miles South of Myrtle Beach



Agriculture / Farm

Grazing Permits Blm:  ,No,

Horse:  No

Grazing Permits Forest Service:  ,No,

Grazing Permits Private:  ,No,

Irrigation Water Rights:  ,No,

Farm Credit Service Incl:  ,No,

Crops Included:  ,No,

Association Fees / Info

Hoa Frequency:  Monthly

Hoa:  No

Community Features:  BoatFacilities, GolfCartsOk, LongTermRentalAllowed, ShortTermRentalAllowed

Assoc Amenities:  BoatRamp, OwnerAllowedGolfCart, OwnerAllowedMotorcycle, PetRestrictions, TenantAllowedGolfCart, TenantAllowedMotorcycle

Bathroom Info

Total Baths:  1.00

Fullbaths:  1

Room Dimensions

Bedroom1: 10 x 10

Bedroom2: 10 x 12.5

GreatRoom: 12.5 x 15

Kitchen: 10 x 21

PrimaryBedroom: 11 x 12.5

Room Level

Bedroom1: First

Bedroom2: First

PrimaryBedroom: First

Room Features

FamilyRoom: CeilingFans

Kitchen: KitchenExhaustFan, StainlessSteelAppliances

Bedroom Info

Beds:  3

Building Info

New Construction:  No

Num Stories:  1

Levels:  One

Year Built:  1973

Mobile Home Remains:  ,No,

Zoning:  Q100

Style:  Ranch

Construction Materials:  Brick

Buyer Compensation

Exterior Features

Spa:  No

Patio and Porch Features:  Patio

Foundation:  Slab

Exterior Features:  Patio

Financial

Lease Renewal Option:  ,No,

Garage / Parking

Parking Capacity:  4

Garage:  No

Carport:  Yes

Parking Type:  Carport

Open Parking:  No

Attached Garage:  No

Green / Env Info

Interior Features

Floor Cover:  LuxuryVinyl, LuxuryVinylPlank, Tile

Fireplace:  No

Furnished:  Unfurnished

Interior Features:  StainlessSteelAppliances

Appliances:  Refrigerator, RangeHood

Lot Info

Lease Considered:  ,No,

Lease Assignable:  ,No,

Acres:  0.29

Land Lease:  No

Lot Description:  CornerLot, OutsideCityLimits, Rectangular, RectangularLot

Misc

Pool Private:  No

Pets Allowed:  OwnerOnly, Yes

Offer Compensation

Other School Info

Property Info

County:  Georgetown

View:  No

Senior Community:  No

Stipulation of Sale:  None

Habitable Residence:  ,No,

Property Sub Type Additional:  Detached

Property Attached:  No

Rent Control:  No

Construction:  Resale

Room Info

Basement:  ,No,

Sold Info

Sqft Info

Building Sqft:  1570

Living Area Source:  PublicRecords

Sqft:  1186

Tax Info

Unit Info

Utilities / Hvac

Heating:  Central

Electric On Property:  No

Cooling:  No

Heating:  Yes

Waterfront / Water

Waterfront:  No

Directions

Heading south on 17 Stay on N Fraser Street, cross over the bridge into Maryville, make a left on Martin Street and in 350 feet make a right on to Oak Street, property is 150' on your left.

Courtesy of Peace Sotheby's Intl Realty Pi 

Mortgage Calculator

%
$
%
Dollars per $1000
$
Approximate Monthly Payment 0.0
Price & Status History (on roweventures.com since Thu, Aug 21st 2025)
  • Original Price: $219,000
  • Current Price: $219,000
  • Price Reduced: $0
Date ChangedFromTo
09/25/2025Active Under ContractActive
08/28/2025ActiveActive Under Contract

Broker Reciprocity Provided courtesy of © Copyright 2025 Coastal Carolinas Multiple Listing Service, Inc.®. Information Deemed Reliable but Not Guaranteed. © Copyright 2025 Coastal Carolinas Multiple Listing Service, Inc.® MLS. All rights reserved. Information is provided exclusively for consumers’ personal, non-commercial use, that it may not be used for any purpose other than to identify prospective properties consumers may be interested in purchasing. Images related to data from the MLS is the sole property of the MLS and not the responsibility of the owner of this website. MLS IDX data last updated on 10-12-2025 11:50 PM EST.
Any images related to data from the MLS is the sole property of the MLS and not the responsibility of the owner of this website.
This real estate website and IDX data is Powered & Hosted by Dynamic IDX, LLC Real Estate Web Solutions