Viewing Listing MLS# 2519553
Myrtle Beach, SC 29577
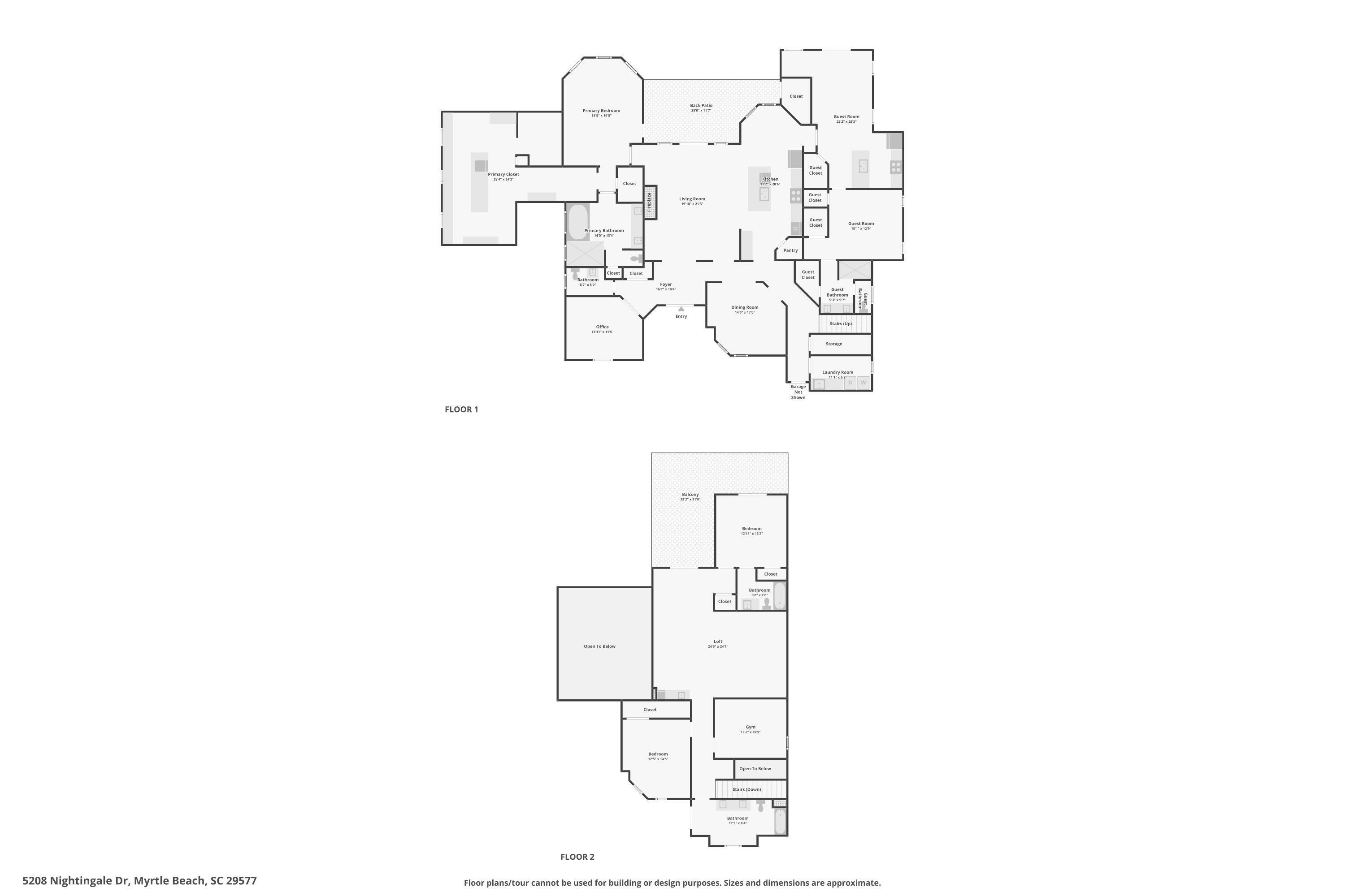
- 5Beds
- 4Full Baths
- 2Half Baths
- 5,100SqFt
- 2016Year Built
- 0.53Acres
- MLS# 2519553
- Residential
- Detached
- Active
- Approx Time on Market3 months, 13 days
- AreaMyrtle Beach Area--29th Ave N To 48th Ave N
- CountyHorry
- Subdivision Plantation Point
Overview
Waterfront Mediterranean Estate in Plantation Point - Elegance Meets Coastal Living Welcome to an exceptional Mediterranean-style retreat tucked within the highly sought-after Plantation Point community, directly along the deep-water Intracoastal Waterway. This expansive estate offers the perfect blend of refined luxury and relaxed coastal lifestyle, with over 5,000 square feet of heated living space and nearly 7,000 square feet under roof. Designed for both effortless entertaining and everyday comfort, the home features 5 generously sized bedrooms, 4 full baths, and 2 half baths. The interior showcases thoughtfully crafted spaces, from open-concept living areas to a show-stopping boutique-style primary closetamong the most luxurious on the East Coast. Step outside and discover your own private resort. The beautifully designed outdoor living area includes a heated saltwater pool and spa, plus a fully outfitted summer kitchenideal for al fresco dining and unforgettable waterfront gatherings. A private dock with a high-capacity boat lift ensures quick access to the water for boating enthusiasts. Additional features include a spacious three-car insulated garage, a separate golf cart garage, and a private guest or in-law suite complete with its own kitchen, bedroom, and bathroomperfect for extended family, an au pair, or private staff. The home is also equipped with a whole-house Sonos sound system installed in 2023, blending high-end finishes with cutting-edge convenience. This extraordinary property offers an unmatched opportunity to own a true piece of the Grand Strand lifestyleluxurious, private, and perfectly positioned on the water.
Agriculture / Farm
Grazing Permits Blm: ,No,
Horse: No
Grazing Permits Forest Service: ,No,
Other Structures: SecondGarage
Grazing Permits Private: ,No,
Irrigation Water Rights: ,No,
Farm Credit Service Incl: ,No,
Crops Included: ,No,
Association Fees / Info
Hoa Frequency: Monthly
Hoa: No
Community Features: GolfCartsOk
Assoc Amenities: OwnerAllowedGolfCart, PetRestrictions
Bathroom Info
Total Baths: 6.00
Halfbaths: 2
Fullbaths: 4
Room Features
DiningRoom: TrayCeilings, SeparateFormalDiningRoom
FamilyRoom: WetBar, TrayCeilings, CeilingFans
Kitchen: BreakfastBar, BreakfastArea, KitchenExhaustFan, KitchenIsland, Pantry, StainlessSteelAppliances, SolidSurfaceCounters
LivingRoom: TrayCeilings, Fireplace, VaultedCeilings
Other: BedroomOnMainLevel, EntranceFoyer, InLawFloorplan, Library, Other, UtilityRoom
Bedroom Info
Beds: 5
Building Info
New Construction: No
Levels: Two
Year Built: 2016
Mobile Home Remains: ,No,
Zoning: Res
Style: Mediterranean
Construction Materials: Stucco
Buyer Compensation
Exterior Features
Spa: Yes
Patio and Porch Features: Balcony, RearPorch, Deck, Patio
Spa Features: HotTub
Window Features: StormWindows
Pool Features: InGround, OutdoorPool, Private
Foundation: Slab
Exterior Features: BuiltInBarbecue, Balcony, Barbecue, Deck, Dock, Fence, HotTubSpa, SprinklerIrrigation, OutdoorKitchen, Pool, Porch, Patio, Storage
Financial
Lease Renewal Option: ,No,
Garage / Parking
Parking Capacity: 9
Garage: Yes
Carport: No
Parking Type: Attached, Garage, ThreeCarGarage, Boat, GolfCartGarage, GarageDoorOpener
Open Parking: No
Attached Garage: Yes
Garage Spaces: 3
Green / Env Info
Green Energy Efficient: Doors, Windows
Interior Features
Floor Cover: Carpet, Tile, Wood
Door Features: InsulatedDoors, StormDoors
Fireplace: Yes
Laundry Features: WasherHookup
Furnished: Unfurnished
Interior Features: Fireplace, BreakfastBar, BedroomOnMainLevel, BreakfastArea, EntranceFoyer, InLawFloorplan, KitchenIsland, StainlessSteelAppliances, SolidSurfaceCounters
Appliances: DoubleOven, Dishwasher, Freezer, Microwave, Range, Refrigerator, RangeHood, Dryer, Washer
Lot Info
Lease Considered: ,No,
Lease Assignable: ,No,
Acres: 0.53
Land Lease: No
Lot Description: OutsideCityLimits, Rectangular, RectangularLot
Misc
Pool Private: Yes
Pets Allowed: OwnerOnly, Yes
Offer Compensation
Other School Info
Property Info
County: Horry
View: No
Senior Community: No
Stipulation of Sale: None
Habitable Residence: ,No,
View: Intercoastal
Property Sub Type Additional: Detached
Property Attached: No
Security Features: SecuritySystem, SmokeDetectors
Disclosures: SellerDisclosure
Rent Control: No
Construction: Resale
Room Info
Basement: ,No,
Sold Info
Sqft Info
Building Sqft: 6893
Living Area Source: Estimated
Sqft: 5100
Tax Info
Unit Info
Utilities / Hvac
Heating: Central
Electric On Property: No
Cooling: No
Utilities Available: CableAvailable, ElectricityAvailable, SewerAvailable
Heating: Yes
Waterfront / Water
Waterfront: No
Waterfront Features: DockAccess, IntracoastalAccess
Schools
Elem: Myrtle Beach Elementary School
Middle: Myrtle Beach Middle School
High: Myrtle Beach High School
Courtesy of Era Real Estate Modo





Recent Posts RSS
Provided courtesy of © Copyright 2025 Coastal Carolinas Multiple Listing Service, Inc.®. Information Deemed Reliable but Not Guaranteed. © Copyright 2025 Coastal Carolinas Multiple Listing Service, Inc.® MLS. All rights reserved. Information is provided exclusively for consumers’ personal, non-commercial use, that it may not be used for any purpose other than to identify prospective properties consumers may be interested in purchasing.
Images related to data from the MLS is the sole property of the MLS and not the responsibility of the owner of this website. MLS IDX data last updated on 11-25-2025 9:32 AM EST.
Any images related to data from the MLS is the sole property of the MLS and not the responsibility of the owner of this website.