Rowe Ventures Realty
(843)602-5690

Viewing Listing MLS# 2518869

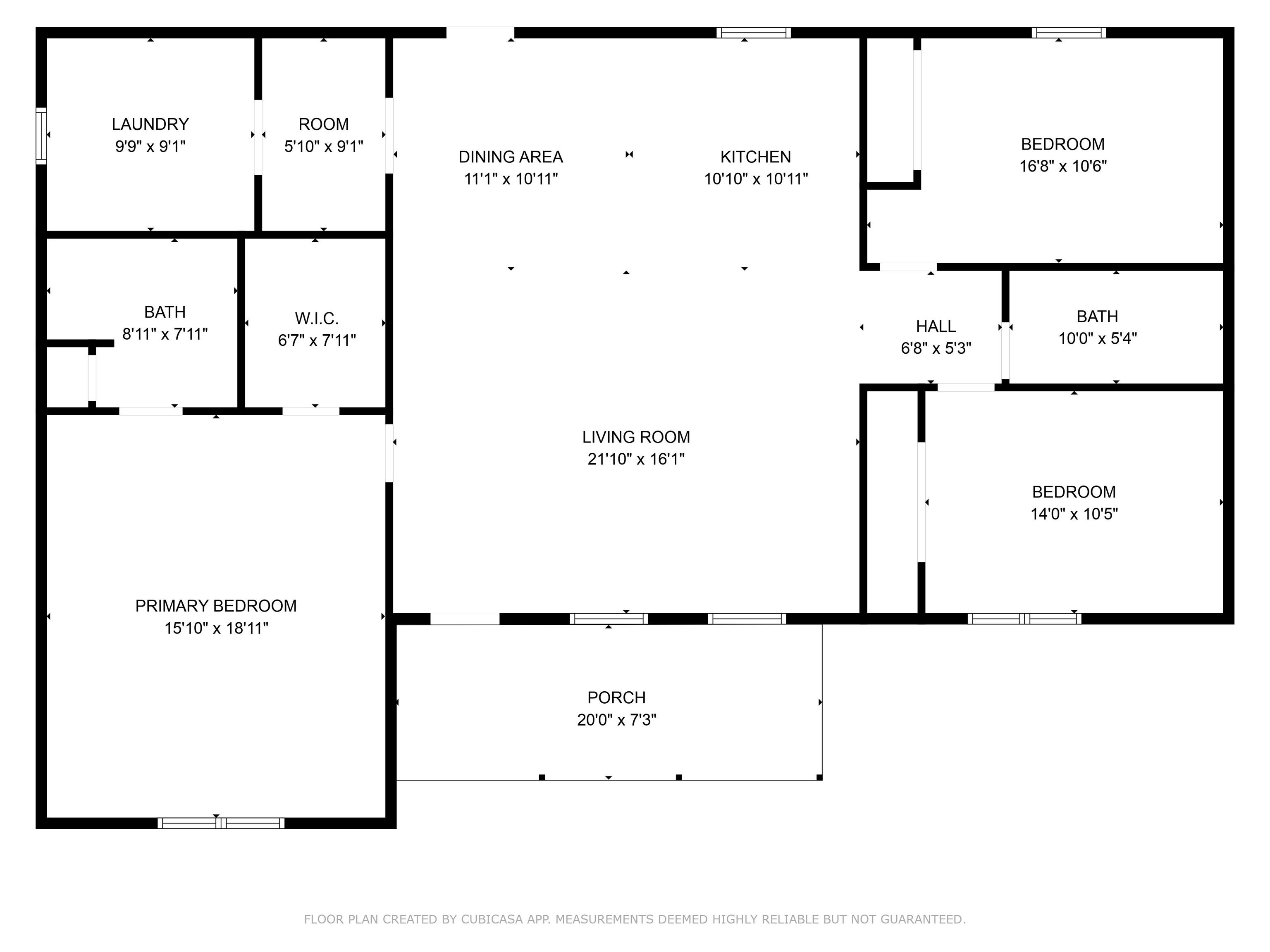
$274,900 | 3 beds | 2 full baths | N/A half baths | 1,744 sqft

$274,900 Reduced -$15,000
308 Todd School Rd.
Mullins, SC 29574
  • 3Beds
  • 2Full Baths
  • N/AHalf Baths
  • 1,744SqFt
  • 2025Year Built
  • 0.84Acres
  • MLS# 2518869
  • Residential
  • Detached
  • Active

  • Approx Time on Market2 months, 8 days
  • Area31a Other Counties In South Carolina
  • CountyMarion
  • Subdivision Not within a Subdivision

Overview

New construction located between Marion and Mullins, just off Highway 76! This three-bedroom, two-bath home sits on a spacious 0.84-acre lot and features an open floor plan with approximately 1,744 square feet of living space. Enjoy the benefits of Marco Water, country living, no HOA, and no city taxes. The estimated completion date is mid-September. Please note: Photos are actual images that have been digitally enhanced to represent the finished product.



Agriculture / Farm

Grazing Permits Blm:  ,No,

Horse:  No

Grazing Permits Forest Service:  ,No,

Grazing Permits Private:  ,No,

Irrigation Water Rights:  ,No,

Farm Credit Service Incl:  ,No,

Crops Included:  ,No,

Association Fees / Info

Hoa Frequency:  Monthly

Hoa:  No

Bathroom Info

Total Baths:  2.00

Fullbaths:  2

Bedroom Info

Beds:  3

Building Info

New Construction:  No

Levels:  One

Year Built:  2025

Mobile Home Remains:  ,No,

Zoning:  None

Style:  Traditional

Construction Materials:  VinylSiding

Buyer Compensation

Exterior Features

Spa:  No

Patio and Porch Features:  FrontPorch

Foundation:  Slab

Financial

Lease Renewal Option:  ,No,

Garage / Parking

Garage:  No

Carport:  No

Parking Type:  None

Open Parking:  No

Attached Garage:  No

Green / Env Info

Interior Features

Floor Cover:  LuxuryVinyl, LuxuryVinylPlank

Fireplace:  No

Furnished:  Unfurnished

Appliances:  Range

Lot Info

Lease Considered:  ,No,

Lease Assignable:  ,No,

Acres:  0.84

Land Lease:  No

Lot Description:  Rectangular, RectangularLot

Misc

Pool Private:  No

Offer Compensation

Other School Info

Property Info

County:  Marion

View:  No

Senior Community:  No

Stipulation of Sale:  None

Habitable Residence:  ,No,

Property Sub Type Additional:  Detached

Property Attached:  No

Rent Control:  No

Construction:  UnderConstruction

Room Info

Basement:  ,No,

Sold Info

Sqft Info

Building Sqft:  1906

Living Area Source:  Plans

Sqft:  1744

Tax Info

Unit Info

Utilities / Hvac

Heating:  Central

Cooling:  CentralAir

Electric On Property:  No

Cooling:  Yes

Sewer:  SepticTank

Utilities Available:  ElectricityAvailable, SepticAvailable, WaterAvailable

Heating:  Yes

Water Source:  Public

Waterfront / Water

Waterfront:  No

Courtesy of Swamp Fox Realty & Appraisals, 

Mortgage Calculator

%
$
%
Dollars per $1000
$
Approximate Monthly Payment 0.0
Price & Status History (on roweventures.com since Sun, Aug 3rd 2025)
  • Original Price: $289,900
  • Current Price: $274,900
  • Price Reduced: $15,000
Date ChangedFromTo
08/25/2025$289,900 $274,900 Reduced by $15,000

Broker Reciprocity Provided courtesy of © Copyright 2025 Coastal Carolinas Multiple Listing Service, Inc.®. Information Deemed Reliable but Not Guaranteed. © Copyright 2025 Coastal Carolinas Multiple Listing Service, Inc.® MLS. All rights reserved. Information is provided exclusively for consumers’ personal, non-commercial use, that it may not be used for any purpose other than to identify prospective properties consumers may be interested in purchasing. Images related to data from the MLS is the sole property of the MLS and not the responsibility of the owner of this website. MLS IDX data last updated on 10-11-2025 3:45 PM EST.
Any images related to data from the MLS is the sole property of the MLS and not the responsibility of the owner of this website.
This real estate website and IDX data is Powered & Hosted by Dynamic IDX, LLC Real Estate Web Solutions