Viewing Listing MLS# 2515324
Myrtle Beach, SC 29579
- 4Beds
- 2Full Baths
- 1Half Baths
- 1,619SqFt
- 2004Year Built
- 0.16Acres
- MLS# 2515324
- Residential
- Detached
- Active
- Approx Time on Market4 months, 5 days
- AreaMyrtle Beach Area-- South of 501 Between Burcale & Waterway
- CountyHorry
- Subdivision Arrowhead
Overview
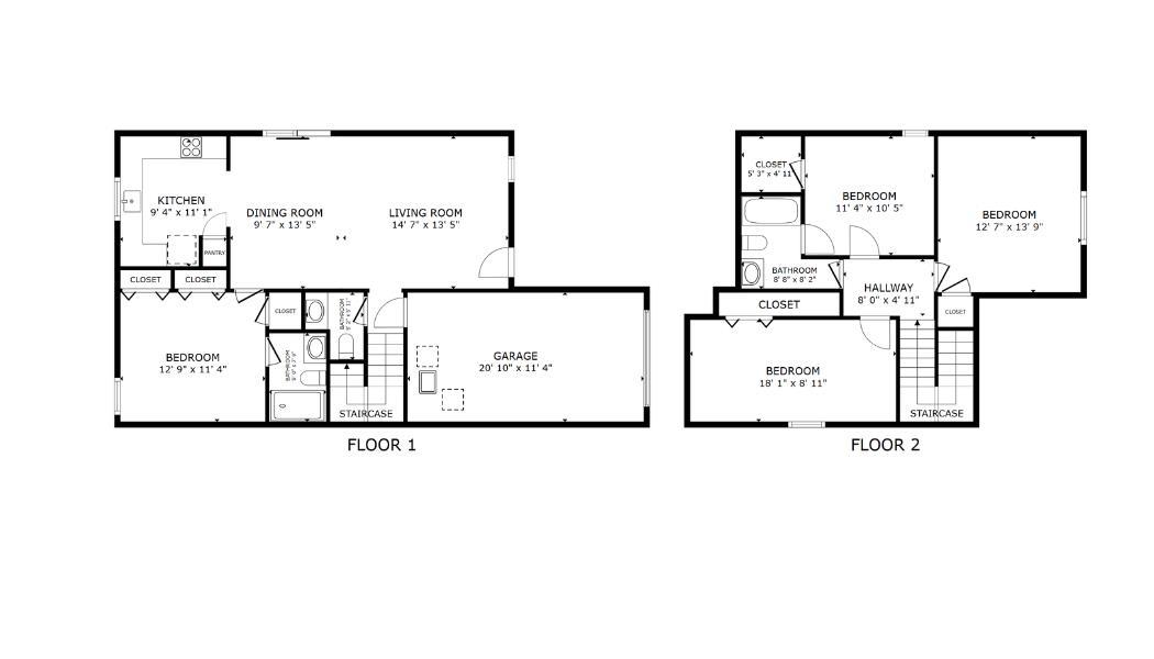
Golf Course Gem in Arrowhead with in amazing new price! Youll be pleasantly surprisedthis home feels anything but small. Its airy design and thoughtful layout create a sense of space that lives much larger than expected. Its one you truly have to walk through to appreciate. Located in the sought-after Arrowhead golf course community, this beautifully maintained 4-bedroom, 2.5-bath home is ideal for growing families or those needing flexibility. The first-floor primary suite offers a peaceful retreat with a spa-inspired en-suite featuring a tiled walk-in shower and sleek glass enclosure. Natural light fills the main living areas, which flow seamlessly into a well-equipped kitchen and dining spaceperfect for both everyday living and entertaining. New flooring throughout enhances the homes fresh, move-in-ready feel. Upstairs, three additional bedrooms offer plenty of flexibility for childrens rooms, guest accommodations, or home office needs. HVAC was replaced in April 2019, and the water heater was updated in 2020providing peace of mind for years to come. Step outside to a private patio overlooking manicured fairways, surrounded by mature trees and lush landscapingperfect for morning coffee or weekend barbecues. With low HOA fees, access to community pools, tennis courts, and parks, plus a location just minutes from beaches, top-rated schools, Myrtle Beach International Airport, and Grand Strand attractions, this home delivers exceptional comfort, convenience, and lifestyle.
Agriculture / Farm
Grazing Permits Blm: ,No,
Horse: No
Grazing Permits Forest Service: ,No,
Grazing Permits Private: ,No,
Irrigation Water Rights: ,No,
Farm Credit Service Incl: ,No,
Crops Included: ,No,
Association Fees / Info
Hoa Frequency: Monthly
Hoa Fees: 52
Hoa: Yes
Hoa Includes: CommonAreas, Pools, RecreationFacilities, Trash
Community Features: Clubhouse, GolfCartsOk, RecreationArea, TennisCourts, Golf, LongTermRentalAllowed, Pool
Assoc Amenities: Clubhouse, OwnerAllowedGolfCart, TenantAllowedGolfCart, TennisCourts
Bathroom Info
Total Baths: 3.00
Halfbaths: 1
Fullbaths: 2
Room Level
Bedroom1: Second
Bedroom2: Second
Bedroom3: Second
PrimaryBedroom: First
Room Features
Kitchen: Pantry, SolidSurfaceCounters
LivingRoom: CeilingFans
Bedroom Info
Beds: 4
Building Info
New Construction: No
Levels: Two
Year Built: 2004
Mobile Home Remains: ,No,
Zoning: GR
Style: Traditional
Construction Materials: VinylSiding
Builders Name: D.R Horton
Builder Model: Pennington
Buyer Compensation
Exterior Features
Spa: No
Patio and Porch Features: Patio
Pool Features: Community, OutdoorPool
Foundation: Slab
Exterior Features: Fence, SprinklerIrrigation, Patio
Financial
Lease Renewal Option: ,No,
Garage / Parking
Parking Capacity: 3
Garage: Yes
Carport: No
Parking Type: Attached, Garage, OneSpace, GarageDoorOpener
Open Parking: No
Attached Garage: No
Garage Spaces: 1
Green / Env Info
Interior Features
Floor Cover: Carpet, LuxuryVinyl, LuxuryVinylPlank
Door Features: StormDoors
Fireplace: No
Laundry Features: WasherHookup
Furnished: Unfurnished
Interior Features: SolidSurfaceCounters
Appliances: Dishwasher, Disposal, Microwave, Range, Refrigerator, Dryer, Washer
Lot Info
Lease Considered: ,No,
Lease Assignable: ,No,
Acres: 0.16
Lot Size: 72x109x53x117
Land Lease: No
Lot Description: NearGolfCourse, OutsideCityLimits, OnGolfCourse, Rectangular, RectangularLot
Misc
Pool Private: No
Offer Compensation
Other School Info
Property Info
County: Horry
View: Yes
Senior Community: No
Stipulation of Sale: None
Habitable Residence: ,No,
View: GolfCourse
Property Sub Type Additional: Detached
Property Attached: No
Security Features: SmokeDetectors
Disclosures: CovenantsRestrictionsDisclosure,SellerDisclosure
Rent Control: No
Construction: Resale
Room Info
Basement: ,No,
Sold Info
Sqft Info
Building Sqft: 1869
Living Area Source: Appraiser
Sqft: 1619
Tax Info
Unit Info
Utilities / Hvac
Heating: Central, Electric
Cooling: CentralAir
Electric On Property: No
Cooling: Yes
Utilities Available: CableAvailable, ElectricityAvailable, PhoneAvailable, SewerAvailable, UndergroundUtilities, WaterAvailable
Heating: Yes
Water Source: Public
Waterfront / Water
Waterfront: No
Directions
Driving on Hwy 501, turn onto George Bishop Pkwy. Turn right on Claypond Rd, then turn left on Arrowhead Blvd to enter the community. Turn right onto Barclay Dr, 161 Barclay Dr will be on the left-hand side.Courtesy of Realty One Group Dockside





Recent Posts RSS
MLS# 2525641
Provided courtesy of © Copyright 2025 Coastal Carolinas Multiple Listing Service, Inc.®. Information Deemed Reliable but Not Guaranteed. © Copyright 2025 Coastal Carolinas Multiple Listing Service, Inc.® MLS. All rights reserved. Information is provided exclusively for consumers’ personal, non-commercial use, that it may not be used for any purpose other than to identify prospective properties consumers may be interested in purchasing.
Images related to data from the MLS is the sole property of the MLS and not the responsibility of the owner of this website. MLS IDX data last updated on 10-25-2025 12:50 PM EST.
Any images related to data from the MLS is the sole property of the MLS and not the responsibility of the owner of this website.