Viewing Listing MLS# 2507109
Myrtle Beach, SC 29579
- 4Beds
- 2Full Baths
- 1Half Baths
- 1,650SqFt
- 2000Year Built
- 0.15Acres
- MLS# 2507109
- Residential
- Detached
- Active
- Approx Time on Market8 months, 4 days
- AreaMyrtle Beach Area--Carolina Forest
- CountyHorry
- Subdivision Southgate
Overview
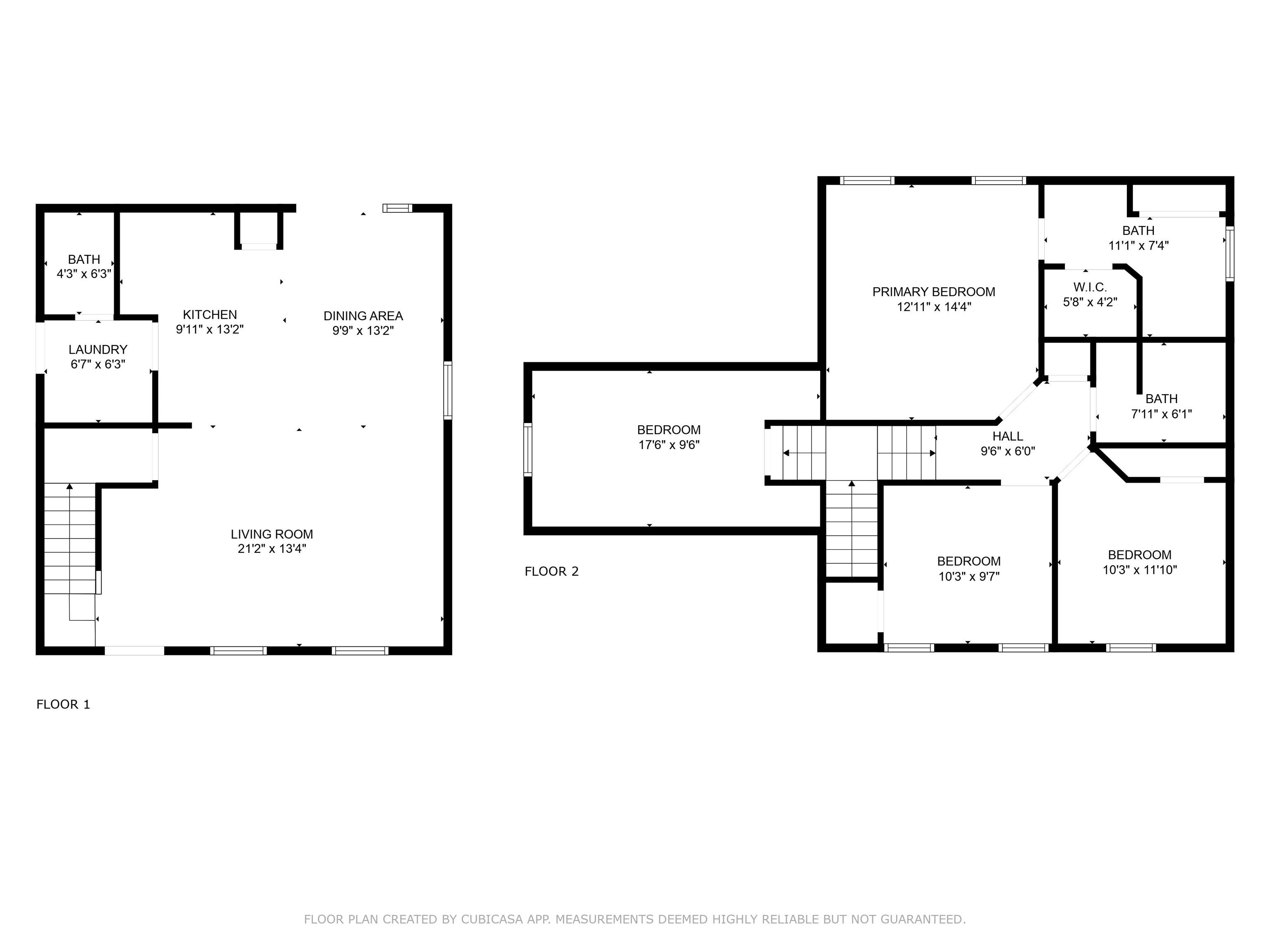
Welcome home to this charming 4-bedroom, 2.5-bathroom two-story home, offering a perfect blend of comfort and convenience! Built around 2000, this well-maintained property features a new roof (2018) and an updated HVAC system (2015) for peace of mind. Inside, the spacious main living areas are downstairs, including a bright living room, dining area, and kitchenideal for entertaining. Upstairs, you'll find four bedrooms and two full baths for privacy and relaxation. Step outside to enjoy a fenced backyard with a patio, perfect for outdoor gatherings. Two exterior structures convey with the property, providing additional storage or workspace. Homes comes with a transferable termite bond. Located in a desirable neighborhood with a clubhouse, outdoor pool, and other great amenities, this home is a fantastic opportunity. Schedule your showing today!
Agriculture / Farm
Association Fees / Info
Hoa Frequency: Monthly
Hoa Fees: 41
Hoa: Yes
Hoa Includes: Pools, RecreationFacilities
Community Features: Clubhouse, GolfCartsOk, RecreationArea, LongTermRentalAllowed, Pool
Assoc Amenities: Clubhouse, OwnerAllowedGolfCart, OwnerAllowedMotorcycle, PetRestrictions
Bathroom Info
Total Baths: 3.00
Halfbaths: 1
Fullbaths: 2
Bedroom Info
Beds: 4
Building Info
Levels: Two
Year Built: 2000
Zoning: res
Style: Traditional
Buyer Compensation
Exterior Features
Patio and Porch Features: FrontPorch, Patio
Pool Features: Community, OutdoorPool
Foundation: Slab
Exterior Features: Fence, Patio
Financial
Garage / Parking
Parking Capacity: 2
Garage: Yes
Parking Type: Attached, Garage, TwoCarGarage
Attached Garage: Yes
Garage Spaces: 2
Green / Env Info
Interior Features
Laundry Features: WasherHookup
Furnished: Unfurnished
Appliances: Dishwasher, Microwave, Refrigerator, Dryer, Washer
Lot Info
Acres: 0.15
Lot Description: OutsideCityLimits
Misc
Pets Allowed: OwnerOnly, Yes
Offer Compensation
Other School Info
Property Info
County: Horry
Stipulation of Sale: None
Property Sub Type Additional: Detached
Disclosures: CovenantsRestrictionsDisclosure,SellerDisclosure
Construction: Resale
Room Info
Sold Info
Sqft Info
Building Sqft: 2150
Living Area Source: PublicRecords
Sqft: 1650
Tax Info
Unit Info
Utilities / Hvac
Heating: Central
Cooling: CentralAir
Cooling: Yes
Utilities Available: CableAvailable, ElectricityAvailable, SewerAvailable, UndergroundUtilities, WaterAvailable
Heating: Yes
Water Source: Public
Waterfront / Water
Directions
From Carolina Forest Blvd coming from 501 - Southgate neighborhood is on your right. Left if coming from River Oaks direction.Courtesy of Innovate Real Estate





Recent Posts RSS
MLS# 2523808
Provided courtesy of © Copyright 2025 Coastal Carolinas Multiple Listing Service, Inc.®. Information Deemed Reliable but Not Guaranteed. © Copyright 2025 Coastal Carolinas Multiple Listing Service, Inc.® MLS. All rights reserved. Information is provided exclusively for consumers’ personal, non-commercial use, that it may not be used for any purpose other than to identify prospective properties consumers may be interested in purchasing.
Images related to data from the MLS is the sole property of the MLS and not the responsibility of the owner of this website. MLS IDX data last updated on 11-25-2025 11:48 PM EST.
Any images related to data from the MLS is the sole property of the MLS and not the responsibility of the owner of this website.