Viewing Listing MLS# 2608098
Myrtle Beach, SC 29577
- N/ABeds
- N/AFull Baths
- N/AHalf Baths
- 2,574SqFt
- 2025Year Built
- 0.00Acres
- MLS# 2608098
- Residential
- Duplex
- Active
- Approx Time on Market2 months, 2 days
- AreaMyrtle Beach Area--Southern Limit To 10th Ave N
- CountyHorry
- Subdivision Not within a Subdivision
Overview
Construction is now complete and this brand-new duplex is already tenant-occupied, making it a turnkey, income-producing opportunity from day one! Located in Myrtle Beach, 1203 Rosehaven Drive features two spacious 3-bedroom, 2-bathroom units thoughtfully designed with modern finishes and open-concept living spaces that todays renters love. Unit A offers 1,275 heated square feet, while Unit B provides 1,299 heated square feet, each showcasing stylish wood accents, solid surface countertops, well-appointed kitchens, and private primary suites with walk-in closets and en-suite baths. Luxury plank vinyl flooring throughout, you will not find a stitch of carpet in this investment property. Covered front and rear porches create inviting outdoor living spaces, adding to the propertys overall appeal. Conveniently situated near shopping, dining, and just minutes from the beach, this fully completed and already leased duplex presents a seamless investment opportunity with immediate cash flow.
Agriculture / Farm
Horse: No
Association Fees / Info
Hoa Frequency: Monthly
Hoa: No
Bathroom Info
Total Baths: 0.00
Bedroom Info
Building Info
New Construction: No
Year Built: 2025
Zoning: res
Construction Materials: HardiplankType
Buyer Compensation
Exterior Features
Spa: No
Foundation: Slab
Financial
Garage / Parking
Garage: No
Carport: No
Parking Type: TwoSpaces
Open Parking: No
Attached Garage: No
Green / Env Info
Interior Features
Fireplace: No
Lot Info
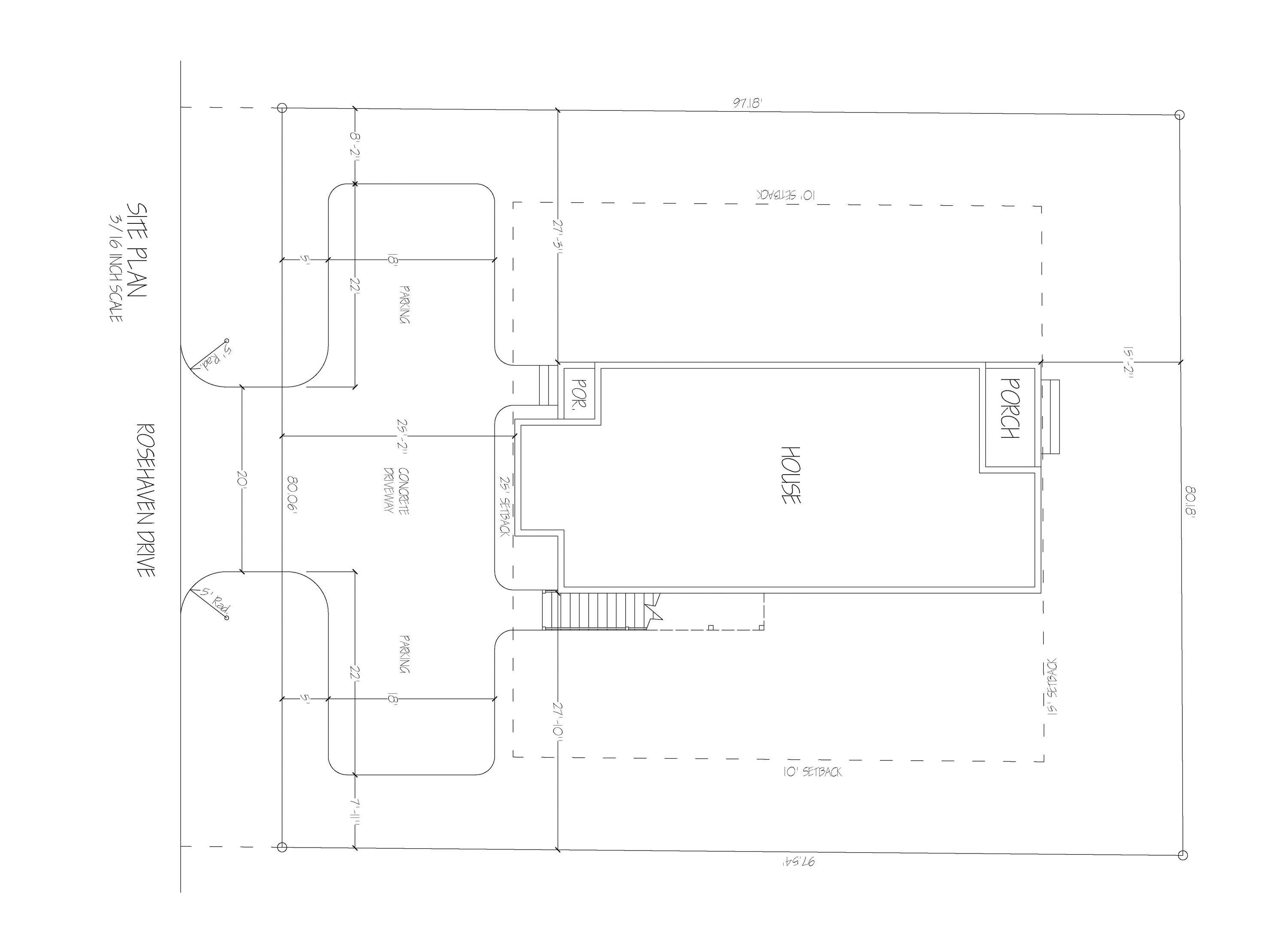
Acres: 0.00
Lot Size: 97x80x97x80
Land Lease: No
Lot Description: Rectangular, RectangularLot
Misc
Pool Private: No
Offer Compensation
Other School Info
Property Info
County: Horry
View: No
Number of Units Total: 2
Senior Community: No
Stipulation of Sale: None
Property Sub Type Additional: Duplex,MultiFamily
Property Attached: No
Security Features: FireAlarm
Rent Control: No
Room Info
Sold Info
Sqft Info
Total Sqft: 2759
Living Area Source: Plans
Sqft: 2574
Tax Info
Unit Info
Utilities / Hvac
Heating: Central, Electric
Cooling: CentralAir
Electric On Property: No
Cooling: Yes
Utilities Available: ElectricityAvailable, SewerAvailable, WaterAvailable
Heating: Yes
Water Source: Public
Waterfront / Water
Waterfront: No
Schools
Elem: Myrtle Beach Elementary School
Middle: Myrtle Beach Middle School
High: Myrtle Beach High School
Courtesy of Innovate Real Estate





Recent Posts RSS
Provided courtesy of © Copyright 2026 Coastal Carolinas Multiple Listing Service, Inc.®. Information Deemed Reliable but Not Guaranteed. © Copyright 2026 Coastal Carolinas Multiple Listing Service, Inc.® MLS. All rights reserved. Information is provided exclusively for consumers’ personal, non-commercial use, that it may not be used for any purpose other than to identify prospective properties consumers may be interested in purchasing.
Images related to data from the MLS is the sole property of the MLS and not the responsibility of the owner of this website. MLS IDX data last updated on 05-31-2026 6:32 AM EST.
Any images related to data from the MLS is the sole property of the MLS and not the responsibility of the owner of this website.