Viewing Listing MLS# 2606060
Murrells Inlet, SC 29576
- 4Beds
- 3Full Baths
- 1Half Baths
- 3,613SqFt
- 2002Year Built
- 0.31Acres
- MLS# 2606060
- Residential
- Detached
- Active
- Approx Time on Market3 days
- AreaMurrells Inlet - Horry County
- CountyHorry
- Subdivision Mt Gilead
Overview
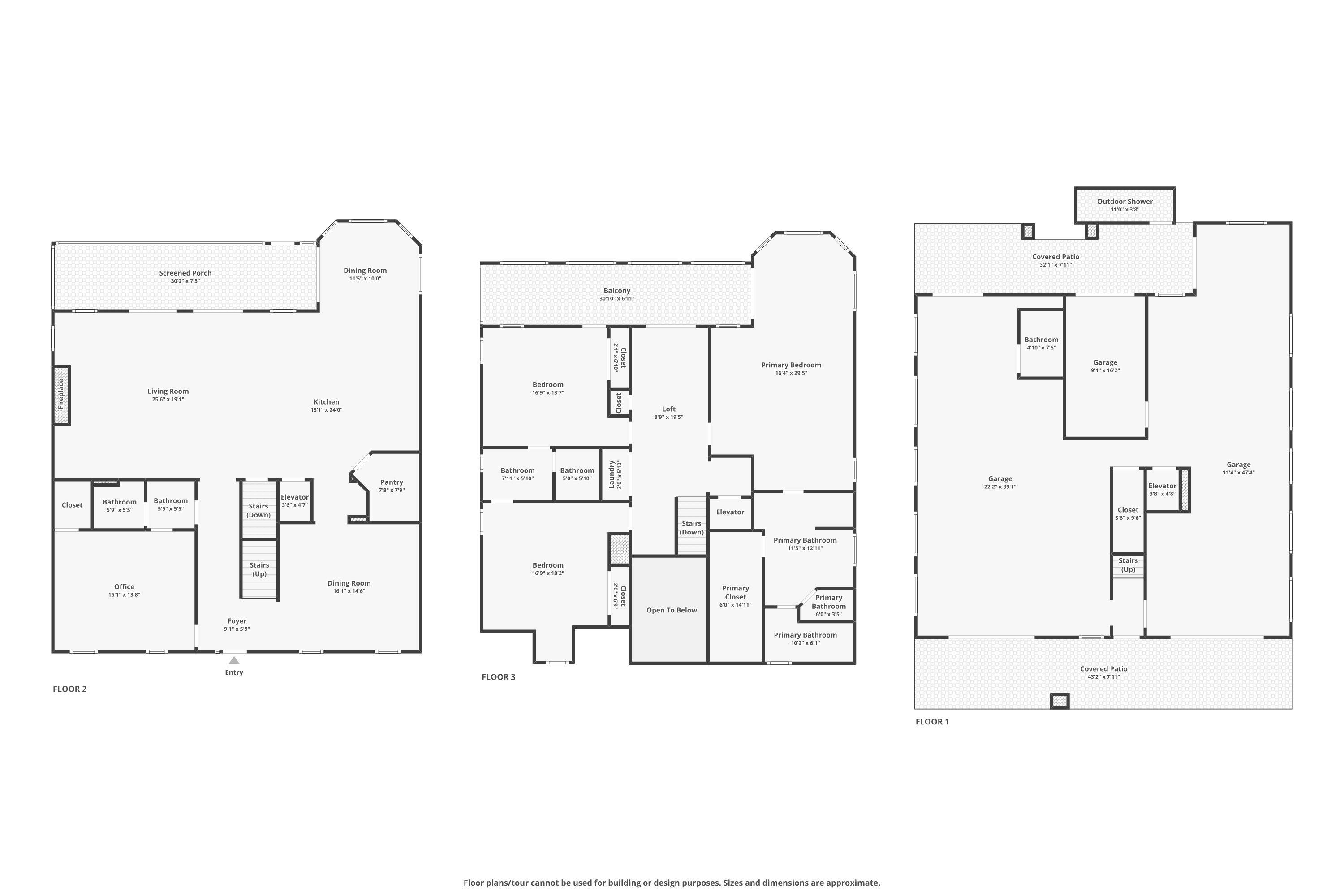
Experience luxury coastal living in this impressive renovated waterfront raised beach home located on .31 acre in the highly desirable Mt. Gilead community in Murrells Inlet. Modern design with high end finishes on an ultra premium lot offering a private boat dock with direct deep water access from the Inlet to the Atlantic Ocean. Enjoy breathtaking panoramic views of Murrells Inlet and Garden City Beach. Stunning sunsets and peaceful waterfront scenery create the perfect Lowcountry backdrop. The recently completed renovations blend timeless coastal elegance with modern luxury. Featuring an open living area with breathtaking views, 8-inch wide solid oak hardwood flooring and elegant Restoration Hardware lighting fixtures throughout the home making it truly stunning. A beautifully redesigned fireplace with a custom made mantle and Taj Mahal granite surround. The completely refreshed kitchen showcases striking Taj Mahal granite countertops on each of the large islands. Premium appliance package including a Thermador column refrigerator, freezer, wine cooler, and a 48-inch gas range surrounded by a Taj Mahal granite wall, double ovens, along with a Marvel ice makerperfect for hosting gatherings after a day on the water. This exceptional 4-bedroom, 3.5-bath home has been thoughtfully updated with a refreshing feel. The large dining room and wet bar connects to your modern kitchen with an abundance of seating. The bay windows overlooking the water is the perfect place for your morning coffee. The home office or additional bedroom is located on the first floor with a large walk in closet and full bathroom. Upstairs you will find the luxurious primary suite surrounded by windows-you will fall in love with the breathtaking view. Fully tiled shower with glass doors, garden tub, walk in closet, with two vanities provides plenty of space. The two additional bedrooms with a connected full bathroom has a vanity with double sinks, along with your laundry area, are also located on the second floor. Over 2000 sq. feet of enclosed space under the home includes a workshop, storage space, half bathroom, oversized garage, and elevator access to all floors for your convenience. A fenced in yard with a private in ground pool along with an outdoor shower, and a walkway to your private boat dock, making it ideal for both everyday living and entertaining. Designed to maximize the exquisite waterfront setting, the home offers spacious living areas with an impressive outdoor space with double screened in porches accessible from the living room and kitchen to the primary and 2nd bedroom upstairs. A concrete patio in your private backyard retreat will allow you to take in the sweeping inlet views. This Southern gem has an inviting front porch where you can relax on the swing watching the palm trees sway in the coastal breeze. Located in the heart of Murrells Inlet, known as the Seafood Capital of South Carolina, this property provides convenient access to waterfront dining, boating, fishing, and the beaches of Garden Cityall while offering the privacy and tranquility of inlet-front living. No HOA restrictions allowing the potential for rental income. This is a rare opportunity to own a move-in-ready waterfront home with private dock, pool, and luxury updates in one of the Grand Strands most desirable coastal communities.
Agriculture / Farm
Association Fees / Info
Hoa Frequency: Monthly
Community Features: BoatSlip, Dock, GolfCartsOk, LongTermRentalAllowed, ShortTermRentalAllowed
Assoc Amenities: BoatDock, OwnerAllowedGolfCart, OwnerAllowedMotorcycle, PetRestrictions, BoatSlip
Bathroom Info
Total Baths: 4.00
Halfbaths: 1
Fullbaths: 3
Room Dimensions
Bedroom1: 16'1 x13'8
Bedroom2: 18'2 x 16'9
Bedroom3: 16'9 x 13'7
DiningRoom: 16'1 x14'6
GreatRoom: 25'6 x19'1
Kitchen: 24' x16'1
PrimaryBedroom: 29.5 x16'4
Room Level
Bedroom1: First
Bedroom2: Second
Bedroom3: Second
PrimaryBedroom: Second
Room Features
DiningRoom: SeparateFormalDiningRoom
FamilyRoom: WetBar, CeilingFans, Fireplace
Kitchen: BreakfastBar, BreakfastArea, KitchenExhaustFan, KitchenIsland, Pantry, SolidSurfaceCounters
Other: BedroomOnMainLevel, EntranceFoyer, Library, Workshop
PrimaryBathroom: DualSinks, GardenTubRomanTub, SeparateShower, Vanity
PrimaryBedroom: CeilingFans, WalkInClosets
Bedroom Info
Beds: 4
Building Info
Levels: Two
Year Built: 2002
Zoning: RES
Style: RaisedBeach
Construction Materials: HardiplankType
Buyer Compensation
Exterior Features
Patio and Porch Features: RearPorch, FrontPorch, Patio, Porch, Screened
Window Features: StormWindows, WindowTreatments
Pool Features: OutdoorPool, Private
Foundation: Raised
Exterior Features: Dock, Elevator, Fence, SprinklerIrrigation, Porch, Patio
Financial
Garage / Parking
Parking Capacity: 6
Garage: Yes
Parking Type: Underground, Boat, GarageDoorOpener
Green / Env Info
Green Energy Efficient: Doors, Windows
Interior Features
Floor Cover: Tile, Wood
Door Features: InsulatedDoors, StormDoors
Fireplace: Yes
Laundry Features: WasherHookup
Furnished: Unfurnished
Interior Features: Attic, CeilingFans, DualSinks, Elevator, Fireplace, GardenTubRomanTub, PullDownAtticStairs, PermanentAtticStairs, SittingAreaInPrimary, SeparateShower, Vanity, WalkInClosets, WindowTreatments, BreakfastBar, BedroomOnMainLevel, BreakfastArea, EntranceFoyer, KitchenIsland, SolidSurfaceCounters, Workshop
Appliances: Cooktop, DoubleOven, Dishwasher, Freezer, Disposal, Microwave, Range, Refrigerator, RangeHood, Dryer, Washer
Lot Info
Acres: 0.31
Lot Size: 65x194x74x204
Lot Description: FloodZone, OutsideCityLimits, Rectangular, RectangularLot, StreamCreek
Misc
Pool Private: Yes
Pets Allowed: OwnerOnly, Yes
Offer Compensation
Other School Info
Property Info
County: Horry
Stipulation of Sale: None
Property Sub Type Additional: Detached
Security Features: SmokeDetectors
Disclosures: SellerDisclosure
Construction: Resale
Room Info
Sold Info
Sqft Info
Building Sqft: 6767
Living Area Source: Plans
Sqft: 3613
Tax Info
Unit Info
Utilities / Hvac
Heating: Central, Electric, Gas, Propane
Cooling: CentralAir
Cooling: Yes
Utilities Available: CableAvailable, ElectricityAvailable, PhoneAvailable, SewerAvailable, WaterAvailable
Heating: Yes
Water Source: Public
Waterfront / Water
Waterfront Features: Creek, DockAccess
Schools
Elem: Seaside Elementary School
Middle: Saint James Middle School
High: Saint James High School
Directions
Hwy 17 to Mt. Gilead community- follow straight to S Creekside Dr-property on leftCourtesy of Realty One Group Dockside





Recent Posts RSS
Provided courtesy of © Copyright 2026 Coastal Carolinas Multiple Listing Service, Inc.®. Information Deemed Reliable but Not Guaranteed. © Copyright 2026 Coastal Carolinas Multiple Listing Service, Inc.® MLS. All rights reserved. Information is provided exclusively for consumers’ personal, non-commercial use, that it may not be used for any purpose other than to identify prospective properties consumers may be interested in purchasing.
Images related to data from the MLS is the sole property of the MLS and not the responsibility of the owner of this website. MLS IDX data last updated on 03-12-2026 11:45 PM EST.
Any images related to data from the MLS is the sole property of the MLS and not the responsibility of the owner of this website.