Viewing Listing MLS# 2604643
Georgetown, SC 29440
- 4Beds
- 3Full Baths
- N/AHalf Baths
- 2,388SqFt
- 2025Year Built
- 0.43Acres
- MLS# 2604643
- Residential
- Detached
- Active
- Approx Time on Market6 days
- AreaGeorgetown Area--Maryville/south of Gtown & East of 17
- CountyGeorgetown
- Subdivision Not within a Subdivision
Overview
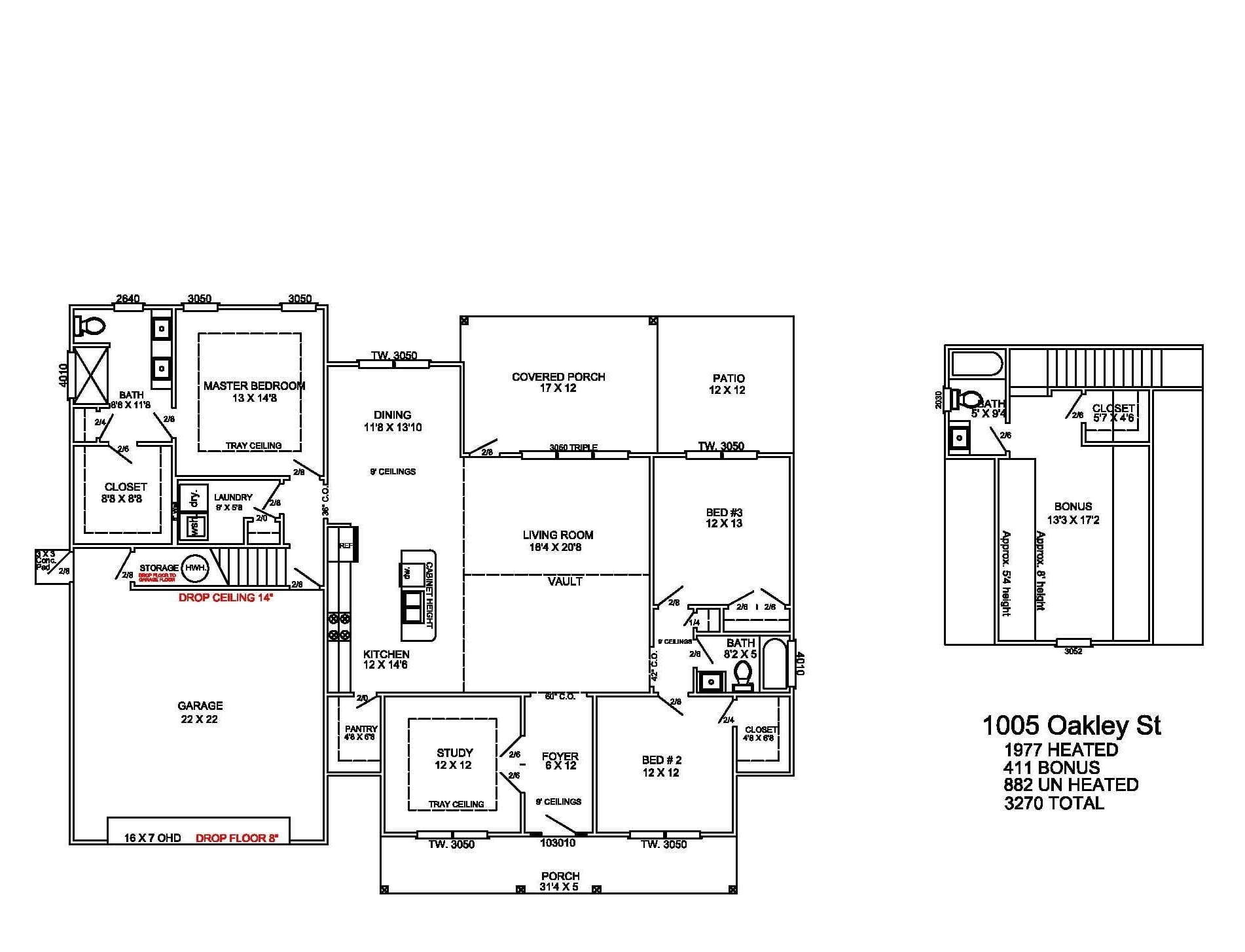
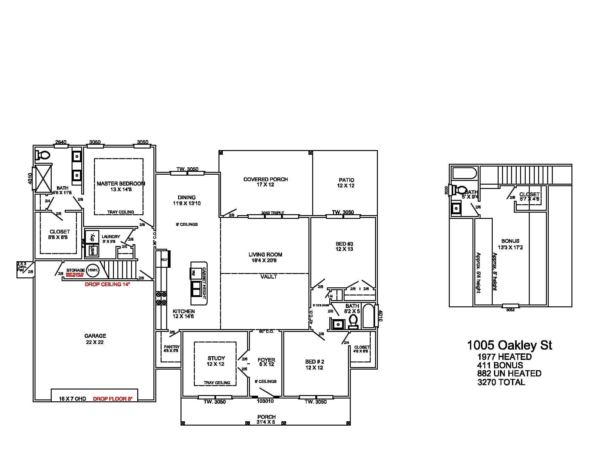
***HOME IS UNDER CONSTRUCTION*** This Santee model is a beautifully designed 1.5-story home offering 3 bedrooms and 2 bathrooms on the main level, plus a spacious bonus room/bedroom with a full bath above the garage - totaling approximately 2388 heated sq. ft. of thoughtfully planned living space. This open-concept floor plan includes a spacious kitchen with upgraded cabinets, quartz countertops, a breakfast bar, pantry, and stainless steel appliances all overlooking the living area, dining room, and Study/Office perfect for entertaining. The master bath features a tile walk-in shower, and double sinks. Additional highlights include waterproof laminate flooring and carpet, a covered front and rear porch, and a rear patio. This home sits on a generous 0.43-acre lot with no HOA, and comes standard with the efficiency and convenience of natural gas, including gas heat, a gas range, and a Rinnai tankless water heater. Conveniently located just minutes from the historic Georgetown Harborwalk, shopping, dining, and waterfront attractions are never far from home. Building lifestyles for over 40 years, we remain the premier home builder along the Grand Strand. Were proud to be the 2021, 2022, 2023, and 2024 winners of both WMBF News and The Sun News Best Home Builder awards, and the 2025 winner of The Sun News Best Home Builder. 2023, 2024, 2025, & 2026 winners of the Myrtle Beach Herald's Best Residential Real Estate Developer award, and 2024, 2025, & 2026 winners of The Horry Independents Best Residential Real Estate Developer and Best New Home Builder award. We began and remain in the Grand Strand, and we want you to experience the local pride we build today and every day in Horry and Georgetown Counties. Photos are pictures of stock plans. Seller is SC Real Estate Agent
Agriculture / Farm
Association Fees / Info
Hoa Frequency: Monthly
Bathroom Info
Total Baths: 3.00
Fullbaths: 3
Room Level
PrimaryBedroom: First
Room Features
DiningRoom: SeparateFormalDiningRoom, FamilyDiningRoom, KitchenDiningCombo
FamilyRoom: CeilingFans, VaultedCeilings
Kitchen: BreakfastBar, Pantry, StainlessSteelAppliances, SolidSurfaceCounters
Other: BedroomOnMainLevel, EntranceFoyer, UtilityRoom
PrimaryBathroom: DualSinks, SeparateShower, Vanity
PrimaryBedroom: TrayCeilings, CeilingFans, LinenCloset, MainLevelPrimary, WalkInClosets
Bedroom Info
Beds: 4
Building Info
Levels: OneAndOneHalf
Year Built: 2025
Zoning: R10
Style: Traditional
Construction Materials: BrickVeneer, VinylSiding
Builders Name: Beverly Homes, LLC
Builder Model: Santee
Buyer Compensation
Exterior Features
Patio and Porch Features: RearPorch, FrontPorch, Patio
Foundation: Slab
Exterior Features: BuiltInBarbecue, Barbecue, Porch, Patio
Financial
Garage / Parking
Parking Capacity: 2
Garage: Yes
Parking Type: Attached, Garage, TwoCarGarage, GarageDoorOpener
Attached Garage: Yes
Garage Spaces: 2
Green / Env Info
Green Energy Efficient: Doors, Windows
Interior Features
Floor Cover: Carpet, LuxuryVinyl, LuxuryVinylPlank
Door Features: InsulatedDoors
Laundry Features: WasherHookup
Furnished: Unfurnished
Interior Features: TrayCeilings, CeilingFans, DualSinks, LinenCloset, MainLevelPrimary, SplitBedrooms, SeparateShower, Vanity, WalkInClosets, BreakfastBar, BedroomOnMainLevel, EntranceFoyer, StainlessSteelAppliances, SolidSurfaceCounters
Appliances: Dishwasher, Disposal, Microwave, Range
Lot Info
Acres: 0.43
Lot Description: CityLot, Rectangular, RectangularLot
Misc
Offer Compensation
Other School Info
Property Info
County: Georgetown
Stipulation of Sale: None
Property Sub Type Additional: Detached
Security Features: SmokeDetectors
Construction: UnderConstruction
Room Info
Sold Info
Sqft Info
Building Sqft: 3270
Living Area Source: Builder
Sqft: 2388
Tax Info
Unit Info
Utilities / Hvac
Heating: Central, Electric, ForcedAir, Gas
Cooling: CentralAir
Cooling: Yes
Utilities Available: CableAvailable, ElectricityAvailable, NaturalGasAvailable, Other, PhoneAvailable, SewerAvailable, UndergroundUtilities, WaterAvailable
Heating: Yes
Water Source: Public
Waterfront / Water
Schools
Elem: Maryville Elementary School
Middle: Georgetown Middle School
High: Georgetown High School
Directions
***HOME IS UNDER CONSTRUCTION*** From Downtown Georgetown take Hwy 17 South then turn Left onto South Island Road for .5 miles to Old Charleston Road on the right for .6 miles to right on Oakley St., Second Hose on the left. Beverly Homes sign on the Property. For any information or to show homes please contact: Skip Carrick 843-458-5083. skipcarrick@live.comCourtesy of The Beverly Group





Recent Posts RSS
MLS# 2604700
Provided courtesy of © Copyright 2026 Coastal Carolinas Multiple Listing Service, Inc.®. Information Deemed Reliable but Not Guaranteed. © Copyright 2026 Coastal Carolinas Multiple Listing Service, Inc.® MLS. All rights reserved. Information is provided exclusively for consumers’ personal, non-commercial use, that it may not be used for any purpose other than to identify prospective properties consumers may be interested in purchasing.
Images related to data from the MLS is the sole property of the MLS and not the responsibility of the owner of this website. MLS IDX data last updated on 02-26-2026 4:03 PM EST.
Any images related to data from the MLS is the sole property of the MLS and not the responsibility of the owner of this website.