Viewing Listing MLS# 2604450
North Myrtle Beach, SC 29582
- 4Beds
- 3Full Baths
- N/AHalf Baths
- 2,400SqFt
- 1980Year Built
- 0.17Acres
- MLS# 2604450
- Residential
- Detached
- Active
- Approx Time on Market1 month, 26 days
- AreaNorth Myrtle Beach Area--Ocean Drive
- CountyHorry
- Subdivision Not within a Subdivision
Overview
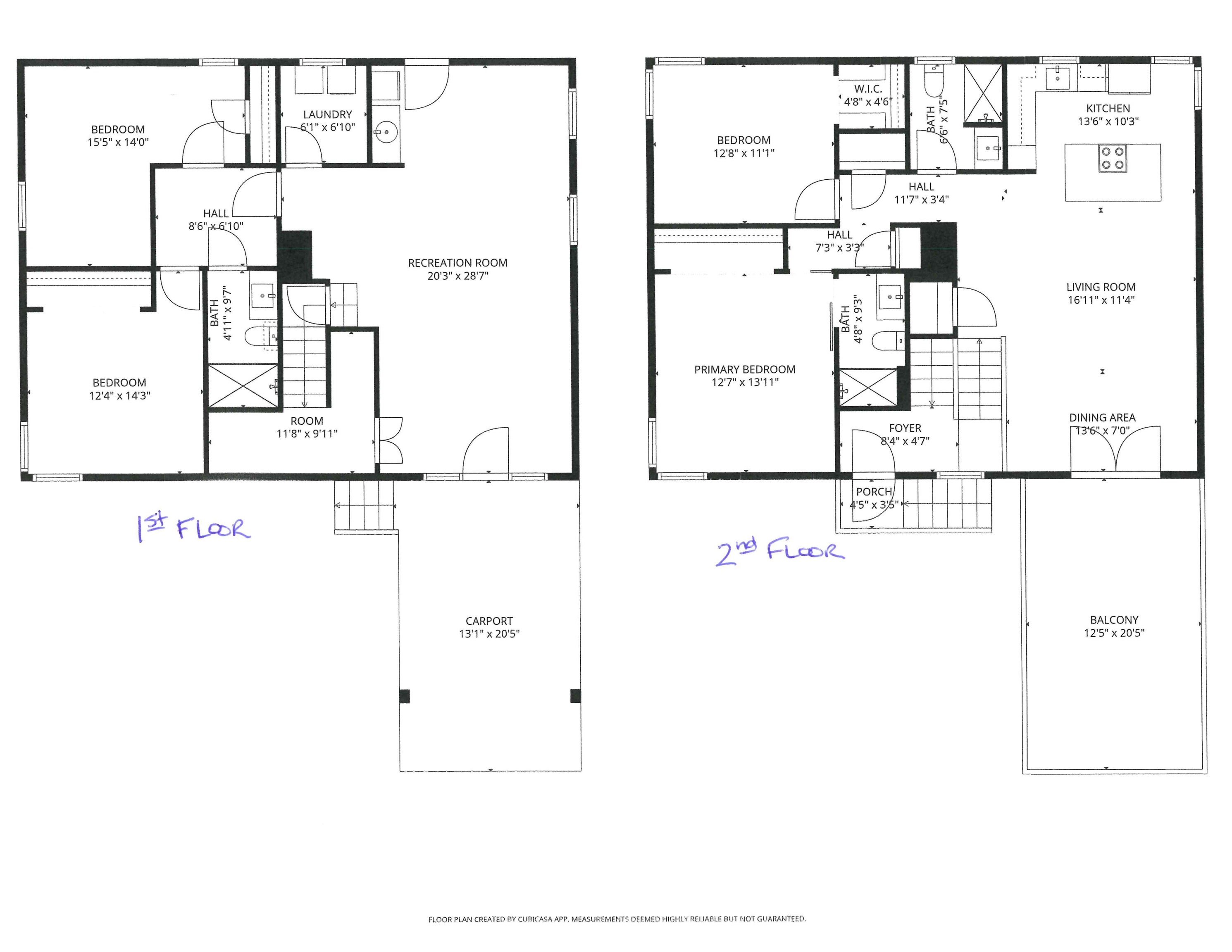
Coastal. Spacious. Well-maintained. 500 Roller Coaster Lane in the Ocean Drive section of North Myrtle Beach offers a 2400 heated sqft 4-bedroom, 3-bath home just a short walk or golf cart ride to the beach, with no HOA and no HOA fees. Sold furnished. This 2-story, 4-sided brick residence sits beneath mature oak trees and features a large paver driveway, carport, metal roof covered ""surf shack"" with electricity for golf cart, bikes and/or beach gear, and a house metal roof installed in 2018 with gutter guards installed in 2025. Major systems include two heat pumps with the upstairs unit replaced in 2022 and a water heater installed in 2023. Smooth ceilings run throughout, and a security system is in place. Property is not in a high-risk flood zone (Flood Zone X). The 1st level includes 2 bedrooms and 1 renovated bathroom. Wood-like tile flooring extends throughout, creating a durable and cohesive space ideal for beach living. The combined family room, dining area, and wet bar (includes sink and 2024 refrigerator) provide flexibility for everyday living or entertaining as the party spills out into the fully fenced backyard. This area could also be used as a Recreation Room. The updated bathroom has a 5 tiled shower with seat and glass doors, all new vanity, toilet, lighting, and plumbing fixtures. 2 bedrooms: the first is set up as a guest bedroom while the 2nd is currently used as a double office (easily used as a bedroom too). The laundry room includes a side-by-side washer and dryer (new in 2024) along with a convenient laundry chute from the upstairs hall bath. Upstairs you have another 2 bedrooms and 2 full baths both with stylish ceiling fans. The tongue-and-groove cherry wood floors add warmth and character. The kitchen, living room and dining area have an open concept with tons of natural sunlight. The kitchen is designed for both function and style with terrazzo countertops, a copper farmhouse sink and backsplash, stainless steel appliances including a French door refrigerator (2025) and Frigidaire dishwasher, and a center island with range and breakfast bar seating. The spacious 17'x 11' living room has comfortable seating and a wall mounted TV. The adjacent dining area offers attractive outdoor views and direct access to a large 12'x20' deck over the carport, ideal for grilling, entertaining, or enjoying both coastal days and evenings. The primary bedroom features a pocket door, ceiling fan and a renovated (2023) en-suite bath with barn door entry, tiled shower with sliding glass doors, new vanity, updated light & plumbing fixtures, and new tile flooring. The additional guest bedroom includes a ceiling fan and easy access to the hall bath with tile floors, updated toilet, and shower. The fully fenced backyard is designed for low maintenance, entertaining and privacy with a 6 privacy fence and two gates on either side of house (one double, one single). River rock landscaping, paver walkways and patio areas, and Astroturf-style grass eliminate the need for grass maintenance. A hot tub creates a relaxing retreat after a day at the beach. A detached shed for additional storage. In the front of the house, there is a swing and an outdoor shower that makes rinsing off sand easy and convenient as you come in from the beach. This home offers flexibility for primary residence, second home, or investment in one of North Myrtle Beachs most desirable areas. Short-term rentals, long-term rentals, pets, motorcycles and golf carts are all allowed. Come see this beautifully, well-maintained beach home so close to everything North Myrtle Beach has to offer: parks, shopping, restaurants, fishing, golfing, entertainmentand dont forget the amazing Intracoastal Waterway and the oh-so-close sandy beaches of the Atlantic Ocean! Schedule your showing today and secure your place near the ocean.
Agriculture / Farm
Association Fees / Info
Hoa Frequency: Monthly
Community Features: GolfCartsOk, LongTermRentalAllowed, ShortTermRentalAllowed
Assoc Amenities: OwnerAllowedGolfCart, OwnerAllowedMotorcycle, PetRestrictions, TenantAllowedGolfCart, TenantAllowedMotorcycle
Bathroom Info
Total Baths: 3.00
Fullbaths: 3
Room Dimensions
Bedroom1: 12'8x11'1
Bedroom2: 12'4x14'3
Bedroom3: 15'5x14'
DiningRoom: 13'6x7'
GreatRoom: 20'3x28'7
Kitchen: 13'6x10'3
LivingRoom: 16'11x114
PrimaryBedroom: 12'7x13'11
Room Level
Bedroom1: Second
Bedroom2: First
Bedroom3: First
PrimaryBedroom: Second
Room Features
DiningRoom: LivingDiningRoom
FamilyRoom: WetBar
Kitchen: BreakfastBar, KitchenIsland, StainlessSteelAppliances, SolidSurfaceCounters
Other: BedroomOnMainLevel, UtilityRoom
PrimaryBathroom: SeparateShower
PrimaryBedroom: CeilingFans, WalkInClosets
Bedroom Info
Beds: 4
Building Info
Levels: Two
Year Built: 1980
Zoning: R-1
Style: Traditional
Construction Materials: Brick
Buyer Compensation
Exterior Features
Spa: Yes
Patio and Porch Features: Deck
Spa Features: HotTub
Window Features: WindowTreatments
Foundation: Slab
Exterior Features: Deck, Fence, HotTubSpa, Storage
Financial
Garage / Parking
Parking Capacity: 5
Carport: Yes
Parking Type: Carport
Green / Env Info
Green Energy Efficient: Doors, Windows
Interior Features
Floor Cover: Tile, Wood
Door Features: InsulatedDoors
Laundry Features: WasherHookup
Furnished: Furnished
Interior Features: CeilingFans, Furnished, SeparateShower, WalkInClosets, WindowTreatments, BreakfastBar, BedroomOnMainLevel, KitchenIsland, StainlessSteelAppliances, SolidSurfaceCounters
Appliances: Dishwasher, Disposal, Microwave, Range, Refrigerator, Dryer, Washer
Lot Info
Acres: 0.17
Lot Size: 52'x142'x54'x140'
Lot Description: CityLot, Rectangular, RectangularLot
Misc
Pets Allowed: OwnerOnly, Yes
Offer Compensation
Other School Info
Property Info
County: Horry
Stipulation of Sale: None
Property Sub Type Additional: Detached
Security Features: SecuritySystem, SmokeDetectors
Disclosures: SellerDisclosure
Construction: Resale
Room Info
Sold Info
Sqft Info
Building Sqft: 2680
Living Area Source: PublicRecords
Sqft: 2400
Tax Info
Unit Info
Utilities / Hvac
Heating: Baseboard, Central, Electric
Cooling: CentralAir
Cooling: Yes
Utilities Available: CableAvailable, ElectricityAvailable, Other, PhoneAvailable, SewerAvailable, UndergroundUtilities, WaterAvailable
Heating: Yes
Water Source: Public
Waterfront / Water
Directions
From Hwy 17 headed North, turn Right on 5th Ave S towards the ocean. At stop sign, turn Left on Roller Coaster Ln. Home is on the immediate Left.Courtesy of Re/max Southern Shores Nmb - Cell: 843-457-5534





Recent Posts RSS
MLS# 2607111
Provided courtesy of © Copyright 2026 Coastal Carolinas Multiple Listing Service, Inc.®. Information Deemed Reliable but Not Guaranteed. © Copyright 2026 Coastal Carolinas Multiple Listing Service, Inc.® MLS. All rights reserved. Information is provided exclusively for consumers’ personal, non-commercial use, that it may not be used for any purpose other than to identify prospective properties consumers may be interested in purchasing.
Images related to data from the MLS is the sole property of the MLS and not the responsibility of the owner of this website. MLS IDX data last updated on 04-14-2026 10:16 PM EST.
Any images related to data from the MLS is the sole property of the MLS and not the responsibility of the owner of this website.