Viewing Listing MLS# 2601663
Nichols, SC 29581
- 4Beds
- 2Full Baths
- N/AHalf Baths
- 1,682SqFt
- 2026Year Built
- 2.57Acres
- MLS# 2601663
- Residential
- Detached
- Active
- Approx Time on Market1 month, 8 days
- AreaLoris Area--West of Loris & North of Hwy 9
- CountyHorry
- Subdivision Not within a Subdivision
Overview
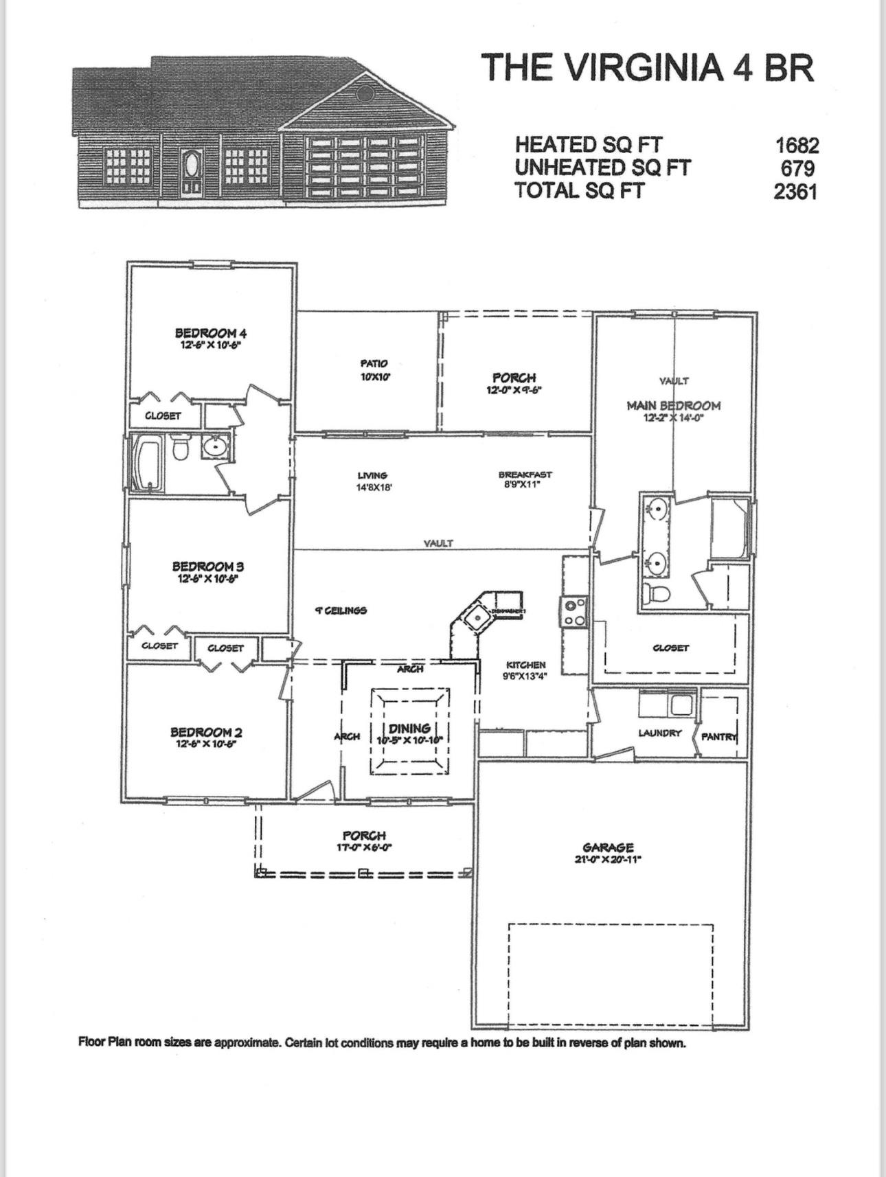
Large 2+ acre lot with no HOA. New Homes, Builder WILL Customize. The Virginia 4 BR Plan features a relaxing front porch, covered rear porch, and patio. Open floor plan, vaulted ceiling in living room. Large kitchen has solid wood cabinets with crown molding, walk in pantry, stainless steel appliances (microwave, smooth top stove, dishwasher). Formal Dining area, and a breakfast nook. Split bedrooms-Main bedroom suite has vaulted ceiling with ceiling fan, large walk-in closet. Main Bathroom has double sinks in raised vanity height, 5' walk in shower, linen closet. Guest bedrooms and bath on the opposite side of the house. Waterproof, wood-look luxury vinyl plank flooring throughout with carpet in the bedrooms. Spacious finished/painted 2 car garage with automatic door opener, pull downstairs to attic storage above. Photos are for illustrative purposes only and may be of similar home built elsewhere, may show upgrades. Square footage is approximate and not guaranteed. Buyer is responsible for verification. Listing agents are the land owners
Agriculture / Farm
Association Fees / Info
Hoa Frequency: Monthly
Bathroom Info
Total Baths: 2.00
Fullbaths: 2
Room Features
DiningRoom: SeparateFormalDiningRoom
Kitchen: StainlessSteelAppliances
LivingRoom: CeilingFans, VaultedCeilings
Other: UtilityRoom
PrimaryBedroom: TrayCeilings, CeilingFans
Bedroom Info
Beds: 4
Building Info
Num Stories: 1
Levels: One
Year Built: 2026
Zoning: res
Style: Ranch
Development Status: Proposed
Builders Name: Bradley Jones Construction
Builder Model: Virginia 4 BR Plan
Buyer Compensation
Exterior Features
Patio and Porch Features: RearPorch, FrontPorch, Patio
Exterior Features: Porch, Patio
Financial
Garage / Parking
Parking Capacity: 4
Garage: Yes
Parking Type: Attached, Garage, TwoCarGarage, Boat, GarageDoorOpener, RvAccessParking
Attached Garage: Yes
Garage Spaces: 2
Green / Env Info
Interior Features
Floor Cover: Carpet, LuxuryVinyl, LuxuryVinylPlank
Laundry Features: WasherHookup
Furnished: Unfurnished
Interior Features: Attic, TrayCeilings, CeilingFans, PullDownAtticStairs, PermanentAtticStairs, SplitBedrooms, StainlessSteelAppliances
Lot Info
Acres: 2.57
Lot Description: OutsideCityLimits
Misc
Offer Compensation
Other School Info
Property Info
County: Horry
Stipulation of Sale: None
Property Sub Type Additional: Detached
Security Features: SmokeDetectors
Construction: ToBeBuilt
Room Info
Sold Info
Sqft Info
Building Sqft: 2361
Living Area Source: Builder
Sqft: 1682
Tax Info
Unit Info
Utilities / Hvac
Sewer: SepticTank
Utilities Available: SepticAvailable
Water Source: Private, Well
Waterfront / Water
Courtesy of Bulldawg Property Sales Llc





Recent Posts RSS
MLS# 2601567
Provided courtesy of © Copyright 2026 Coastal Carolinas Multiple Listing Service, Inc.®. Information Deemed Reliable but Not Guaranteed. © Copyright 2026 Coastal Carolinas Multiple Listing Service, Inc.® MLS. All rights reserved. Information is provided exclusively for consumers’ personal, non-commercial use, that it may not be used for any purpose other than to identify prospective properties consumers may be interested in purchasing.
Images related to data from the MLS is the sole property of the MLS and not the responsibility of the owner of this website. MLS IDX data last updated on 02-28-2026 6:27 AM EST.
Any images related to data from the MLS is the sole property of the MLS and not the responsibility of the owner of this website.