Viewing Listing MLS# 2529284
North Myrtle Beach, SC 29582
- 4Beds
- 3Full Baths
- 1Half Baths
- 3,650SqFt
- 2025Year Built
- 0.18Acres
- MLS# 2529284
- Residential
- Detached
- Active
- Approx Time on Market4 months, 25 days
- Area11f North Myrtle Beach Area--Between Hwy 17 and Waterway
- CountyHorry
- Subdivision Palmetto Harbor
Overview
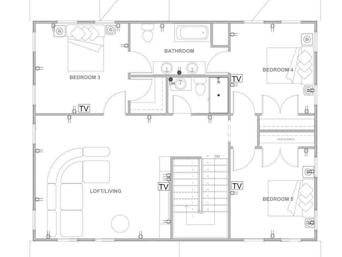
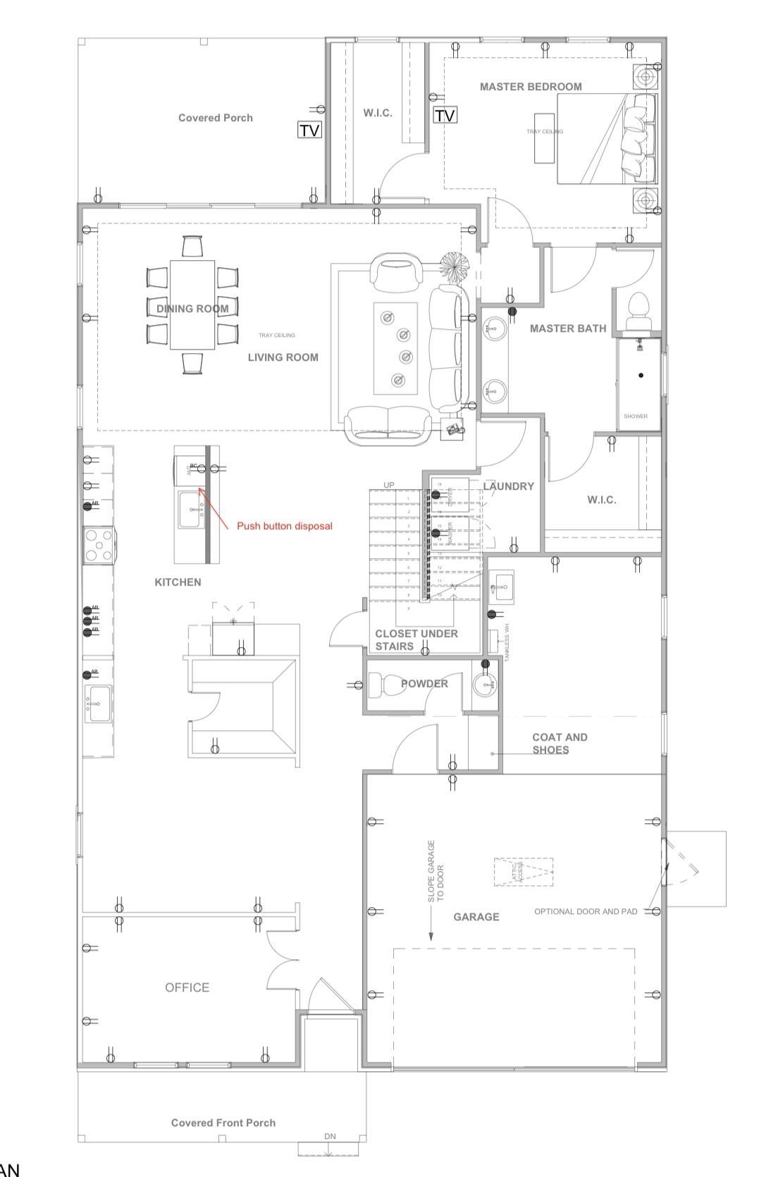
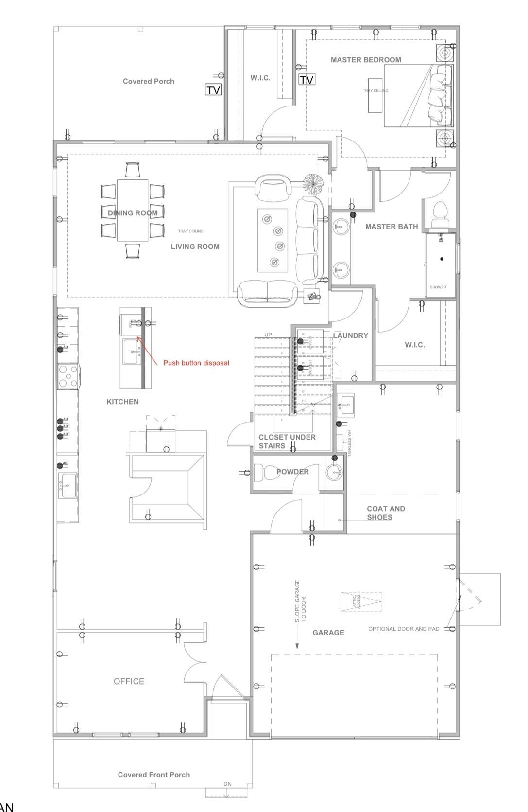
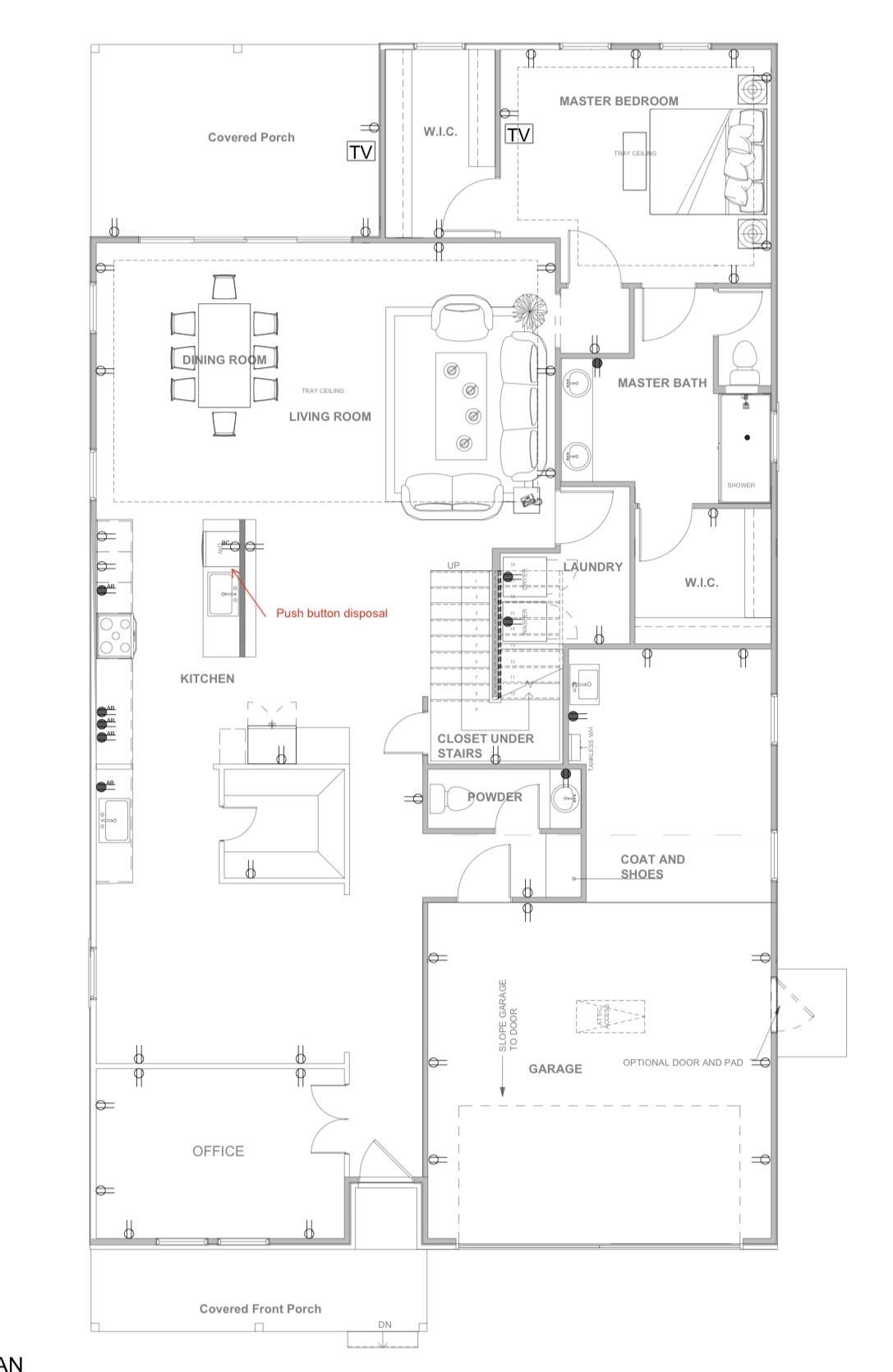
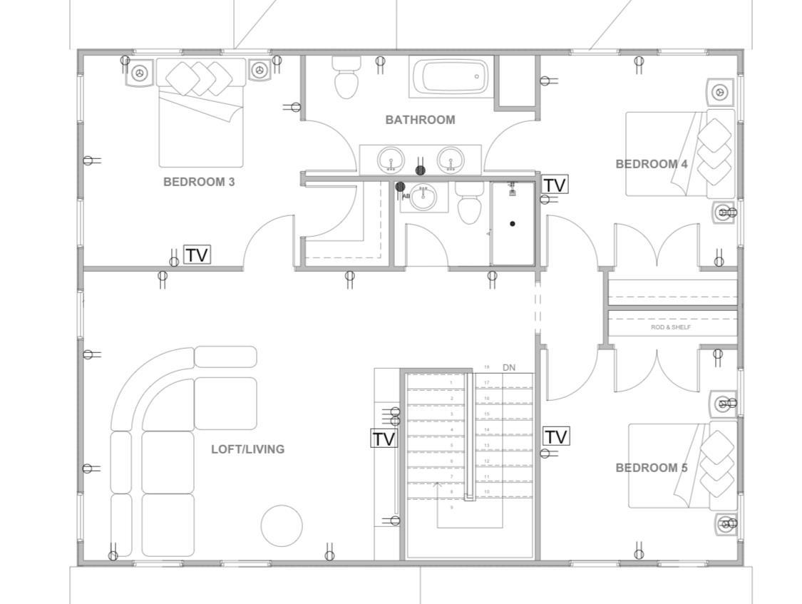
Discover this property through our virtual tour-4 bedrooms, 3.5 bathrooms, formal dining room, upgraded closets, gourmet kitchen, loft, and office space. You can find the floor plans in the documents section. The property's proximity to ICW and its community pond, where fishing is permitted, adds to its appeal. For detailed specifications, consult the feature sheet and warranty manual, both located under documents. Please note that this property is broker owned.
Agriculture / Farm
Association Fees / Info
Hoa Frequency: Monthly
Hoa Fees: 63
Hoa: Yes
Bathroom Info
Total Baths: 4.00
Halfbaths: 1
Fullbaths: 3
Room Features
Kitchen: KitchenIsland
Bedroom Info
Beds: 4
Building Info
New Construction: Yes
Levels: MultiSplit
Year Built: 2025
Zoning: R1
Style: SplitLevel
Development Status: NewConstruction
Buyer Compensation
Exterior Features
Patio and Porch Features: RearPorch, FrontPorch
Exterior Features: Porch
Financial
Garage / Parking
Parking Capacity: 4
Garage: Yes
Parking Type: Attached, Garage, TwoCarGarage
Attached Garage: Yes
Garage Spaces: 2
Green / Env Info
Interior Features
Furnished: Unfurnished
Interior Features: WalkInClosets, KitchenIsland
Lot Info
Acres: 0.18
Misc
Offer Compensation
Other School Info
Property Info
County: Horry
Stipulation of Sale: None
View: Intercoastal
Property Sub Type Additional: Detached
Construction: NeverOccupied
Room Info
Sold Info
Sqft Info
Total Sqft: 3966
Living Area Source: Plans
Sqft: 3650
Tax Info
Unit Info
Utilities / Hvac
Waterfront / Water
Directions
17 S, turn rt on Possum Trot, left on Cenith Dr, turn into Palmetto Harbour DriveCourtesy of Chrismanningcommunities Realty





Recent Posts RSS
MLS# 2611310
Provided courtesy of © Copyright 2026 Coastal Carolinas Multiple Listing Service, Inc.®. Information Deemed Reliable but Not Guaranteed. © Copyright 2026 Coastal Carolinas Multiple Listing Service, Inc.® MLS. All rights reserved. Information is provided exclusively for consumers’ personal, non-commercial use, that it may not be used for any purpose other than to identify prospective properties consumers may be interested in purchasing.
Images related to data from the MLS is the sole property of the MLS and not the responsibility of the owner of this website. MLS IDX data last updated on 05-06-2026 6:47 PM EST.
Any images related to data from the MLS is the sole property of the MLS and not the responsibility of the owner of this website.