Viewing Listing MLS# 2529208
Georgetown, SC 29440
- 3Beds
- 2Full Baths
- 1Half Baths
- 1,600SqFt
- 2026Year Built
- 0.17Acres
- MLS# 2529208
- Residential
- Detached
- Active
- Approx Time on Market2 months, 15 days
- AreaGeorgetown Area--Belle Isle / East of South Island Rd.
- CountyGeorgetown
- Subdivision Harbor Club On Winyah Bay
Overview
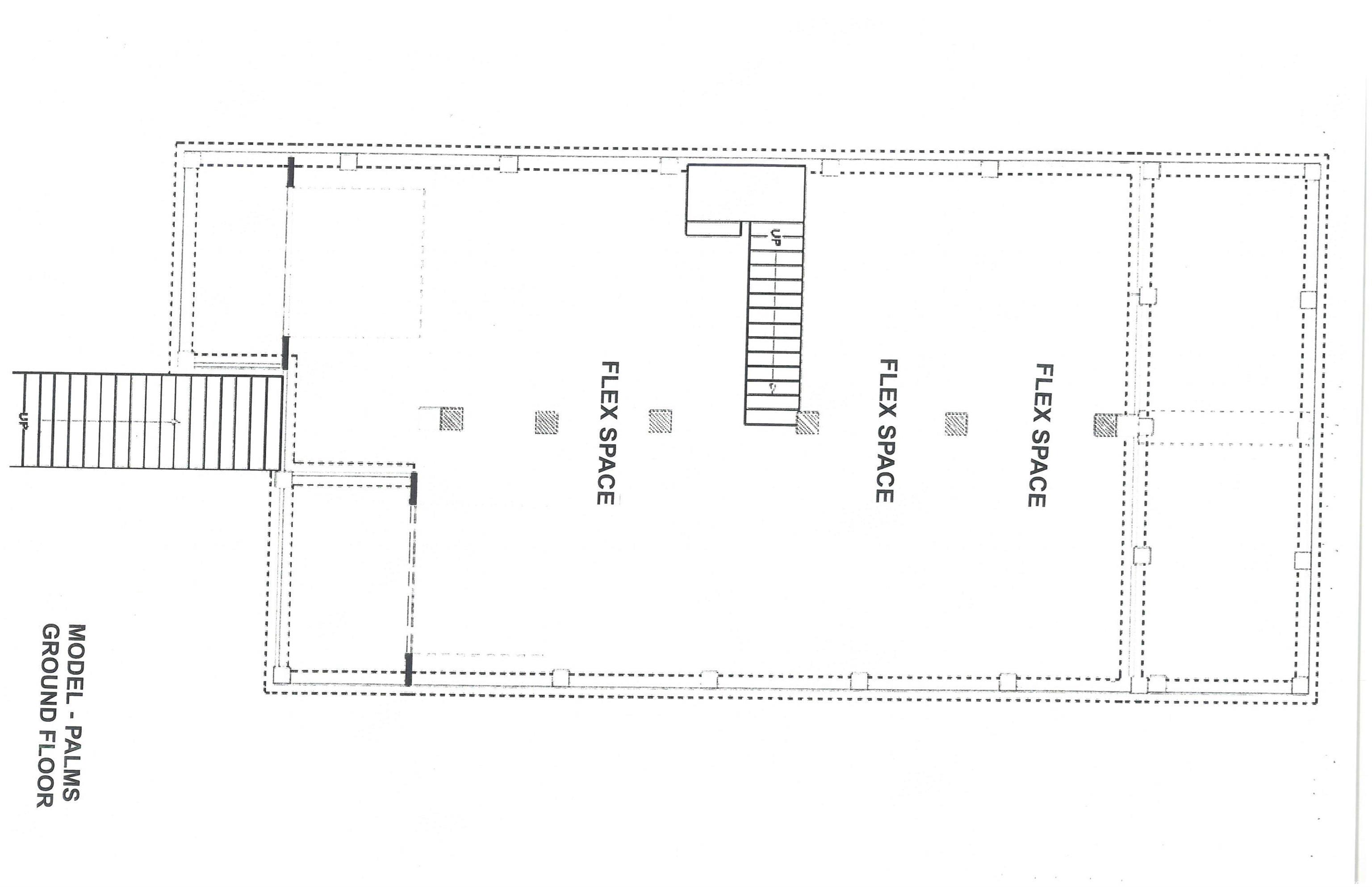
This to be built beach-style home located in Harbor Club on Winyah Bay offers 3200 square feet of total living space. It is surrounded by picturesque views of oak trees, Winyah Bay, and the Intracoastal Waterway. The elevated design includes 3 bedrooms and 2.5 bathrooms, with a convenient covered garage underneath the main level. Enjoy panoramic water views from the front porch, which faces the community dock and boat landing, or enjoy the rear covered porch and a rear open deck which provide ample outdoor living space. The ground floor is flex spaced with parking for 2 cars. Additional space can be utilized for living, but is not temperature controlled. An elevator is optional. There is so much to do and see in Harbor Club, a natural gas community. Ride your bike or golf cart thru the subdivision. This is a prime location as it is located just one hour north of Charleston and south of the beaches of Pawleys Island. Harbor Club offers the ideal blend of Coastal Lifestyle and relaxed Southern Living. Tucked along the scenic shores of Winyah Bay near historic Georgetown, South Carolina.
Agriculture / Farm
Association Fees / Info
Hoa Frequency: Monthly
Hoa Fees: 113
Hoa: Yes
Hoa Includes: AssociationManagement, CommonAreas, Internet
Community Features: BoatFacilities, Clubhouse, GolfCartsOk, RecreationArea, LongTermRentalAllowed
Assoc Amenities: BoatRamp, Clubhouse, OwnerAllowedGolfCart, OwnerAllowedMotorcycle, PetRestrictions, TenantAllowedGolfCart, TenantAllowedMotorcycle
Bathroom Info
Total Baths: 3.00
Halfbaths: 1
Fullbaths: 2
Room Features
DiningRoom: BeamedCeilings, CeilingFans, KitchenDiningCombo, VaultedCeilings
Kitchen: BreakfastBar, CeilingFans, KitchenExhaustFan, KitchenIsland, Pantry, StainlessSteelAppliances, SolidSurfaceCounters
LivingRoom: BeamedCeilings, CeilingFans, VaultedCeilings
Other: BedroomOnMainLevel, UtilityRoom
PrimaryBathroom: DualSinks, TubShower, Vanity
PrimaryBedroom: TrayCeilings, CeilingFans, LinenCloset, MainLevelMaster, WalkInClosets
Bedroom Info
Beds: 3
Building Info
Levels: Two
Year Built: 2026
Zoning: Res
Style: RaisedBeach
Development Status: Proposed
Construction Materials: HardiplankType
Builders Name: Winyah Construction, LLC
Builder Model: Raised Bay Front
Buyer Compensation
Exterior Features
Patio and Porch Features: RearPorch, Deck, FrontPorch
Foundation: Raised
Exterior Features: Deck, Porch
Financial
Garage / Parking
Parking Capacity: 2
Parking Type: Underground
Green / Env Info
Green Energy Efficient: Doors, Windows
Interior Features
Floor Cover: Carpet, Laminate, Tile
Door Features: InsulatedDoors
Laundry Features: WasherHookup
Furnished: Unfurnished
Interior Features: SplitBedrooms, BreakfastBar, BedroomOnMainLevel, KitchenIsland, StainlessSteelAppliances, SolidSurfaceCounters
Appliances: Dishwasher, Microwave, Range, Refrigerator, RangeHood
Lot Info
Acres: 0.17
Lot Description: Rectangular, RectangularLot
Misc
Pets Allowed: OwnerOnly, Yes
Offer Compensation
Other School Info
Property Info
County: Georgetown
Stipulation of Sale: None
View: Intercoastal
Property Sub Type Additional: Detached
Security Features: SmokeDetectors
Disclosures: CovenantsRestrictionsDisclosure
Construction: ToBeBuilt
Room Info
Sold Info
Sqft Info
Building Sqft: 3200
Living Area Source: Builder
Sqft: 1600
Tax Info
Unit Info
Utilities / Hvac
Heating: Central, Electric
Cooling: CentralAir
Cooling: Yes
Utilities Available: CableAvailable, ElectricityAvailable, NaturalGasAvailable, SewerAvailable, UndergroundUtilities, WaterAvailable
Heating: Yes
Water Source: Public
Waterfront / Water
Schools
Elem: Maryville Elementary School
Middle: Georgetown Middle School
High: Georgetown High School
Courtesy of Re/max Executive - Cell: 843-630-0402





Recent Posts RSS
MLS# 2604169
Provided courtesy of © Copyright 2026 Coastal Carolinas Multiple Listing Service, Inc.®. Information Deemed Reliable but Not Guaranteed. © Copyright 2026 Coastal Carolinas Multiple Listing Service, Inc.® MLS. All rights reserved. Information is provided exclusively for consumers’ personal, non-commercial use, that it may not be used for any purpose other than to identify prospective properties consumers may be interested in purchasing.
Images related to data from the MLS is the sole property of the MLS and not the responsibility of the owner of this website. MLS IDX data last updated on 02-26-2026 10:31 AM EST.
Any images related to data from the MLS is the sole property of the MLS and not the responsibility of the owner of this website.