Viewing Listing MLS# 2529187
Longs, SC 29568
- 4Beds
- 3Full Baths
- N/AHalf Baths
- 2,412SqFt
- 2025Year Built
- 0.14Acres
- MLS# 2529187
- Residential
- Detached
- Sold
- Approx Time on Market3 months, 19 days
- AreaConway To Myrtle Beach Area--Between 90 & Waterway Redhill/grande Dunes
- CountyHorry
- Subdivision Waterside - Area 10a
Overview
Brand new, energy-efficient home available NOW! Create an office or rec room in the Northbrook's upstairs bonus room. On the main level, the kitchen is the heart of the open concept living space. Tray ceilings and a large walk-in closet complement the primary suite. From exciting attractions to relaxing weekends along sandy beaches and serene golf courses, Waterside offers easy access to the best shopping, dining and entertainment in North Myrtle Beach. Our new one- and two-story homes are perfect for any lifestyle. And when you are not out exploring, enjoy luxurious amenities including swimming pool, sports courts, day dock and much more. Each of our homes is built with innovative, energy-efficient features designed to help you enjoy more savings, better health, real comfort and peace of mind. *Some of the photos in this listing are virtually staged.
Sale Info
Listing Date: 12-10-2025
Sold Date: 03-30-2026
Aprox Days on Market: 
3 month(s), 19 day(s)
Listing Sold: 
3 day(s) ago
Asking Price: $473,990
Selling Price: $428,200
Price Difference:
Reduced By $21,790
Agriculture / Farm
Association Fees / Info
Hoa Frequency: Monthly
Hoa Fees: 106
Hoa: Yes
Hoa Includes: CommonAreas, RecreationFacilities
Community Features: Clubhouse, RecreationArea, TennisCourts, LongTermRentalAllowed, Pool
Assoc Amenities: Clubhouse, TennisCourts
Bathroom Info
Total Baths: 3.00
Fullbaths: 3
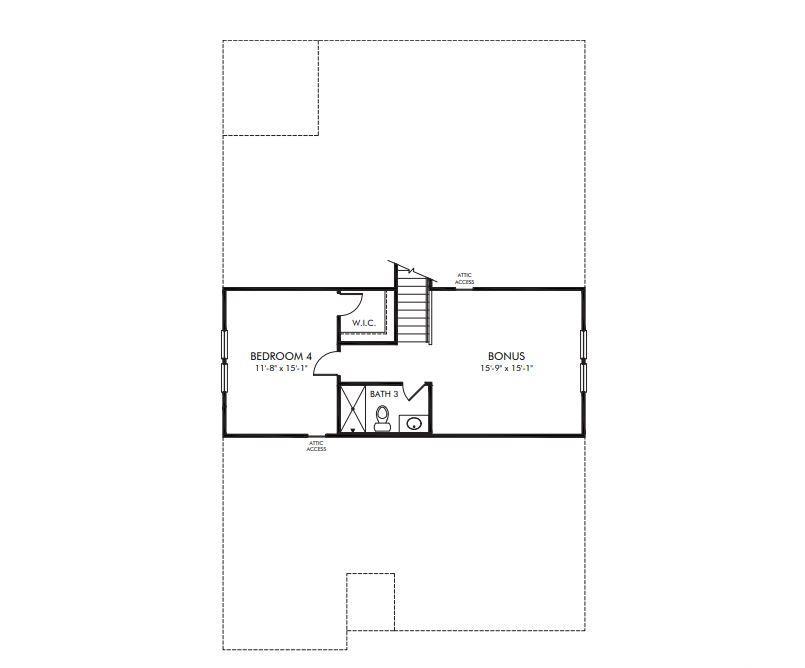
Room Dimensions
Bedroom2: 11X11
Bedroom3: 12X15
DiningRoom: 10X10
GreatRoom: 14X19
PrimaryBedroom: 13X15
Room Level
Bedroom2: First
Bedroom3: Second
PrimaryBedroom: First
Room Features
Kitchen: KitchenExhaustFan, Pantry, StainlessSteelAppliances, SolidSurfaceCounters
Other: EntranceFoyer
PrimaryBathroom: DualSinks, SeparateShower
PrimaryBedroom: TrayCeilings, LinenCloset, MainLevelMaster, WalkInClosets
Bedroom Info
Beds: 4
Building Info
New Construction: Yes
Num Stories: 1
Levels: OneAndOneHalf
Year Built: 2025
Zoning: RES
Style: Ranch
Development Status: NewConstruction
Construction Materials: BrickVeneer, HardiplankType
Builders Name: Meritage Homes
Builder Model: Northbrook
Buyer Compensation
Exterior Features
Patio and Porch Features: RearPorch, FrontPorch
Pool Features: Community, OutdoorPool
Foundation: Slab
Exterior Features: Porch
Financial
Garage / Parking
Parking Capacity: 4
Garage: Yes
Parking Type: Attached, Garage, TwoCarGarage, GarageDoorOpener
Attached Garage: Yes
Garage Spaces: 2
Green / Env Info
Interior Features
Floor Cover: Carpet, Tile, Vinyl
Furnished: Unfurnished
Interior Features: Attic, TrayCeilings, DualSinks, LinenCloset, MainLevelPrimary, PullDownAtticStairs, PermanentAtticStairs, SplitBedrooms, SeparateShower, WalkInClosets, EntranceFoyer, StainlessSteelAppliances, SolidSurfaceCounters
Appliances: Dishwasher, Disposal, Microwave, RangeHood
Lot Info
Acres: 0.14
Lot Description: CityLot, Rectangular, RectangularLot
Misc
Offer Compensation
Other School Info
Property Info
County: Horry
Stipulation of Sale: None
Property Sub Type Additional: Detached
Security Features: SmokeDetectors
Disclosures: CovenantsRestrictionsDisclosure
Construction: NeverOccupied
Room Info
Sold Info
Sold Date: 2026-03-30T00:00:00
Sqft Info
Building Sqft: 3091
Living Area Source: Plans
Sqft: 2412
Tax Info
Unit Info
Utilities / Hvac
Heating: Electric
Cooling: CentralAir
Cooling: Yes
Utilities Available: ElectricityAvailable, NaturalGasAvailable, SewerAvailable, UndergroundUtilities, WaterAvailable
Heating: Yes
Water Source: Public
Waterfront / Water
Schools
Elem: Myrtle Beach Elementary School
Middle: Myrtle Beach Middle School
High: Myrtle Beach High School
Directions
From Myrtle Beach: Take Hwy 31 North to WaterTower Road Exit. Turn Right onto WaterTower Road to Round-About and take Long Branch Loop to Copper Crk Loop. From North Myrtle Beach: Take Hwy 31 South to WaterTower Road Exit. Turn Left on WaterTower Road to Round-About and take Long Branch Loop to Copper Crk Loop.Courtesy of Meritage Homes Of The Carolina





Recent Posts RSS
MLS# 2600086
Provided courtesy of © Copyright 2026 Coastal Carolinas Multiple Listing Service, Inc.®. Information Deemed Reliable but Not Guaranteed. © Copyright 2026 Coastal Carolinas Multiple Listing Service, Inc.® MLS. All rights reserved. Information is provided exclusively for consumers’ personal, non-commercial use, that it may not be used for any purpose other than to identify prospective properties consumers may be interested in purchasing.
Images related to data from the MLS is the sole property of the MLS and not the responsibility of the owner of this website. MLS IDX data last updated on 04-02-2026 8:33 AM EST.
Any images related to data from the MLS is the sole property of the MLS and not the responsibility of the owner of this website.