Viewing Listing MLS# 2523995
Myrtle Beach, SC 29577
- N/ABeds
- N/AFull Baths
- N/AHalf Baths
- 12,234SqFt
- 2006Year Built
- 0.00Acres
- MLS# 2523995
- Residential
- Other
- Active
- Approx Time on Market1 month, 23 days
- AreaMyrtle Beach Area--48th Ave N To 79th Ave N
- CountyHorry
- Subdivision Not within a Subdivision
Overview
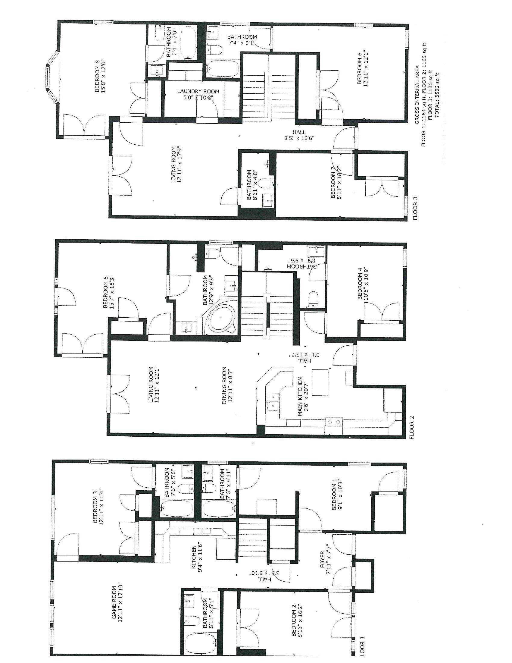
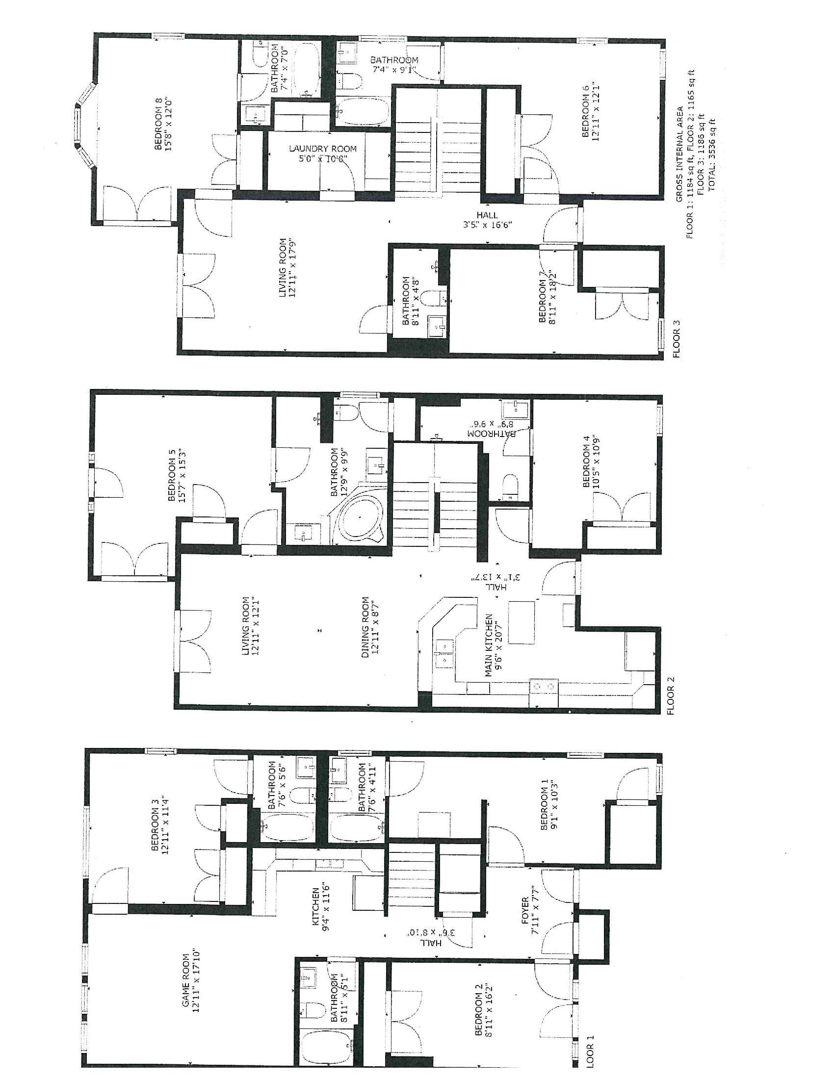
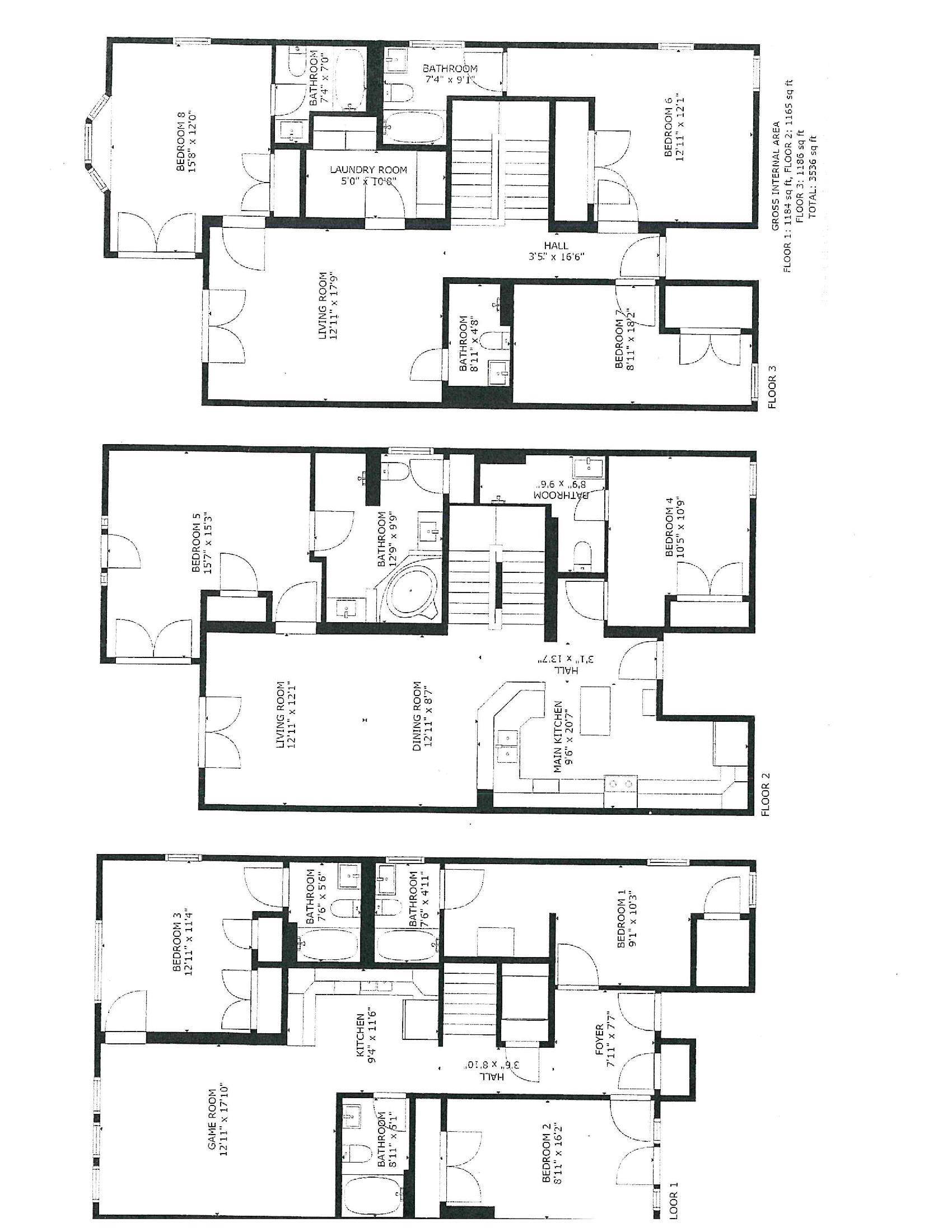
Welcome to 213 76th Avenue North, Myrtle Beach, SC 29572, a remarkable triplex located in the prestigious Golden Mile area. This property comprises three expansive units, each offering over 4,000 square feet of living space across three stories. Each unit features 8 bedrooms and 7.5 bathrooms, totaling 24 bedrooms and 22.5 bathrooms for the entire triplex. Enjoy Key Features such as Spacious Layout: Each unit boasts a generous floor plan with balconies on all three levels, providing ample space for relaxation and entertainment. Proximity to the Beach: Nestled on the beach side in the northern part of Myrtle Beach, known as the Golden Mile, this property is just steps away from the pristine shores, offering easy access to sun, sand, and sea. Private covered parking under each unit accommodates 4-5 cars, private egress, fenced and tree surrounded patio. Common area includes a shared outdoor pool. Each unit offers a PRIVATE ELEVATOR access from garage level to all floors. The First floor features 3 bedrooms, 3 bathrooms, a recreational room, and a full size kitchen with stainless steel appliances and granite countertops. The Second floor offers 2 bedrooms, 1.5 bathrooms, a master suite with a master bathroom, a ceramic tiled walk-in shower, a whirlpool tub, and a dual sink bowl vanities, a large Living room, and a large dining area. The Second floor is also equipped with an oversized full kitchen featuring granite countertops, stainless steel appliances, a work island, and a pantry. The Third floor offers 3 bedrooms, 3 bathrooms, a laundry room (with a full-size washer/dryer) and an additional Living room. This property must be seen to be appreciated - lots of upgrades such as recessed lighting, and ceramic tile & wood flooring throughout! The area is replete with a variety of restaurants, bars, and retail stores, catering to diverse culinary tastes and shopping preferences. The property's prime location provides convenient access to a plethora of attractions along the Grand Strand: Broadway at the Beach: A vibrant shopping, dining, and entertainment complex featuring attractions like Ripley's Aquarium and WonderWorks. Myrtle Beach Boardwalk: A scenic oceanfront boardwalk offering shops, restaurants, and the iconic SkyWheel. Barefoot Landing: A unique shopping and entertainment destination located along the Intracoastal Waterway. Brookgreen Gardens: A National Historic Landmark renowned for its American figurative sculptures, meticulously maintained gardens, and the Lowcountry Zoo. Myrtle Beach State Park: A coastal preserve offering hiking trails, picnic areas, and a fishing pier. Family Kingdom Amusement Park: A seaside amusement park featuring rides and games for all ages. The Market Common: A lifestyle center offering upscale shopping, dining, and entertainment options. T.I.G.E.R.S. Myrtle Beach Safari: An interactive wildlife experience featuring guided tours with exotic animals. The property is located nearby sports centers offer a variety of activities, including tennis, basketball, and fitness classes, catering to active lifestyles. Reputable healthcare providers such as Grand Strand Medical Center and Conway Medical Center are within a short drive, ensuring peace of mind for residents. This property presents an excellent investment opportunity on THE GOLDEN MILE. Its substantial size and prime location making it a sought-after choice for vacationers seeking spacious accommodations near the beach. Short term rental and long term rental are allowed. Experience the epitome of coastal living at 213 76th Avenue North, where luxury, convenience, and opportunity converge. Income Reports are availabe upon request.
Agriculture / Farm
Grazing Permits Blm: ,No,
Horse: No
Grazing Permits Forest Service: ,No,
Grazing Permits Private: ,No,
Irrigation Water Rights: ,No,
Farm Credit Service Incl: ,No,
Crops Included: ,No,
Association Fees / Info
Hoa Frequency: Monthly
Hoa Fees: 850
Hoa: Yes
Community Features: Pool, LongTermRentalAllowed, ShortTermRentalAllowed
Assoc Amenities: OwnerAllowedMotorcycle, Pool, PetRestrictions, TenantAllowedMotorcycle
Bathroom Info
Total Baths: 0.00
Bedroom Info
Building Info
New Construction: No
Year Built: 2006
Mobile Home Remains: ,No,
Zoning: MU-H
Construction Materials: Stucco
Buyer Compensation
Exterior Features
Spa: No
Pool Features: Association, Community
Foundation: Raised
Financial
Lease Renewal Option: ,No,
Garage / Parking
Garage: Yes
Carport: No
Parking Type: Garage, Private
Open Parking: No
Attached Garage: No
Green / Env Info
Interior Features
Fireplace: No
Lot Info
Lease Considered: ,No,
Lease Assignable: ,No,
Acres: 0.00
Land Lease: No
Lot Description: CityLot, Rectangular, RectangularLot
Misc
Pool Private: No
Pets Allowed: OwnerOnly, Yes
Offer Compensation
Other School Info
Property Info
County: Horry
View: No
Number of Units Total: 3
Senior Community: No
Stipulation of Sale: None
Habitable Residence: ,No,
View: Ocean
Property Sub Type Additional: MultiFamily,Other
Property Attached: No
Security Features: HeatDetector, SmokeDetectors
Rent Control: No
Construction: Resale
Room Info
Basement: ,No,
Sold Info
Sqft Info
Building Sqft: 12234
Living Area Source: PublicRecords
Sqft: 12234
Tax Info
Unit Info
Utilities / Hvac
Heating: Central, Electric
Cooling: CentralAir
Electric On Property: No
Cooling: Yes
Utilities Available: CableAvailable, ElectricityAvailable, Other, PhoneAvailable, SewerAvailable, WaterAvailable
Heating: Yes
Water Source: Public
Waterfront / Water
Waterfront: No
Schools
Elem: Myrtle Beach Elementary School
Middle: Myrtle Beach Middle School
High: Myrtle Beach High School
Directions
Located on 76th Ave N and Ocean Blvd.Courtesy of Realty One Group Dockside





Recent Posts RSS
Provided courtesy of © Copyright 2025 Coastal Carolinas Multiple Listing Service, Inc.®. Information Deemed Reliable but Not Guaranteed. © Copyright 2025 Coastal Carolinas Multiple Listing Service, Inc.® MLS. All rights reserved. Information is provided exclusively for consumers’ personal, non-commercial use, that it may not be used for any purpose other than to identify prospective properties consumers may be interested in purchasing.
Images related to data from the MLS is the sole property of the MLS and not the responsibility of the owner of this website. MLS IDX data last updated on 11-25-2025 9:00 AM EST.
Any images related to data from the MLS is the sole property of the MLS and not the responsibility of the owner of this website.