Viewing Listing MLS# 2523305
Loris, SC 29569
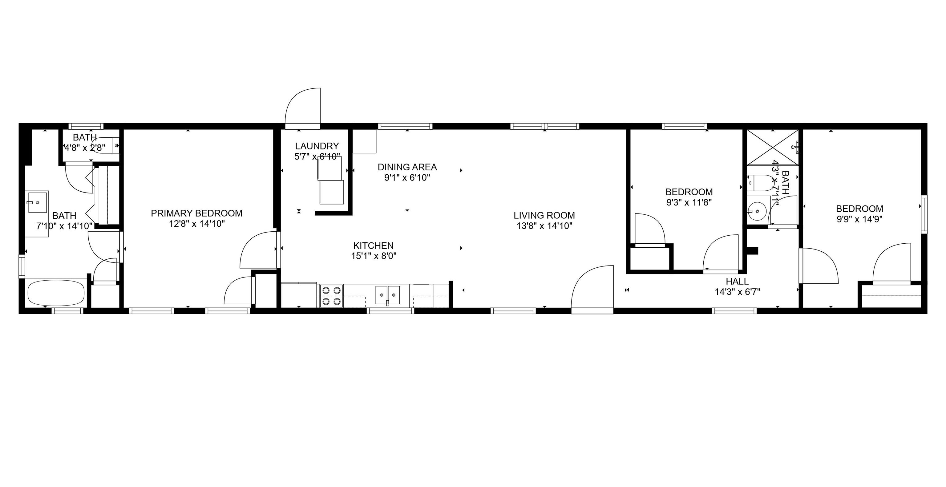
- 3Beds
- 2Full Baths
- N/AHalf Baths
- 1,099SqFt
- 1995Year Built
- 0.69Acres
- MLS# 2523305
- Residential
- MobileHome
- Active
- Approx Time on Market5 months, 3 days
- AreaLoris Area--Central Includes City of Loris
- CountyHorry
- Subdivision Sandy Acres - Loris
Overview
Nice remodeled 3-bedroom, 2-bath singlewide home situated on nearly an acre in a quiet country setting, just a short drive to the beach. This home features luxury vinyl plank flooring, updated bathrooms with tile finishes, and energy-efficient LED lighting throughout. Additional highlights include a 200 sq. ft. storage shed and full RV hookups with electric, water, and septic connection. No HOA fees and plenty of privacyperfect for those who want space while staying close to everything the coast has to offer. Motivated seller will consider all offers. Schedule your showing today and see the potential this home has to offer! Buyer is responsible for verifying all measurements.
Agriculture / Farm
Association Fees / Info
Hoa Frequency: Monthly
Bathroom Info
Total Baths: 2.00
Fullbaths: 2
Bedroom Info
Beds: 3
Building Info
Year Built: 1995
Zoning: MSF 40
Style: MobileHome
Buyer Compensation
Exterior Features
Financial
Garage / Parking
Parking Capacity: 6
Parking Type: None
Green / Env Info
Interior Features
Furnished: Unfurnished
Lot Info
Acres: 0.69
Lot Description: CornerLot, IrregularLot
Misc
Body Type: SingleWide
Offer Compensation
Other School Info
Property Info
County: Horry
Stipulation of Sale: None
Property Sub Type Additional: MobileHome,ManufacturedOnLand
Construction: Resale
Room Info
Sold Info
Sqft Info
Building Sqft: 1099
Living Area Source: Estimated
Sqft: 1099
Tax Info
Unit Info
Utilities / Hvac
Sewer: SepticTank
Utilities Available: ElectricityAvailable, SepticAvailable, WaterAvailable
Water Source: Public
Waterfront / Water
Directions
Heading from Conway take Hwy 701 north towards Allsbrook area and Loris, make right on Crepe Myrtle Dr follow it all the way down and make a right onto Rainbow Dr. Property is a corner lot of Rainbow and Princess Street.Courtesy of Up2date Realty, Llc





Recent Posts RSS
MLS# 2600324
Provided courtesy of © Copyright 2026 Coastal Carolinas Multiple Listing Service, Inc.®. Information Deemed Reliable but Not Guaranteed. © Copyright 2026 Coastal Carolinas Multiple Listing Service, Inc.® MLS. All rights reserved. Information is provided exclusively for consumers’ personal, non-commercial use, that it may not be used for any purpose other than to identify prospective properties consumers may be interested in purchasing.
Images related to data from the MLS is the sole property of the MLS and not the responsibility of the owner of this website. MLS IDX data last updated on 02-27-2026 6:29 AM EST.
Any images related to data from the MLS is the sole property of the MLS and not the responsibility of the owner of this website.