Viewing Listing MLS# 2521975
Myrtle Beach, SC 29577
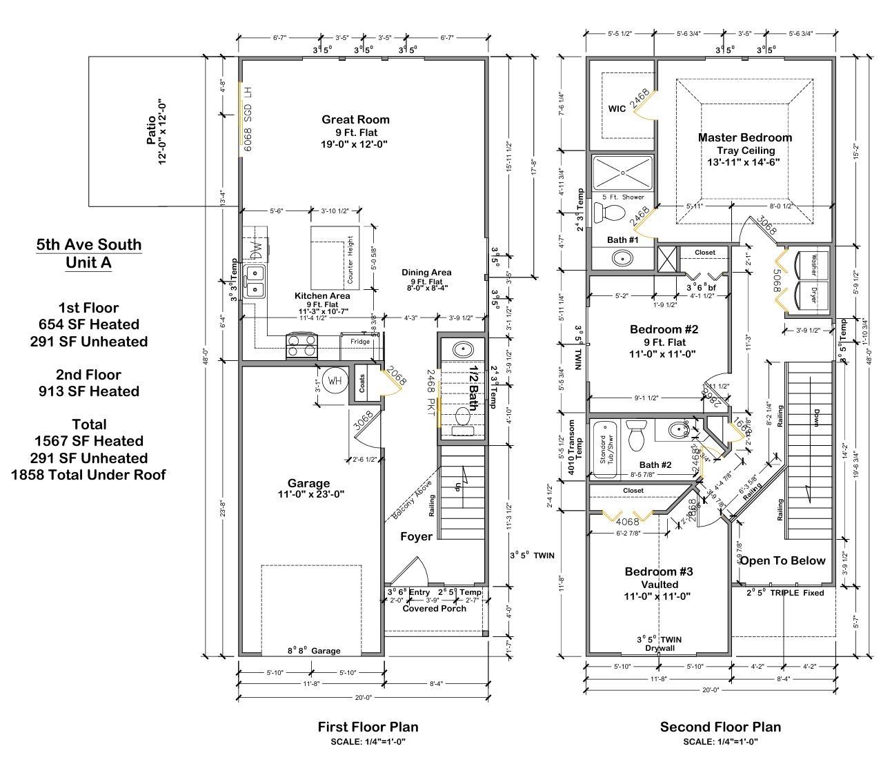
- 3Beds
- 2Full Baths
- 1Half Baths
- 1,567SqFt
- 2026Year Built
- 0.11Acres
- MLS# 2521975
- Residential
- Detached
- Active
- Approx Time on Market2 months, 20 days
- AreaMyrtle Beach Area--Southern Limit To 10th Ave N
- CountyHorry
- Subdivision Not within a Subdivision
Overview
Brand New Construction - Prime Myrtle Beach Location! Offering Seller Credit at Closing! Reach out for more details! Beautiful new construction home in a 6 Home development, located just 4 minutes by golf cart to the beach! 1,858 Total Sqft Featuring 3 bedrooms, 2.5 baths, a spacious open floor plan, and upgraded finishes throughout, this home is designed for comfort and style. Highlights include: Luxury flooring throughout Premium Counter Tops Tile Bathrooms and Shower Dining area and second-floor laundry Attached garage Pre-selling now! Estimated completion: Q1 2026. Dont miss this opportunity to own a brand-new home or investment property in the heart of Myrtle Beach! Owner is a licensed real estate professional. Images are artist renderings; finishes and colors may vary.
Agriculture / Farm
Association Fees / Info
Hoa Frequency: Monthly
Hoa: Yes
Bathroom Info
Total Baths: 3.00
Halfbaths: 1
Fullbaths: 2
Room Features
Kitchen: BreakfastBar, KitchenIsland, StainlessSteelAppliances, SolidSurfaceCounters
LivingRoom: CeilingFans
Other: EntranceFoyer, UtilityRoom
Bedroom Info
Beds: 3
Building Info
Levels: Two
Year Built: 2026
Zoning: RMH
Style: Contemporary
Construction Materials: BrickVeneer, VinylSiding, WoodFrame
Buyer Compensation
Exterior Features
Patio and Porch Features: Patio
Foundation: Slab
Exterior Features: Patio
Financial
Garage / Parking
Parking Capacity: 2
Garage: Yes
Parking Type: Attached, Garage, OneSpace
Garage Spaces: 1
Green / Env Info
Interior Features
Floor Cover: LuxuryVinyl, LuxuryVinylPlank
Laundry Features: WasherHookup
Furnished: Unfurnished
Interior Features: BreakfastBar, EntranceFoyer, KitchenIsland, StainlessSteelAppliances, SolidSurfaceCounters
Appliances: Dishwasher, Disposal, Microwave, Range
Lot Info
Acres: 0.11
Misc
Offer Compensation
Other School Info
Property Info
County: Horry
Stipulation of Sale: None
Property Sub Type Additional: Detached
Construction: UnderConstruction
Room Info
Sold Info
Sqft Info
Building Sqft: 1858
Living Area Source: Plans
Sqft: 1567
Tax Info
Unit Info
Utilities / Hvac
Heating: Central, Electric
Cooling: CentralAir
Cooling: Yes
Heating: Yes
Waterfront / Water
Schools
Elem: Myrtle Beach Elementary School
Middle: Myrtle Beach Intermediate
High: Myrtle Beach High School
Directions
From Kings Hwy, coming from North turn Right on 5th Ave S, pass the fork, and it will be on your right.Courtesy of Harborstone Realty Llc





Recent Posts RSS
MLS# 2528264
Provided courtesy of © Copyright 2025 Coastal Carolinas Multiple Listing Service, Inc.®. Information Deemed Reliable but Not Guaranteed. © Copyright 2025 Coastal Carolinas Multiple Listing Service, Inc.® MLS. All rights reserved. Information is provided exclusively for consumers’ personal, non-commercial use, that it may not be used for any purpose other than to identify prospective properties consumers may be interested in purchasing.
Images related to data from the MLS is the sole property of the MLS and not the responsibility of the owner of this website. MLS IDX data last updated on 11-28-2025 10:03 AM EST.
Any images related to data from the MLS is the sole property of the MLS and not the responsibility of the owner of this website.