Viewing Listing MLS# 2520306
Murrells Inlet, SC 29576
- 3Beds
- 2Full Baths
- 1Half Baths
- 1,883SqFt
- 2026Year Built
- 201Unit #
- MLS# 2520306
- Residential
- Condominium
- Active
- Approx Time on Market2 months, 19 days
- AreaMyrtle Beach Area--South of 544 & West of 17 Bypass M.i. Horry County
- CountyHorry
- Subdivision Bally Castle
Overview
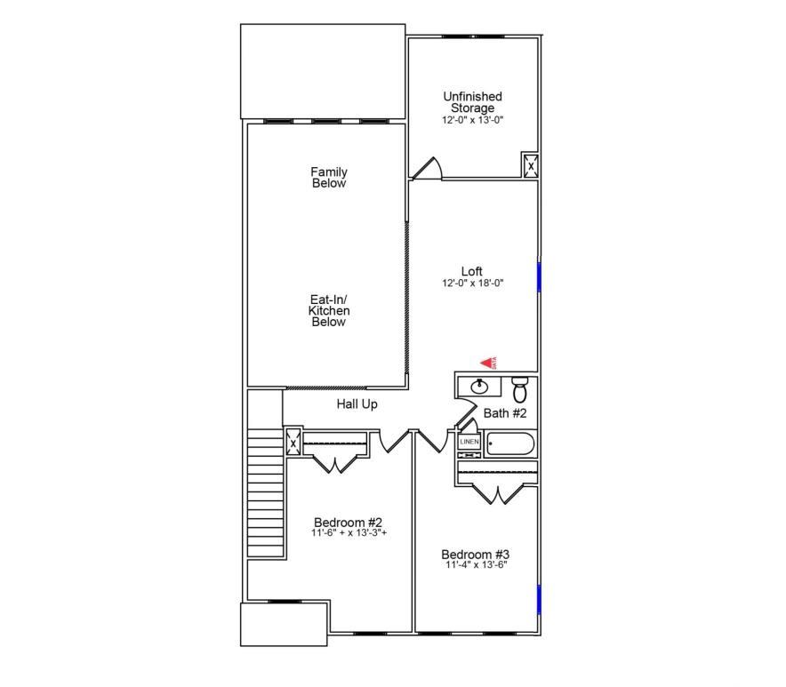
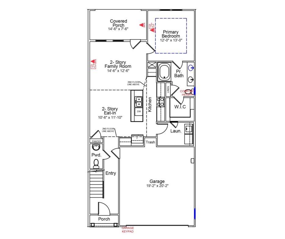
Welcome to the Hydrangea! This thoughtfully designed end-unit features three bedrooms, two-and-one-half baths, and a spacious loft. Upon entry, an extended foyer leads into an open-concept kitchen, eat-in area, and great room that is sure to impress. The kitchen sits at the heart of the home and showcases white cabinets with a brown accent island, quartz countertops, a tiled backsplash, and black hardware paired with a GE stainless steel appliance package. The kitchen overlooks the eat-in and great room, which boasts a soaring two-story ceiling that floods the home with natural light. Tucked beyond the great room is the primary bedroom, complete with a tray ceiling and ceiling fan. The en-suite bath features dual sinks with quartz countertops, a tiled shower with glass enclosure, and a walk-in closet. Out back, a covered porch overlooking a private tree line provides the perfect place to enjoy your morning coffee. Upstairs, youll find two additional bedrooms, a full bath, and a loft that overlooks the impressive two-story great room. A generous unfinished storage room offers the perfect space to keep seasonal items organized. A laundry room off the kitchen and a convenient half bath under the stairs completes the home. Live a laid-back lifestyle and enjoy all that Murrells Inlet has to offerjust minutes from this boutique new community, Bally Castle! Home is to-be-built. Homesite photo shows the designated lot that the townhome will be constructed. Additional photos are of a completed home for reference ONLY.
Agriculture / Farm
Grazing Permits Blm: ,No,
Horse: No
Grazing Permits Forest Service: ,No,
Grazing Permits Private: ,No,
Irrigation Water Rights: ,No,
Farm Credit Service Incl: ,No,
Crops Included: ,No,
Association Fees / Info
Hoa Frequency: Monthly
Hoa Fees: 379
Hoa: Yes
Hoa Includes: AssociationManagement, CommonAreas, Insurance, LegalAccounting, MaintenanceGrounds, Other, PestControl, Pools, Trash
Community Features: GolfCartsOk, Golf, LongTermRentalAllowed, Pool
Assoc Amenities: OwnerAllowedGolfCart, OwnerAllowedMotorcycle, PetRestrictions, PetsAllowed, TenantAllowedGolfCart, TenantAllowedMotorcycle
Bathroom Info
Total Baths: 3.00
Halfbaths: 1
Fullbaths: 2
Room Dimensions
Bedroom1: 11'6x13'3
Bedroom2: 11'4x13'6
DiningRoom: 10'6x11'10
GreatRoom: 14'6x12'6
PrimaryBedroom: 12'x13'
Room Level
Bedroom1: Second
Bedroom2: Second
PrimaryBedroom: First
Room Features
DiningRoom: KitchenDiningCombo
FamilyRoom: CeilingFans
Kitchen: Pantry, StainlessSteelAppliances
Other: EntranceFoyer, Loft, UtilityRoom
Bedroom Info
Beds: 3
Building Info
New Construction: No
Levels: Two
Year Built: 2026
Structure Type: Townhouse
Mobile Home Remains: ,No,
Zoning: Residentia
Development Status: Proposed
Common Walls: EndUnit
Construction Materials: VinylSiding
Entry Level: 1
Building Name: 2
Buyer Compensation
Exterior Features
Spa: No
Patio and Porch Features: RearPorch
Pool Features: Community, OutdoorPool
Foundation: Slab
Exterior Features: SprinklerIrrigation, Porch
Financial
Lease Renewal Option: ,No,
Garage / Parking
Garage: Yes
Carport: No
Parking Type: TwoCarGarage, Private, GarageDoorOpener
Open Parking: No
Attached Garage: No
Garage Spaces: 2
Green / Env Info
Green Energy Efficient: Doors, Windows
Interior Features
Floor Cover: Carpet, LuxuryVinyl, LuxuryVinylPlank
Door Features: InsulatedDoors
Fireplace: No
Laundry Features: WasherHookup
Furnished: Unfurnished
Interior Features: EntranceFoyer, Loft, StainlessSteelAppliances
Appliances: Dishwasher, Disposal, Microwave, Oven, Range
Lot Info
Lease Considered: ,No,
Lease Assignable: ,No,
Acres: 0.00
Land Lease: No
Lot Description: NearGolfCourse, OutsideCityLimits, Rectangular, RectangularLot, Wetlands
Misc
Pool Private: No
Pets Allowed: OwnerOnly, Yes
Offer Compensation
Other School Info
Property Info
County: Horry
View: No
Senior Community: No
Stipulation of Sale: None
Habitable Residence: ,No,
View: MarshView
Property Sub Type Additional: Condominium,Townhouse
Property Attached: No
Security Features: SmokeDetectors
Disclosures: CovenantsRestrictionsDisclosure
Rent Control: No
Construction: ToBeBuilt
Room Info
Basement: ,No,
Sold Info
Sqft Info
Building Sqft: 2297
Living Area Source: Builder
Sqft: 1883
Tax Info
Unit Info
Unit: 201
Utilities / Hvac
Heating: Central, Electric
Cooling: CentralAir
Electric On Property: No
Cooling: Yes
Utilities Available: CableAvailable, ElectricityAvailable, PhoneAvailable, UndergroundUtilities, WaterAvailable
Heating: Yes
Water Source: Public
Waterfront / Water
Waterfront: No
Schools
Elem: Saint James Elementary School
Middle: Saint James Middle School
High: Saint James High School
Directions
From Myrtle Beach: take Hwy 17 by-pass South approximately 12 miles to Garden City. Turn right onto Tournament Blvd. Travel approximately 1 mile, and turn right onto International Club Blvd. Travel approximately 1 mile, and turn right onto Pickering Dr. Travel 500 yards, and Bally Castle will be on the left.Courtesy of Cpg Inc. Dba Mungo Homes





Recent Posts RSS
MLS# 2522450
Provided courtesy of © Copyright 2025 Coastal Carolinas Multiple Listing Service, Inc.®. Information Deemed Reliable but Not Guaranteed. © Copyright 2025 Coastal Carolinas Multiple Listing Service, Inc.® MLS. All rights reserved. Information is provided exclusively for consumers’ personal, non-commercial use, that it may not be used for any purpose other than to identify prospective properties consumers may be interested in purchasing.
Images related to data from the MLS is the sole property of the MLS and not the responsibility of the owner of this website. MLS IDX data last updated on 11-09-2025 5:05 PM EST.
Any images related to data from the MLS is the sole property of the MLS and not the responsibility of the owner of this website.