Viewing Listing MLS# 2519763
North Myrtle Beach, SC 29582
- 5Beds
- 4Full Baths
- 1Half Baths
- 3,120SqFt
- 2025Year Built
- 0.13Acres
- MLS# 2519763
- Residential
- Detached
- Sold
- Approx Time on Market5 months, 28 days
- AreaNorth Myrtle Beach Area--Ocean Drive
- CountyHorry
- Subdivision The Palms At 5th Avenue South - Nmb
Overview
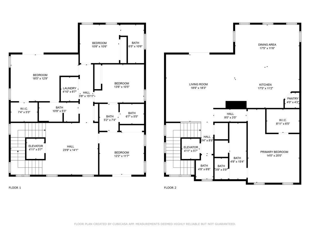
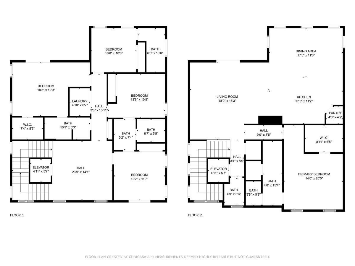
This raised beach house is everything you could dream of and more! Back yard recently updated. Refer to photos. And a short walk or golf cart to the beach! ELEVATOR INCLUDED This 5-bedroom, 4.5-bathroom home boasts over 3100 sqft of heated living space with a 4-car garage on the first floor. The second floor contains a large family room, 4 bedrooms, 3 bathrooms, and large walk-in closets . The two bedrooms located at the back of the house have access to the first raised back porch. The Laundry room is located on the second floor. The third floor of this home contains the master suite with a large walk-in-closet with an ensuite bath. This open floor plan will combine a large living room, a spacious kitchen with an oversized working island; a connected dining room; and an additional half bath for guests. Broker Owned.
Sale Info
Listing Date: 08-14-2025
Sold Date: 02-12-2026
Aprox Days on Market: 
5 month(s), 28 day(s)
Listing Sold: 
1 month(s), 3 day(s) ago
Asking Price: $899,900
Selling Price: $850,000
Price Difference:
Increase $100
Agriculture / Farm
Association Fees / Info
Hoa Frequency: Monthly
Hoa Fees: 13
Hoa: Yes
Hoa Includes: CommonAreas
Bathroom Info
Total Baths: 5.00
Halfbaths: 1
Fullbaths: 4
Room Features
DiningRoom: KitchenDiningCombo
Kitchen: SolidSurfaceCounters
LivingRoom: Fireplace
Other: UtilityRoom
Bedroom Info
Beds: 5
Building Info
New Construction: Yes
Levels: ThreeOrMore
Year Built: 2025
Zoning: res
Style: RaisedBeach
Development Status: NewConstruction
Construction Materials: Masonry
Builders Name: Chris Manning Communities
Builder Model: ""OCEAN BREEZE""
Buyer Compensation
Exterior Features
Patio and Porch Features: FrontPorch
Foundation: Raised
Financial
Garage / Parking
Parking Capacity: 6
Garage: Yes
Parking Type: Attached, Garage, GarageDoorOpener
Attached Garage: Yes
Garage Spaces: 4
Green / Env Info
Interior Features
Floor Cover: Carpet
Furnished: Unfurnished
Interior Features: CeilingFans, DualSinks, SolidSurfaceCounters
Lot Info
Acres: 0.13
Lot Description: CityLot, IrregularLot
Misc
Offer Compensation
Other School Info
Property Info
County: Horry
Stipulation of Sale: None
Property Sub Type Additional: Detached
Construction: NeverOccupied
Room Info
Sold Info
Sold Date: 2026-02-12T00:00:00
Sqft Info
Building Sqft: 5049
Living Area Source: Plans
Sqft: 3120
Tax Info
Unit Info
Utilities / Hvac
Cooling: CentralAir
Cooling: Yes
Utilities Available: CableAvailable
Waterfront / Water
Directions
To the left of the new Circle K in North Myrtle Beach that aligns 6th Avenue. 5th Avenue on the other side of Circle K.Courtesy of Chrismanningcommunities Realty





Recent Posts RSS
MLS# 2529728
Provided courtesy of © Copyright 2026 Coastal Carolinas Multiple Listing Service, Inc.®. Information Deemed Reliable but Not Guaranteed. © Copyright 2026 Coastal Carolinas Multiple Listing Service, Inc.® MLS. All rights reserved. Information is provided exclusively for consumers’ personal, non-commercial use, that it may not be used for any purpose other than to identify prospective properties consumers may be interested in purchasing.
Images related to data from the MLS is the sole property of the MLS and not the responsibility of the owner of this website. MLS IDX data last updated on 03-14-2026 11:48 PM EST.
Any images related to data from the MLS is the sole property of the MLS and not the responsibility of the owner of this website.