Viewing Listing MLS# 2519761
North Myrtle Beach, SC 29582
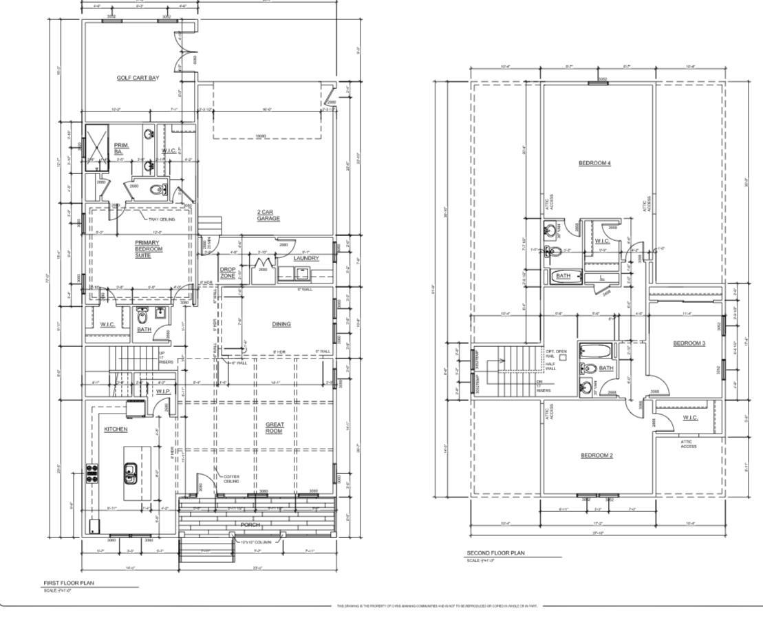
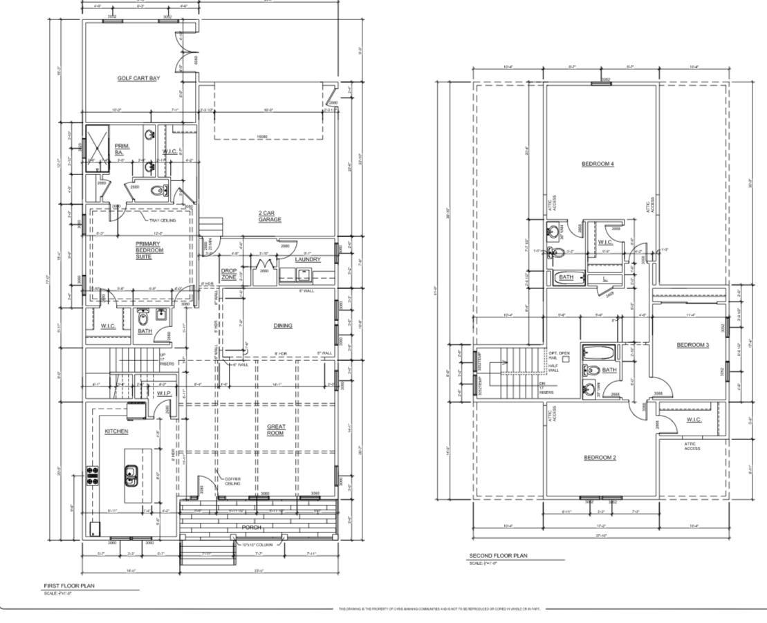
- 4Beds
- 3Full Baths
- 1Half Baths
- 3,089SqFt
- 2024Year Built
- 0.11Acres
- MLS# 2519761
- Residential
- Detached
- Sold
- Approx Time on Market6 months, 4 days
- AreaNorth Myrtle Beach Area--Cherry Grove
- CountyHorry
- Subdivision Charleston Landing
Overview
Charleston Landing- Beautiful Marshfront Community with Beautiful amenities (Playground and Clubhouse w/Pool) Spacious Floor Plan.Extra Storage in Garage(Workshop or Golf Cart Space)This 2 story home has a Great Room downstairs and a Living Room Upstairs. Master Bdrm downstairs, 4 Bdrms, 4.5 baths with an additional flex room. Casual Dining with an Eat in Kitchen. Front Porch. Community offers catch and release fishing, Clubhouse and Playground. Broker Owned
Sale Info
Listing Date: 08-14-2025
Sold Date: 02-19-2026
Aprox Days on Market: 
6 month(s), 4 day(s)
Listing Sold: 
23 day(s) ago
Asking Price: $769,900
Selling Price: $650,000
Price Difference:
Reduced By $49,900
Agriculture / Farm
Association Fees / Info
Hoa Frequency: Monthly
Hoa Fees: 107
Hoa: Yes
Bathroom Info
Total Baths: 4.00
Halfbaths: 1
Fullbaths: 3
Bedroom Info
Beds: 4
Building Info
New Construction: Yes
Year Built: 2024
Zoning: R1
Development Status: NewConstruction
Buyer Compensation
Exterior Features
Financial
Garage / Parking
Parking Capacity: 4
Garage: Yes
Parking Type: Attached, Garage, TwoCarGarage
Attached Garage: Yes
Garage Spaces: 2
Green / Env Info
Interior Features
Furnished: Unfurnished
Lot Info
Acres: 0.11
Misc
Offer Compensation
Other School Info
Property Info
County: Horry
Stipulation of Sale: None
Property Sub Type Additional: Detached
Construction: NeverOccupied
Room Info
Sold Info
Sold Date: 2026-02-19T00:00:00
Sqft Info
Building Sqft: 3721
Living Area Source: Plans
Sqft: 3089
Tax Info
Unit Info
Utilities / Hvac
Waterfront / Water
Directions
Sea Mountain towards Cherry Grove. Turn onto Little River Neck Road, Turn into Charleston Landing, House on leftCourtesy of Chrismanningcommunities Realty





Recent Posts RSS
MLS# 2522092
Provided courtesy of © Copyright 2026 Coastal Carolinas Multiple Listing Service, Inc.®. Information Deemed Reliable but Not Guaranteed. © Copyright 2026 Coastal Carolinas Multiple Listing Service, Inc.® MLS. All rights reserved. Information is provided exclusively for consumers’ personal, non-commercial use, that it may not be used for any purpose other than to identify prospective properties consumers may be interested in purchasing.
Images related to data from the MLS is the sole property of the MLS and not the responsibility of the owner of this website. MLS IDX data last updated on 03-14-2026 5:01 PM EST.
Any images related to data from the MLS is the sole property of the MLS and not the responsibility of the owner of this website.