Viewing Listing MLS# 2514134
Myrtle Beach, SC 29575
- 6Beds
- 6Full Baths
- 2Half Baths
- 3,211SqFt
- 2025Year Built
- 0.08Acres
- MLS# 2514134
- Residential
- Detached
- Sold
- Approx Time on Market8 months, 13 days
- AreaSurfside Beach--East of 17 and South of Surfside Drive
- CountyHorry
- Subdivision Ocean Pine (surfside Beach)
Overview
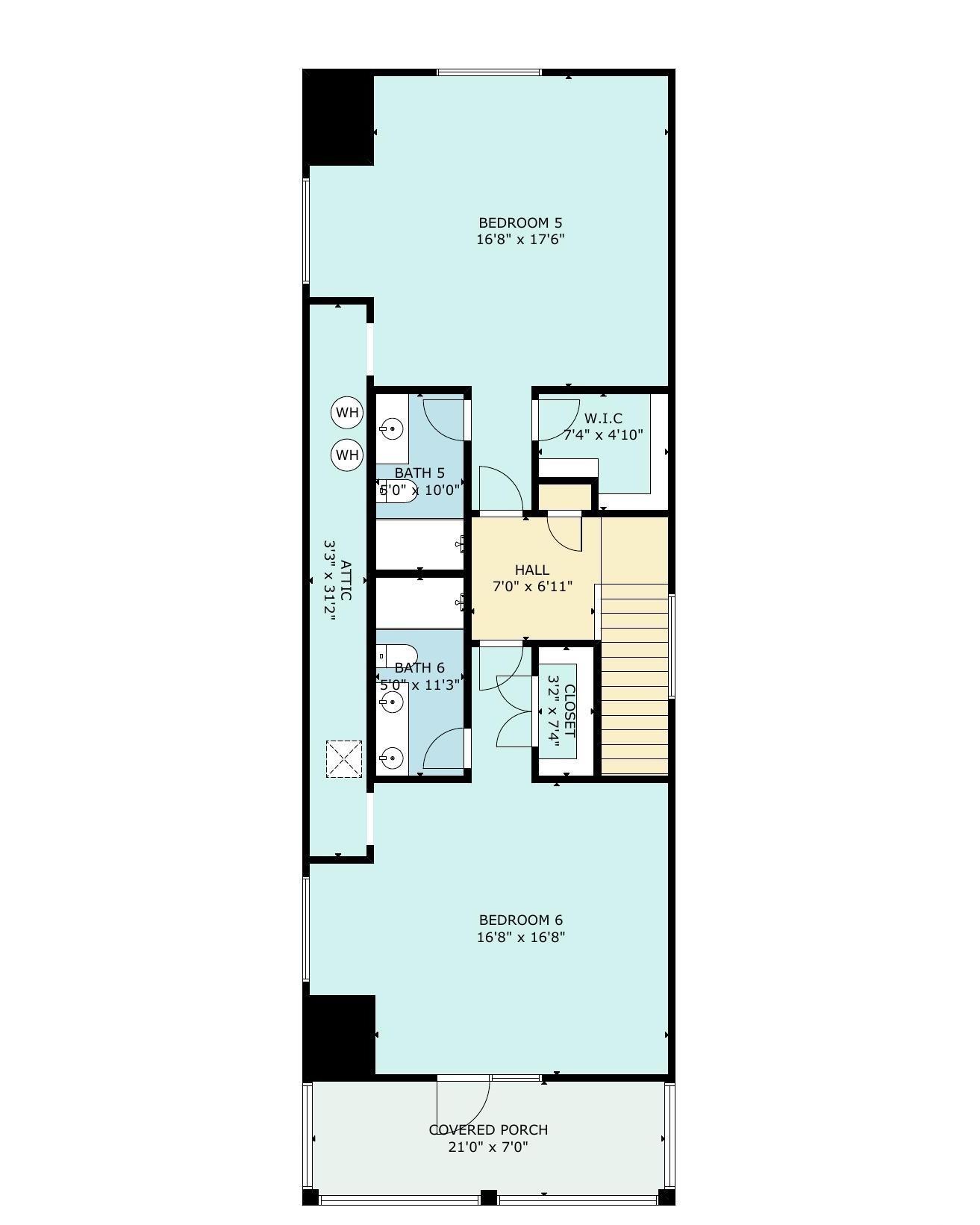
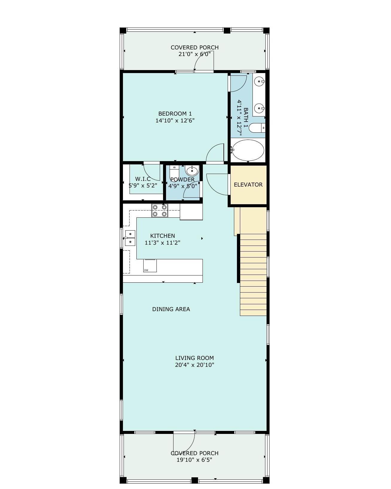
211B 15th Ave S (Right Side) is a beach house currently under construction in Surfside Beach, located approximately 250 yards from the ocean. Scheduled for completion by January 1, 2026, this single-family home offers 3,321 heated square feet and 4,370 total square feet. It includes 6 bedrooms, 6 full bathrooms, and 2 half bathroomsideal for large families, group vacations, or as a high-performing short-term rental. The exterior is built for coastal durability with James Hardie concrete fiber siding, a 30-year architectural shingle roof, composite decking with vinyl railings, and a 6' vinyl privacy fence enclosing the backyard. Outdoor features include a 12'x20' gunite saltwater pool (3' to 5' depth) with a propane heater, saltwater filtration system, paver pool deck, and hot/cold outdoor shower. A ground-level wet bar with a refrigerator and a half bath adds functionality to outdoor entertaining. Inside, the home features a three-stop elevator, ceiling fans in all rooms, two-inch faux-wood blinds, and satin-brushed-nickel hardware throughout. Flooring consists of LVT in the main living areas and bedrooms, and ceramic tile in bathrooms and the laundry room. The painted stairway features a carpet runner for added comfort and style. The property accommodates up to six vehicles, including space in the 18' x 9' garage. The kitchen features 42"" upper cabinetry, quartz countertops, and a stainless-steel appliance package that includes a freestanding glass-top range, microwave, dishwasher, side-by-side refrigerator, garbage disposal, and washer/dryer. Bathrooms include counter-height vanities, three tile showers, one 5' fiberglass tub/shower combo, and two 5' fiberglass shower units, offering both comfort and functionality. The home is zoned for short-term vacation rentals and is within walking or golf-cart distance of Surfside Pier, restaurants, shops, parks, tennis and bocce courts, a baseball diamond, the library, and the seasonal farmers market. Myrtle Beach is a short 20-minute drive away. View the Matterport 3D Virtual Tour at www.bit.ly/7BRVirtualTour for a preview of what the finished home may look like. Images and virtual tours are of similar completed models and are for illustrative purposes only. 211A is the twin of 211B, also for sale and currently under construction. For a spacious, well-appointed beach home in a prime location, 211B 15th Ave S offers excellent value and investment potential.
Sale Info
Listing Date: 06-06-2025
Sold Date: 02-20-2026
Aprox Days on Market: 
8 month(s), 13 day(s)
Listing Sold: 
11 day(s) ago
Asking Price: $1,499,900
Selling Price: $1,450,000
Price Difference:
Reduced By $49,900
Agriculture / Farm
Association Fees / Info
Hoa Frequency: Monthly
Community Features: GolfCartsOk, LongTermRentalAllowed, ShortTermRentalAllowed
Assoc Amenities: OwnerAllowedGolfCart, OwnerAllowedMotorcycle, PetRestrictions, TenantAllowedGolfCart, TenantAllowedMotorcycle
Bathroom Info
Total Baths: 8.00
Halfbaths: 2
Fullbaths: 6
Room Dimensions
Bedroom1: 15x13
Bedroom2: 12x11 15x13
Bedroom3: 17x17 17x18
Kitchen: 11x11
LivingRoom: 20x21
PrimaryBedroom: 15x14
Room Level
Bedroom1: First
Bedroom2: Second
Bedroom3: Third
PrimaryBedroom: Second
Room Features
DiningRoom: LivingDiningRoom
Kitchen: BreakfastBar, KitchenExhaustFan, Pantry, StainlessSteelAppliances, SolidSurfaceCounters
LivingRoom: CeilingFans
Other: BedroomOnMainLevel
Bedroom Info
Beds: 6
Building Info
New Construction: Yes
Levels: Two
Year Built: 2025
Zoning: R3
Style: RaisedBeach
Development Status: NewConstruction
Construction Materials: HardiplankType, WoodFrame
Builders Name: N L Johnston Construction
Buyer Compensation
Exterior Features
Patio and Porch Features: Balcony, RearPorch, FrontPorch, Patio
Window Features: WindowTreatments
Pool Features: InGround, OutdoorPool, Private
Foundation: Raised, Slab
Exterior Features: Balcony, Fence, SprinklerIrrigation, Pool, Porch, Patio
Financial
Garage / Parking
Parking Capacity: 6
Parking Type: Underground
Green / Env Info
Green Energy Efficient: Doors, Windows
Interior Features
Floor Cover: Carpet, LuxuryVinyl, LuxuryVinylPlank, Tile
Door Features: InsulatedDoors
Laundry Features: WasherHookup
Furnished: Unfurnished
Interior Features: CeilingFans, DualSinks, Elevator, GardenTubRomanTub, LinenCloset, SplitBedrooms, SeparateShower, Vanity, WalkInClosets, WindowTreatments, BreakfastBar, BedroomOnMainLevel, StainlessSteelAppliances, SolidSurfaceCounters
Appliances: Dishwasher, Disposal, Microwave, Range, Refrigerator, RangeHood, Dryer, Washer
Lot Info
Acres: 0.08
Lot Size: 35x110x31x110
Lot Description: CityLot, FloodZone, Rectangular, RectangularLot
Misc
Pool Private: Yes
Pets Allowed: OwnerOnly, Yes
Offer Compensation
Other School Info
Property Info
County: Horry
Stipulation of Sale: None
Property Sub Type Additional: Detached
Construction: NeverOccupied
Room Info
Sold Info
Sold Date: 2026-02-20T00:00:00
Sqft Info
Building Sqft: 4370
Living Area Source: Plans
Sqft: 3211
Tax Info
Unit Info
Utilities / Hvac
Heating: Central, Electric, ForcedAir
Cooling: CentralAir
Cooling: Yes
Utilities Available: CableAvailable, ElectricityAvailable, PhoneAvailable, SewerAvailable, WaterAvailable
Heating: Yes
Water Source: Public
Waterfront / Water
Schools
Elem: Seaside Elementary School
Middle: Saint James Middle School
High: Saint James High School
Directions
Take Hwy 17 Business to Melody Lane. Turn left onto South Dogwood Drive, go 0.1 mile, and the home will be on your left at the corner of South Dogwood Drive and 15th Avenue South.Courtesy of Dunes Realty Sales





Recent Posts RSS
Provided courtesy of © Copyright 2026 Coastal Carolinas Multiple Listing Service, Inc.®. Information Deemed Reliable but Not Guaranteed. © Copyright 2026 Coastal Carolinas Multiple Listing Service, Inc.® MLS. All rights reserved. Information is provided exclusively for consumers’ personal, non-commercial use, that it may not be used for any purpose other than to identify prospective properties consumers may be interested in purchasing.
Images related to data from the MLS is the sole property of the MLS and not the responsibility of the owner of this website. MLS IDX data last updated on 03-02-2026 11:49 PM EST.
Any images related to data from the MLS is the sole property of the MLS and not the responsibility of the owner of this website.