Viewing Listing MLS# 2423200
Longs, SC 29568
- 5Beds
- 3Full Baths
- N/AHalf Baths
- 2,225SqFt
- 2024Year Built
- 0.23Acres
- MLS# 2423200
- Residential
- Detached
- Sold
- Approx Time on Market6 months, 27 days
- AreaConway To Myrtle Beach Area--Between 90 & Waterway Redhill/grande Dunes
- CountyHorry
- Subdivision Avery Woods
Overview
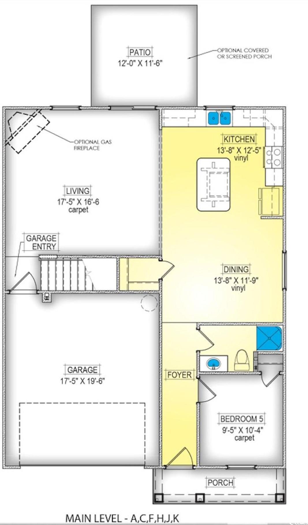
[] Our popular Bentcreek II B plan has many feaures to offer Buyers interested in owning a brand new home in as brand new community. This 2-story home is a 5 bedroom/3 bath home offering an open floor plan with a Great Room, and a large Dining/Kitchen combo. The Kitchen boasts a work island and pantry, and Quartz countertops. The 5th bedroom could be used as an office. The 2nd floor offers the Owners Suite PLUS 3 more bedrooms and a huge loft! Luxury Vinyl Plank flooring on the first floor, in the common areas, carpet on the stairs and 2nd floor bedrooms. There is a tankless gas water heater and Energy Star Stainless Appliances. There is a large patio to enjoy in this model, as well as a covered porch. Another standard is a fully sodded yard and irrigation. This lot sits on a pond. Square footage is approximate and not guaranteed, Buyer/Buyer Agent is responsible for verification. Photos are for illustrative purposes only and may be of a similar house built elsewhere.
Sale Info
Listing Date: 10-07-2024
Sold Date: 05-05-2025
Aprox Days on Market: 
6 month(s), 27 day(s)
Listing Sold: 
10 month(s), 28 day(s) ago
Asking Price: $382,834
Selling Price: $354,900
Price Difference:
Same as list price
Agriculture / Farm
Grazing Permits Blm: ,No,
Horse: No
Grazing Permits Forest Service: ,No,
Grazing Permits Private: ,No,
Irrigation Water Rights: ,No,
Farm Credit Service Incl: ,No,
Crops Included: ,No,
Association Fees / Info
Hoa Frequency: Monthly
Hoa Fees: 76
Hoa: 1
Hoa Includes: AssociationManagement, CommonAreas, Insurance, Pools
Community Features: GolfCartsOk, LongTermRentalAllowed, Pool
Assoc Amenities: OwnerAllowedGolfCart, OwnerAllowedMotorcycle, PetRestrictions
Bathroom Info
Total Baths: 3.00
Fullbaths: 3
Room Dimensions
Bedroom1: 10'10x11'8
Bedroom2: 10'x11'8
Bedroom3: 10'10x11'
DiningRoom: 13'8x11'9
GreatRoom: 17'5x16'6
Kitchen: 13'8x12'5
PrimaryBedroom: 15'7x13'7
Room Level
Bedroom1: Second
Bedroom2: Second
Bedroom3: Second
PrimaryBedroom: Second
Room Features
DiningRoom: KitchenDiningCombo
Kitchen: BreakfastBar, KitchenIsland, Pantry, StainlessSteelAppliances, SolidSurfaceCounters
Other: BedroomOnMainLevel, EntranceFoyer, Loft
PrimaryBathroom: DualSinks, GardenTubRomanTub, SeparateShower, Vanity
PrimaryBedroom: TrayCeilings, WalkInClosets
Bedroom Info
Beds: 5
Building Info
New Construction: Yes
Levels: Two, MultiSplit
Year Built: 2024
Mobile Home Remains: ,No,
Zoning: Res
Style: SplitLevel
Development Status: NewConstruction
Construction Materials: Masonry, VinylSiding
Builders Name: Great Southern Homes
Builder Model: Bentcreek II
Buyer Compensation
Exterior Features
Spa: No
Patio and Porch Features: RearPorch, FrontPorch
Pool Features: Community, OutdoorPool
Foundation: Slab
Exterior Features: SprinklerIrrigation, Porch
Financial
Lease Renewal Option: ,No,
Garage / Parking
Parking Capacity: 4
Garage: Yes
Carport: No
Parking Type: Attached, Garage, TwoCarGarage
Open Parking: No
Attached Garage: Yes
Garage Spaces: 2
Green / Env Info
Green Energy Efficient: Doors, Windows
Interior Features
Floor Cover: Carpet, LuxuryVinyl, LuxuryVinylPlank
Door Features: InsulatedDoors
Fireplace: No
Laundry Features: WasherHookup
Furnished: Unfurnished
Interior Features: Attic, PullDownAtticStairs, PermanentAtticStairs, BreakfastBar, BedroomOnMainLevel, EntranceFoyer, KitchenIsland, Loft, StainlessSteelAppliances, SolidSurfaceCounters
Appliances: Dishwasher, Microwave, Range
Lot Info
Lease Considered: ,No,
Lease Assignable: ,No,
Acres: 0.23
Lot Size: 119'x75'x119'x85'
Land Lease: No
Lot Description: LakeFront, OutsideCityLimits, PondOnLot, Rectangular, RectangularLot
Misc
Pool Private: No
Pets Allowed: OwnerOnly, Yes
Offer Compensation
Other School Info
Property Info
County: Horry
View: No
Senior Community: No
Stipulation of Sale: None
Habitable Residence: ,No,
Property Sub Type Additional: Detached
Property Attached: No
Security Features: SmokeDetectors
Disclosures: CovenantsRestrictionsDisclosure
Rent Control: No
Construction: NeverOccupied
Room Info
Basement: ,No,
Sold Info
Sold Date: 2025-05-05T00:00:00
Sqft Info
Building Sqft: 2757
Living Area Source: Plans
Sqft: 2225
Tax Info
Unit Info
Utilities / Hvac
Heating: Central, Electric, Gas
Cooling: CentralAir
Electric On Property: No
Cooling: Yes
Utilities Available: CableAvailable, ElectricityAvailable, NaturalGasAvailable, PhoneAvailable, SewerAvailable, UndergroundUtilities, WaterAvailable
Heating: Yes
Water Source: Public
Waterfront / Water
Waterfront: Yes
Waterfront Features: Pond
Directions
Highway 90, just east of Hwy 22. Go 1.5 miles on the right.Courtesy of The Litchfield Co Re-new Homes





Recent Posts RSS
MLS# 2602716
Provided courtesy of © Copyright 2026 Coastal Carolinas Multiple Listing Service, Inc.®. Information Deemed Reliable but Not Guaranteed. © Copyright 2026 Coastal Carolinas Multiple Listing Service, Inc.® MLS. All rights reserved. Information is provided exclusively for consumers’ personal, non-commercial use, that it may not be used for any purpose other than to identify prospective properties consumers may be interested in purchasing.
Images related to data from the MLS is the sole property of the MLS and not the responsibility of the owner of this website. MLS IDX data last updated on 04-02-2026 9:33 AM EST.
Any images related to data from the MLS is the sole property of the MLS and not the responsibility of the owner of this website.