Viewing Listing MLS# 2100861
North Myrtle Beach, SC 29582
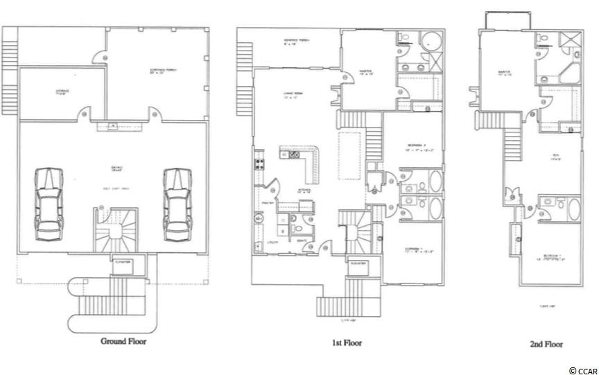
- 5Beds
- 5Full Baths
- 1Half Baths
- 3,150SqFt
- 2022Year Built
- 0.16Acres
- MLS# 2100861
- Residential
- Detached
- Sold
- Approx Time on Market1 year, 6 months, 18 days
- AreaNorth Myrtle Beach Area--Cherry Grove
- CountyHorry
- Subdivision Cottages on the Marsh
Overview
Brand New Gated Development In Cherry Grove Beach!!! - 100 year old live oak trees throughout - 1/4 mile of marsh front - Less than a mile to beach (walk or golf cart back and forth) -Natural Gas Community - Cherry Grove Beach voted #1 beach in SC and #11 in United States - Nature and walking trail around green space with lighted walkways - Clubhouse and pool overlooking the marsh with meeting room, fireplace, full kitchen, workout center, pool, marsh walk, and sunrise gazebo. - private kayak launch for residents - Gated community. INCLUDES LAWN MAINTENANCE.
Sale Info
Listing Date: 01-13-2021
Sold Date: 08-01-2022
Aprox Days on Market: 
1 Year(s), 6 month(s), 18 day(s)
Listing Sold: 
3 Year(s), 7 month(s), 13 day(s) ago
Asking Price: $649,900
Selling Price: $643,850
Price Difference:
Reduced By $6,050
Agriculture / Farm
Grazing Permits Blm: ,No,
Horse: No
Grazing Permits Forest Service: ,No,
Grazing Permits Private: ,No,
Irrigation Water Rights: ,No,
Farm Credit Service Incl: ,No,
Crops Included: ,No,
Association Fees / Info
Hoa Frequency: Monthly
Hoa Fees: 179
Hoa: 1
Hoa Includes: AssociationManagement, CommonAreas, CableTV, Insurance, Internet, LegalAccounting, MaintenanceGrounds, Pools, Recycling, Trash
Community Features: Clubhouse, GolfCartsOK, Gated, RecreationArea, LongTermRentalAllowed, Pool
Assoc Amenities: Clubhouse, Gated, OwnerAllowedGolfCart, OwnerAllowedMotorcycle, PetRestrictions, TenantAllowedGolfCart, TenantAllowedMotorcycle
Bathroom Info
Total Baths: 6.00
Halfbaths: 1
Fullbaths: 5
Bedroom Info
Beds: 5
Building Info
New Construction: Yes
Year Built: 2022
Mobile Home Remains: ,No,
Zoning: R-2B
Style: RaisedBeach
Development Status: NewConstruction
Construction Materials: HardiPlankType, Masonry, WoodFrame
Buyer Compensation
Exterior Features
Spa: No
Patio and Porch Features: Balcony, RearPorch, Deck, FrontPorch, Patio
Window Features: StormWindows
Pool Features: Community, OutdoorPool
Foundation: Raised
Exterior Features: Balcony, Deck, SprinklerIrrigation, Porch, Patio
Financial
Lease Renewal Option: ,No,
Garage / Parking
Parking Capacity: 4
Garage: Yes
Carport: No
Parking Type: Underground, GarageDoorOpener
Open Parking: No
Attached Garage: No
Green / Env Info
Green Energy Efficient: Doors, Windows
Interior Features
Floor Cover: Carpet, Tile, Wood
Door Features: InsulatedDoors, StormDoors
Fireplace: No
Laundry Features: WasherHookup
Furnished: Unfurnished
Interior Features: Other, EntranceFoyer, StainlessSteelAppliances, SolidSurfaceCounters, Workshop
Appliances: Dishwasher, Disposal, Microwave, Range, RangeHood
Lot Info
Lease Considered: ,No,
Lease Assignable: ,No,
Acres: 0.16
Land Lease: No
Lot Description: CityLot, IrregularLot
Misc
Pool Private: No
Pets Allowed: OwnerOnly, Yes
Offer Compensation
Other School Info
Property Info
County: Horry
View: No
Senior Community: No
Stipulation of Sale: None
Property Sub Type Additional: Detached
Property Attached: No
Security Features: GatedCommunity, SmokeDetectors
Disclosures: CovenantsRestrictionsDisclosure
Rent Control: No
Construction: NeverOccupied
Room Info
Basement: ,No,
Sold Info
Sold Date: 2022-08-01T00:00:00
Sqft Info
Building Sqft: 5550
Living Area Source: Estimated
Sqft: 3150
Tax Info
Unit Info
Utilities / Hvac
Heating: Central, Electric, Gas
Cooling: AtticFan, CentralAir
Electric On Property: No
Cooling: Yes
Utilities Available: CableAvailable, ElectricityAvailable, NaturalGasAvailable, PhoneAvailable, SewerAvailable, UndergroundUtilities, WaterAvailable
Heating: Yes
Water Source: Public
Waterfront / Water
Waterfront: No
Directions
Take business 17 north and take the Cherry Grove exit. Turn left on Ye Olde Kings Hwy and Cottages On The marsh will be on your right about 1500 feet.Courtesy of Kingone Properties





Recent Posts RSS
MLS# 2123442
Provided courtesy of © Copyright 2026 Coastal Carolinas Multiple Listing Service, Inc.®. Information Deemed Reliable but Not Guaranteed. © Copyright 2026 Coastal Carolinas Multiple Listing Service, Inc.® MLS. All rights reserved. Information is provided exclusively for consumers’ personal, non-commercial use, that it may not be used for any purpose other than to identify prospective properties consumers may be interested in purchasing.
Images related to data from the MLS is the sole property of the MLS and not the responsibility of the owner of this website. MLS IDX data last updated on 03-14-2026 10:33 PM EST.
Any images related to data from the MLS is the sole property of the MLS and not the responsibility of the owner of this website.