Viewing Listing MLS# 2526280
Pawleys Island, SC 29585
- Farm AgZoning
- ResidentialType
- N/A# Lots
- PublicWater
- GeorgetownCounty
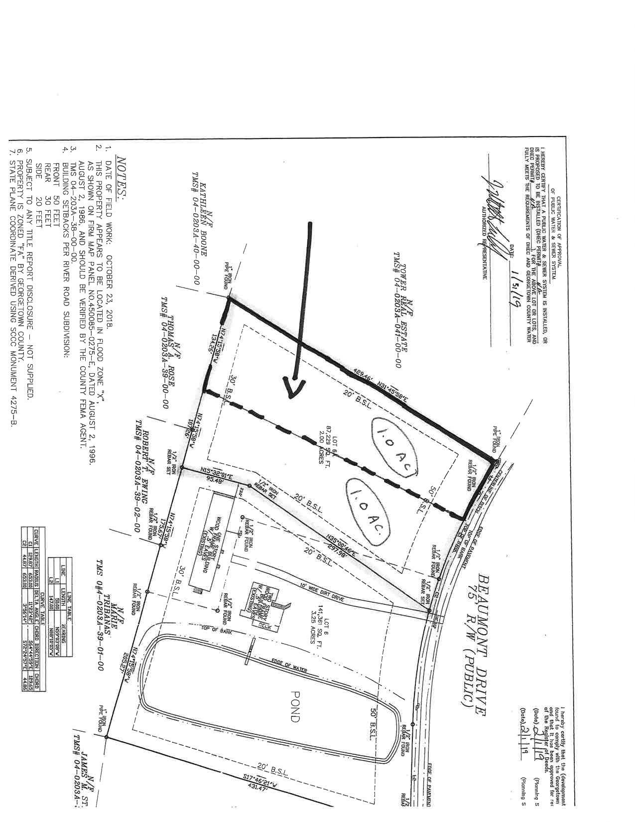
- 1.00Acres
- MLS# 2526280
- Land
- Residential
- Active
- Approx Time on Market3 months, 26 days
- Area44a Pawleys Island Mainland
- CountyGeorgetown
- Subdivision River Road
Overview
A rare opportunity to purchase a 1-acre cleared pasture lot on Beaumont Drive in the heart of mainland Pawleys Island. Lots like this are few and far betweenready for your vision and your dream home. The property is cleared, level, and build-ready, with public water and sewer available for added convenience. Zoned Farm Agricultural (FA), this parcel offers remarkable flexibility for residential use while maintaining a peaceful, rural atmosphere. With no ARB restrictions or required timeframe to build, you have the freedom to design and construct your home on your own schedule. Enjoy the best of both worldsquiet country living surrounded by nature, yet only minutes to the beaches, dining, shopping, and charm that make Pawleys Island so special. Whether youre planning your forever home or a private getaway, this property offers the perfect blend of space, freedom, and location. Listing agent is also owner.
Agriculture / Farm
Association Fees / Info
Hoa Frequency: Monthly
Bathroom Info
Building Info
Zoning: Farm Ag
Buyer Compensation
Exterior Features
Financial
Garage / Parking
Interior Features
Lot Info
Acres: 1.00
Lot Description: OutsideCityLimits, Rectangular, RectangularLot
Misc
Offer Compensation
Other School Info
Property Info
County: Georgetown
Road Frontage Type: CountyRoad
Road Surface Type: Asphalt
Stipulation of Sale: None
Property Sub Type Additional: Residential,UnimprovedLand
Disclosures: CovenantsRestrictionsDisclosure
Room Info
Sold Info
Tax Info
Utilities / Hvac
Sewer: PublicSewer
Utilities Available: CableAvailable, ElectricityAvailable, PhoneAvailable, SewerAvailable, WaterAvailable
Water Source: Public
Waterfront / Water
Directions
985 Beaumont Dr is located in mainland Pawleys Island west of Hwy 17. Can turn on Beaumont Dr from either Hwy 17 or Kings River Rd.Courtesy of James W Smith Real Estate Co





Recent Posts RSS
MLS# 2604342
Provided courtesy of © Copyright 2026 Coastal Carolinas Multiple Listing Service, Inc.®. Information Deemed Reliable but Not Guaranteed. © Copyright 2026 Coastal Carolinas Multiple Listing Service, Inc.® MLS. All rights reserved. Information is provided exclusively for consumers’ personal, non-commercial use, that it may not be used for any purpose other than to identify prospective properties consumers may be interested in purchasing.
Images related to data from the MLS is the sole property of the MLS and not the responsibility of the owner of this website. MLS IDX data last updated on 02-26-2026 11:45 PM EST.
Any images related to data from the MLS is the sole property of the MLS and not the responsibility of the owner of this website.